Geschäftslokal in toller Lage - Servitenviertel - Edelrohbau
Einzelhandel
- Ladenlokal,
1090
Wien
Beschreibung der Immobilie
=================
ACHTUNG: Im hinteren Teil können zusätzlich zwei Lagerflächen gemietet werden mit jeweils 235m²+225m²!
=================
INFRASTRUKTUR + HIGHLIGHTS AUF EINEN BLICK
• sehr schöner Altbau
• tolle Lage
• WC und Waschraum
• Technikraum
• Edelrohhbau (ohne Beläge, ohne Lampen)
ERSTZAHLUNG UND VERTRAGSKONDITIONEN
• Befristung 10J (Option auf Verlängerung)
• Kaution 6 BMM (oder nach Absprache, bonitätsabhängig)
• Provision 3 BMM
• Kündigungsverzicht 3 J
• Kündigungsfrist 6 M
• Vergebührung beim Finanzamt
• Monatliches Akonto Gaszentralheizung: € 86,81 netto zzgl 20% MwSt.
Für Rückfragen stehe ich Ihnen selbstverständlich gerne zur Verfügung!
KONTAKT
Robert Fried, 0664 88 296 010, robert.fried@hubner-immobilien.com
Für nähere Informationen und um einen Besichtigungstermin zu vereinbaren stehe ich Ihnen sehr gerne zur Verfügung.
____
Angaben gemäß gesetzlichem Erfordernis: | |||
Miete | € | 2392,6 | zzgl 20% USt. |
Betriebskosten | € | 97,75 | zzgl 20% USt. |
Umsatzsteuer | € | 498,07 | |
------------------------------------------------------------------ | |||
Gesamtbetrag | € | 2988,42 |
------------------------------------------------------------------ | |||
Heizwärmebedarf: | 244.1 kWh/(m²a) | ||
Klasse Heizwärmebedarf: | F | ||
Faktor Gesamtenergieeffizienz: | 1.39 | ||
Klasse Faktor Gesamtenergieeffizienz: | C |
Eckdaten
Objektnr: | 3610_7985 |
Art: | Einzelhandel - Ladenlokal |
Land: | Österreich |
Zustand: | Erstbezug |
Alter: | Altbau |
Gesamtmiete: | 2.988,42 € |
Kaltmiete (netto): | 2.392,60 € |
Kaltmiete: | 2.490,35 € |
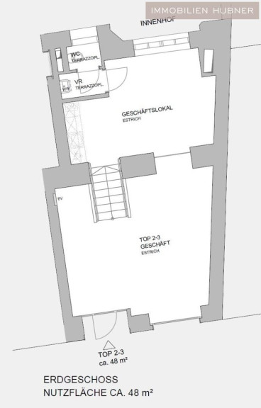
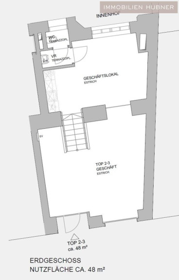
Nutzfläche: | 70,00 m² |
Verkaufsfläche: | 70,00 m² |
WC: | 1 |
Heizwärmebedarf: | F 244,00 kWh/m²a |
fGEE: | C 1,39 |
Ausstattung
Gas, Zentralheizung
Internet und TV
Information zur Internet und TV Versorgung hier
Ihre persönliche Beratung

Robert Fried
Hubner Immobilien GmbH
E robert.fried@hubner-immobilien.com