Renditeobjekt mit solidem Mietverhältnis | Rendite 3,64%
Büro / Praxis
,
1160
Wien,Ottakring
,
Koppstraße
Lage der Immobilie
HaberlgasseBeschreibung der Immobilie
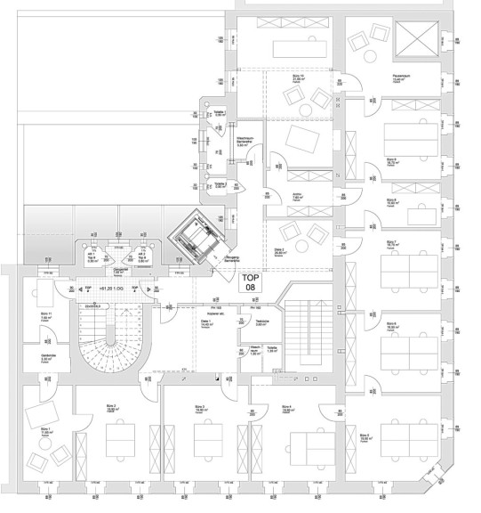
Attraktives Anlageobjekt: Großzügiges Büro in Wien unbefristet vermietet
Zum Verkauf steht eine großzügige Büroeinheit im 1. Obergeschoss eines gepflegten Altbauhauses in guter Wiener Lage. Die Fläche ist unbefristet an einen Verein im Bereich "Lernen-Beratungs-,Bildungs-u.Psychotherapiezentrum für Frauen, Kinder und Familien" vermietet, was eine langfristige und stabile Einnahmequelle bietet.
Das Büro erstreckt sich über die gesamte Etage und verfügt über eine durchdachte Raumaufteilung. Es umfasst:
- einen repräsentativen Eingangsbereich mit Empfang,
- bis zu 12 flexibel nutzbare Büroräume,
- mehrere Besprechungszimmer,
- Archivflächen,
- eine Teeküche,
- sowie getrennte Sanitäranlagen.
Eckdaten für Investoren:
- Unbefristetes Mietverhältnis mit einem verlässlichen, öffentlichen Mieter
- Jährliche Nettomieteinnahmen: € 31.402,–
- Attraktive Lage in einem klassischen Wiener Altbau
Dieses Objekt eignet sich ideal als langfristige Kapitalanlage mit solidem Mieterprofil und stabilem Cashflow.
Lage und Umgebung:
Die Lage an der Koppstraße 38 / Ecke Haberlgasse im aufstrebenden Ottakring überzeugt durch ihre Vielseitigkeit:
Eine ausgezeichnete Anbindung an das öffentliche Verkehrsnetz (Straßenbahn, Bus und U-Bahn), eine hervorragende Nahversorgung sowie ein vielfältiges gastronomisches Angebot machen diesen Standort besonders attraktiv. Direkt vor der Haustür laden neu gestaltete, öffentlich zugängliche Freiflächen zum Verweilen ein. Ergänzt wird das urbane Lebensgefühl durch zahlreiche Freizeit- und Kulturangebote in der Umgebung.
Der beliebte Brunnenmarkt und Yppenmarkt mit seinem multikulturellen Flair sind in wenigen Gehminuten erreichbar. Auch die nahegelegene Thaliastraße bietet eine breite Auswahl an Einkaufsmöglichkeiten.
Die öffentliche Verkehrsanbindung ist optimal:
Straßenbahnlinien 9 und 46, die Buslinien 10A und 48A, sowie die nahegelegenen U-Bahnstationen der Linien U3 und U6 sorgen für schnelle Verbindungen in alle Teile der Stadt.
Noch nichts gefunden? Wir informieren Sie über geeignete Immobilienangebote noch vor allen anderen.
Legen Sie jetzt Ihren individuellen Suchagenten unter folgendem Link an. Wir schicken Ihnen passende Immobilien exklusiv vorab zu.
Suchagent anlegen - https://accenta-immobilien.service.immo/registrieren/de
Wir weisen darauf hin, dass zwischen dem Vermittler und dem zu vermittelnden Dritten ein familiäres oder wirtschaftliches Naheverhältnis besteht.
Der Vermittler ist als Doppelmakler tätig.
Sie möchten Ihre Immobilie verkaufen oder vermieten?
Vertrauen Sie auf unsere Erfahrung – mit geprüfter Qualität und transparenter Abwicklung.
Die Immobilien Card garantiert Ihnen, dass Sie mit einem geprüften Profi für Verkauf und Vermietung sprechen.
Infrastruktur / Entfernungen
Gesundheit
Arzt <250m
Apotheke <500m
Klinik <750m
Krankenhaus <1.500m
Kinder & Schulen
Schule <250m
Kindergarten <250m
Universität <1.000m
Höhere Schule <1.000m
Nahversorgung
Supermarkt <250m
Bäckerei <250m
Einkaufszentrum <750m
Sonstige
Geldautomat <250m
Bank <500m
Post <500m
Polizei <500m
Verkehr
Bus <250m
U-Bahn <750m
Straßenbahn <500m
Bahnhof <750m
Autobahnanschluss <4.500m
Angaben Entfernung Luftlinie / Quelle: OpenStreetMap
Eckdaten
| Kaufpreis: | 889.000,00 € |
| Fläche: | 277,87 m² |
| Zimmer: | 12 |
Basisdaten zur Immobilie
| Objektnr: | 11247 |
| Art: | Büro / Praxis |
| Land: | Österreich |
| Alter: | Altbau |
| Kaufpreis: | 889.000,00 € |
| Kaufpreis / m²: | auf Anfrage |
| Provision: | 3% des Kaufpreises zzgl. 20% USt. |
| Betriebskosten: | 439,50 € |
| Sonstige Kosten: | 780,41 € |
| Wohnfläche: | 277,87 m² |
| Zimmer: | 12 |
| Bäder: | 1 |
| WC: | 3 |
| Heizwärmebedarf: | D 94,40 kWh/m²a |
| fGEE: | D 1,95 |
Ausstattung
Parkett, Fliesen, Gas, Etagenheizung, Personenaufzug
Internet und TV
Information zur Internet und TV Versorgung hier
Ihre persönliche Beratung
Martina Schütz
Accenta Immobilien e.U.
martina.schuetz@accenta-immo.at
+43 1 9971293
+43 699 17089345
F +43 1 997129310
