2241 Schönkirchen: Rarität! Traumhafte Wohlfühloase samt Schwimmhalle in bester Lage!
Haus
,
2241
Schönkirchen-Reyersdorf
Beschreibung der Immobilie
Die Lage:
Die Lage dieser außergewöhnlichen Immobilie - in einer ruhigen Wohnsiedlung nahe der Bahnstation Silberwald (Linie R1 und S1) - am sinngemäßen Ortsrand der Katastralgemeinde Schönkirchen und in unmittelbarer Nähe zu "Strasshof an der Nordbahn" ist wahrlich ausgezeichnet!
Die Bezirkshauptstadt Gänserndorf ist nur ca. 4 km (5 Fahrminuten) entfernt, die Bundeshauptstadt Wien ist in ca. 25 Minuten mit dem PKW erreichbar.
Alle im Alltag benötigten öffentlichen Einrichtungen wie z.B. Supermärkte, Kindergärten, Schulen, Apotheke, diverse Ärzte, Bankinstitute, Restaurants, Tankstellen, Bahnhof, Golfclubs, Einkaufszentren G3 Gerasdorf & Donauzentrum, Erlebnispark Gänserndorf etc. sind im Nahbereich, wie auch im weiteren Umfeld vorhanden und in wenigen Minuten erreichbar.
Das Grundstück:
Hierbei handelt es sich um eine 1.532 m² große, sehr schön gelegene und gepflegte Liegenschaft, welche in eine nette Nachbarschaft eingebettet ist.
Strom-, Wasser- und Kanalanschlüsse sind vorhanden, die Zufahrt erfolgt klassisch über eine öffentliche, nicht stark befahrene Straße.
Gerne übermitteln wir Ihnen einen Lage- & Katasterplan!
Der traumhafte Garten spricht für sich! Zudem wird ein ausgewogenes Maß an Licht und Schatten durch die wunderschöne kultivierte Flora geboten!
Rosenliebhaber werden hier Ihr Herz höher schlagen hören!
Das Wohnhaus:
Das Wohnhaus wurde in massiver Bauweise errichtet, im Jahr 1970 baubewilligt und im Jahr 1978 wurde die Benützung bewilligt.
Der zugehörige Bauakt mit sämtlichen Unterlagen liegt uns natürlich digital vor und kann Ihnen gerne übermittelt werden.
Aufgrund der wohl durchdacht gestalteten Raumaufteilung werden Ihnen ausreichende Entfaltungsmöglichkeiten geboten!
Der aktuelle Zustand ist gepflegt, weshalb ein unmittelbarer Bezug des Wohnhauses in zeitlicher Nähe möglich ist.
Selbstverständlich kann auch räumlich entsprechend umgestaltet werden, sodass das Wohnhaus danach den persönlichen Ansprüchen und dem individuellen Geschmack entspricht!
Erdgeschoß ca. 77,90 m²
- Terrasse beim Eingangsbereich 18 m²
- Eingangs-/Garderobenbereich
- Duschbadezimmer
- separate Toilette
- Küche mit Fenster
- Lounge bzw. Essbereich mit Panoramafenster in den Garten (ca. 18 m²)
(kann in einen Wohnschlafraum umgewandelt werden- siehe alternativer Grundriss)
- großer Wohnsalon mit Wohnzimmerbereich und Esszimmerbereich mit 34,90 m²
- Stiegenhaus/Kellerabgang
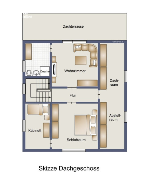
Obergeschoß ca. 72,86 m²
- Vorzimmer
- Wohnzimmer 15,8 m² mit Zugang zur Terrasse (ca. 21,15 m²)
- Badezimmer mit Dusche und Toilette
- Schlafzimmer 15,8 m²
- Kabinett oder Ankleide 9 m²
- großer Mehrzweckraum ca. 21,60 m²
Kellergeschoß ca. 65,55 m²
- Vorraum
- Werk-/Lager-/Aufenthaltsraum ca. 18,8 m²
- Heiztechnikraum ca. 5 m³
- Öltank-Raum ca. 5 m³
- Stüberl 7 m²
- Waschküche 8,7 m²
- Garage ca. 18,4 m²
Garagenzubau (BJ 1990) mit ca. 27 m²
Die Schwimmhalle:
Die in Massivbauweise errichtete Schwimmhalle mit einer Größe von 86,50 m² (laut Plan) lässt keine Wünsche offen und stellt wahrlich eine exklusive und paradiesische Wohlfühloase dar! In den letzten 2 Jahren wurde umfassend investiert und die zugehörigen Unterlagen aus dem Jahr 2024 (Plan, Baubeschreibung, Fertigstellungsanzeige etc.) liegen vor!
- Pool (4,3 m x 7,75 m = 33,3 m²)
- Ruhe-/Essbereich
- Dusche und Waschbecken
- Pooltechnikbereich 4,42 m²
- Lager-/Kellerbereich 13,54 m²
Pergola & Terrassenbereich im Garten
- Whirlpool mit Überdachung
- Grill
- Terrasse
Allgemeines:
Eine noch immer gut funktionelle Öl-Heizung (Heizkessel BJ 1999) sorgt für wohlige Wärme in den kälteren Tagen.
Einige kleinere Nebengebäude stellen entsprechende Lager- & Unterstellmöglichkeiten für diverse Gerätschaften dar.
Im Garten
- Hochbeete
- Weinrebenlaube
- Gewächshaus
Resümee:
Lassen Sie Ihrem Bedarf entsprechende Ideen einfließen und verwirklichen Sie Ihr persönliches Zuhause mit Charme und Stil!
Gerne übermitteln wir Ihnen ein Immobilienangebot inkl. Außenansichten und der exakten Liegenschaftsadresse!
Senden Sie uns einfach eine Anfrage mit Ihren Kontaktdaten, das Exposé wird Ihnen im Anschluss zum Download übermittelt!
Infrastruktur / Entfernungen
Gesundheit
Arzt <2.500m
Apotheke <3.500m
Klinik <4.500m
Kinder & Schulen
Kindergarten <1.000m
Schule <2.000m
Nahversorgung
Supermarkt <1.500m
Bäckerei <3.500m
Sonstige
Bank <3.000m
Geldautomat <3.000m
Post <3.500m
Polizei <4.000m
Verkehr
Bus <500m
Bahnhof <500m
Angaben Entfernung Luftlinie / Quelle: OpenStreetMap
Eckdaten
| Kaufpreis: | 650.000,00 € |
| Fläche: | 150,00 m² |
| Zimmer: | 4,50 |
Basisdaten zur Immobilie
| Objektnr: | 960/73124 |
| Art: | Haus |
| Land: | Österreich |
| Baujahr: | 1978 |
| Zustand: | Gepflegt |
| Möbliert: | Teil |
| Alter: | Neubau |
| Kaufpreis: | 650.000,00 € |
| Provision: | 3% des Kaufpreises zzgl. 20% USt. |
| Wohnfläche: | 150,00 m² |
| Nutzfläche: | 216,31 m² |
| Grundstücksfl.: | 1.532,00 m² |
| Zimmer: | 4,50 |
| Bäder: | 2 |
| WC: | 2 |
| Balkone: | 1 |
| Terrassen: | 1 |
| Keller: | 65,55 m² |
| Heizwärmebedarf: | E 177,10 kWh/m²a |
| fGEE: | E 2,75 |
Ausstattung
Laminatboden, Parkett, Fliesen, Öl, Zentralheizung, Einbauküche, Südbalkon, Bad mit Fenster, Dusche, Garage, Swimmingpool, Wasch/Trockenraum
Internet und TV
Information zur Internet und TV Versorgung hier
Ihre persönliche Beratung
Marco Antonio Stipsits
s REAL Immobilienvermittlung GmbH
marco.stipsits@sreal.at
+43 (0)5 0100 - 26331
+43 664 8183713
