Beschreibung der Immobilie
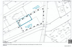
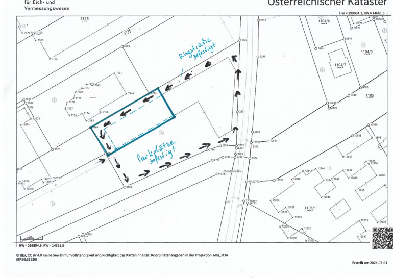
Zum Verkauf gelangt eine Gewerbefläche 2620m² in zentraler Lage bei der Mattersburgerstraße im Gewerbegebiet Eisenstadt
im Bauland Betriebsgebiet,
es gibt bereits eine befestigte Ringstraße für diese und die benachbarte Liegenschaft, die für PKW und LKW als Zu- und Abfahrt dient
zusätzlich sind bereits befestigte Stellplätze vorhanden mit ca. 520m², Ringstraße und Parkplätze sind im Kaufpreis inkludiert
Die zukünftige Nettonutzfläche beträgt ca. 3600m² auf 3 Etagen,
es ist eine Erweiterung möglich!
Das Baugrundstück ist aufgeschlossen: Wasser, Abwasser, Strom, Gas
Kaufpreis 1,2 Mio
branchenfrei, bestens geeignet für Motels, Hotels und Gastronomie, Gewerbebetriebe, Fachmarktzentren Büros Ordinationen
Das Objekt befindet sich im Gewerbegebiet Eisenstadt in unmittelbarer Nähe zum zum ARBÖ Pannennotruf,
sowie ca. 200 weiteren Gewerbebetrieben und Verkaufsmärkten
Perfekte Autobahn Anbindung
In unmittelbarer Nähe S31, B50
8 min mit dem Auto nach Eisenstadt Zentrum
4 min zum Bahnhof Eisenstadt
Bei Interesse kontaktieren Sie bitte
Mag Monika Feichtinger
Email: office@bar-immobilien.at
Tel: 0699 11 54 54 99
B.A.R! Immobilien & Verwaltung GmbH
Sterngasse 3/2/6
A- 1010 Wien
Weiter Objekte finden Sie unter www.bar-immobilen.at
Bitte beachten Sie, dass wir aufgrund der Nachweispflicht dem Eigentümern gegenüber ausschließlich Anfragen mit vollständigen Kontaktdaten (Name, Wohnadresse, Email, Telefonnummer) beantworten können! Es gelten die allgemeinen Geschäftsbedingungen. Obige Angaben basieren auf Informationen und Unterlagen des Vermieters und der Kommunalbehörde. Änderungen und Irrtümer vorbehalten.
Provision: Der guten Ordnung halber möchten wir festhalten, dass im Falle eines Abschlusses mit Ihnen oder einem von Ihnen namhaft gemachten Dritten unser Honorar (lt. Honorarverordnung für Immobilienmakler, BGBl. 262 und 297/1996) 3 Bruttomonatsmieten beträgt zzgl. der gesetzlichen MwSt.
Infrastruktur / Entfernungen
Gesundheit
Arzt <1.000m
Apotheke <2.000m
Klinik <8.500m
Krankenhaus <2.500m
Kinder & Schulen
Schule <2.000m
Kindergarten <1.500m
Universität <1.000m
Höhere Schule <2.000m
Nahversorgung
Supermarkt <500m
Bäckerei <500m
Einkaufszentrum <500m
Sonstige
Bank <500m
Geldautomat <500m
Post <500m
Polizei <2.000m
Verkehr
Bus <500m
Autobahnanschluss <1.000m
Bahnhof <1.500m
Angaben Entfernung Luftlinie / Quelle: OpenStreetMap
Eckdaten
| Kaufpreis: | 1.200.000,00 € |
| Fläche: | 2.620,00 m² |
Basisdaten zur Immobilie
| Objektnr: | 9133 |
| Art: | Grundstück - Betriebsbaugrund |
| Land: | Österreich |
| Kaufpreis: | 1.200.000,00 € |
| Kaufpreis / m²: | auf Anfrage |
| Provision: | 3% des Kaufpreises zzgl. 20% USt. |
| Grundstücksfl.: | 2.620,00 m² |
| Stellplätze: | 52 |
Ausstattung
Parkplatz
Internet und TV
Information zur Internet und TV Versorgung hier
Ihre persönliche Beratung
Mag. Monika Feichtinger
B.A.R! Immobilien & Verwaltungs Ges.m.b.H
office@bar-immobilien.at
+ 43 1 535 02 83
+ 43 699 11 54 54 99
F + 43 1 535 02 83-83
