Beschreibung der Immobilie
Diese traumhafte Villa in der charmantischen Stadt Waidhofen an der Ybbs besticht durch ihre zentrale Lage. Umgeben von der malerischen Natur Niederösterreichs, genießen Sie hier eine perfekte Kombination aus Erholung und urbanem Leben. Öffentliche Verkehrsanbindungen wie Buslinien sind in der Nähe, wodurch Sie bequem die charmante Stadt Waidhofen und ihre Umgebung erkunden können. Ein ideales Zuhause für Naturliebhaber und Stadtbesucher!
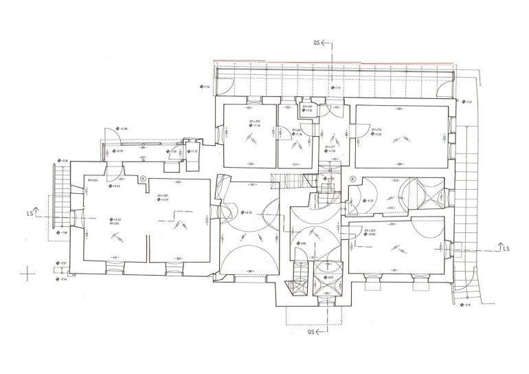
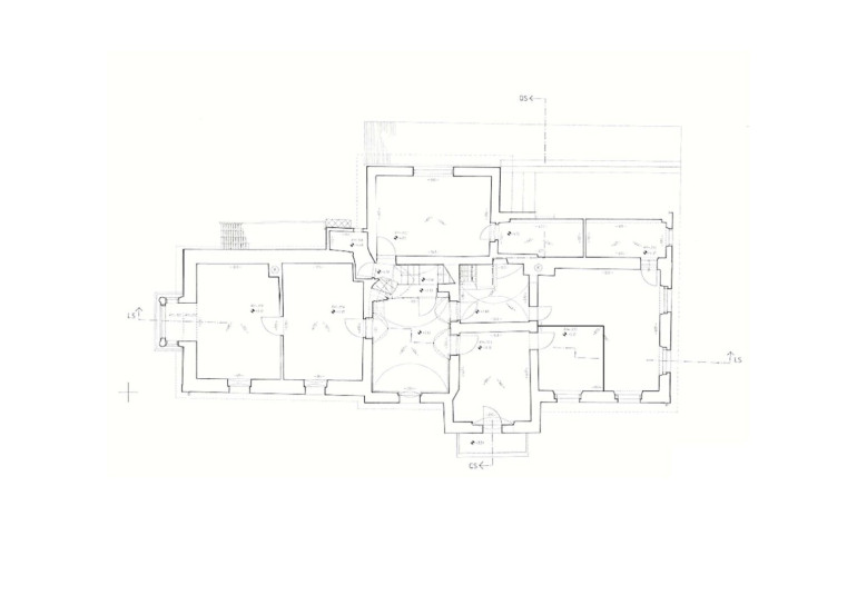
Dieses außergewöhnliche Anwesen vom 15. Jahrhundert erstreckt sich über großzügige 290m² und bietet Ihnen und Ihrer Familie den perfekten Raum zum Leben, Wohlfühlen und Entspannen.
Mit insgesamt 11 Zimmern haben Sie die Möglichkeit, Ihre Wohnträume in die Realität umzusetzen. Ob Sie ein geräumiges Familienzimmer, ein stilvolles Arbeitszimmer oder einen einladenden Gästebereich schaffen möchten – hier finden Sie die ideale Grundlage dafür. Jedes Zimmer strahlt eine besondere Atmosphäre aus und lädt dazu ein, persönliche Akzente zu setzen.
Die Villa ist mit 2 modernen WCs und 2 eleganten Bädern ausgestattet, die sowohl Funktionalität als auch Komfort vereinen.
Eine Gas-Zentralheizung sorgt für behagliche Wärme in den kalten Monaten, während Sie in den Sommermonaten die kühlen Räume und den Schatten im Garten genießen können. Der Weinkeller bietet Ihnen die Möglichkeit, Ihre besten Weine stilvoll zu lagern und Ihre Gäste mit erlesenen Tropfen zu verwöhnen.
Details:
- 11 Zimmer
- 2 Bäder
- 2 Wc´s
- Holzverkleidung
- schönes Gewölbe
- hohe Decken
- Kachelofen
- dicke Mauern - sorgen für angenehme Kühle im Sommer
- Weinkeller
- 2017 vollständig saniert
- ca. 290 m² Wohnfläche
- ca. 2.642 m² Garten mit 2 Gartenhäuser und einem historischen Lusthaus aus dem 19. Jahrundert
Waidhofen an der Ybbs ist bekannt für seine malerische Umgebung und die hervorragende Lebensqualität. Die gute Verkehrsanbindung durch Bus und Bahn ermöglicht Ihnen eine unkomplizierte Erreichbarkeit der umliegenden Städte und Regionen, sodass Sie sowohl die Ruhe des Landlebens als auch die Annehmlichkeiten der Stadt genießen können.
Infrastruktur / Entfernungen
Gesundheit
Arzt <2.000m
Apotheke <2.000m
Krankenhaus <2.500m
Kinder & Schulen
Schule <2.000m
Kindergarten <2.000m
Nahversorgung
Supermarkt <2.000m
Bäckerei <2.000m
Sonstige
Bank <2.000m
Geldautomat <2.000m
Post <2.000m
Polizei <2.000m
Verkehr
Bus <500m
Bahnhof <2.000m
Angaben Entfernung Luftlinie / Quelle: OpenStreetMap
Eckdaten
| Kaufpreis: | 649.000,00 € |
| Fläche: | 290,00 m² |
| Zimmer: | 11 |
Basisdaten zur Immobilie
| Objektnr: | 960/73146 |
| Art: | Haus - Villa |
| Land: | Österreich |
| Kaufpreis: | 649.000,00 € |
| Provision: | 23.364,00 € inkl. 20% USt. |
| Wohnfläche: | 290,00 m² |
| Grundstücksfl.: | 2.642,00 m² |
| Zimmer: | 11 |
| Bäder: | 2 |
| WC: | 2 |
| Heizwärmebedarf: | G 271,60 kWh/m²a |
| fGEE: | E 2,93 |
Ausstattung
Gas, Zentralheizung
Internet und TV
Information zur Internet und TV Versorgung hier
Ihre persönliche Beratung
Ing. Andres SCHATZ
s REAL Immobilienvermittlung GmbH
andres.schatz@sreal.at
+43 676 5635992
+43 676 5635992
