RENDITEOBJEKT Gastronomie Lokal mit 4,65% Rendite
Gastgewerbe
- Gastronomie/Restaurant,
1160
Wien,Ottakring
,
Koppstraße
Lage der Immobilie
Koppstraße / HaberlgasseBeschreibung der Immobilie
Zum Verkauf gelangt eine gut laufendes Gastronomielokal mit aufrechtem Pachtvertrag, befristet bis 31.06.2029.
Die Immobilie befindet sich im Erdgeschoss eines sanierten und gepflegten Gründerzeithauses an der Ecke Koppstraße / Haberlgasseund ist vor kurzem modernisiert worden.
ECKDATEN GESCHÄFTSLOKAL
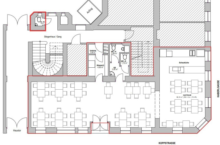
- NUTZFLÄCHE: 114 m²
- RÄUME: Gästeraum für bis zu 70 Personen, Küche, getrennte Toiletten, Personalbereich und Umkleide
- GESCHOSS: EG mit separatem Straßenzugang
- LAGER: es besteht die Möglichkeit zur Anmietung / Kauf von Lagerflächen im Haus - auf Anfrage, siehe auch Link: Objekt Gewölbekeller
- BEFRISTET VERPACHTET: Pachtvertrag bis 31.06.2029
- PACHTZINS NETTO: EUR 2.521,- pro Monat, EUR 30.252,- pro Jahr
- KAUFPREISRENDITE: ca. 4,65%
Das Gastronomielokal ist vollständig ausgestattet.
Für die Inneneinrichtung und Küche (außer der Geräte) wird eine Ablöse von € 38.000,- veranschlagt.
Aufgrund des laufenden Betriebes sind Besichtigungen nur mit Terminvereinbarung möglich.
Lage und Umgebung:
Die Lage an der Koppstraße 38 / Ecke Haberlgasse im aufstrebenden Ottakring überzeugt durch ihre Vielseitigkeit: Eine ausgezeichnete Anbindung an das öffentliche Verkehrsnetz (Straßenbahn, Bus und U-Bahn), eine hervorragende Nahversorgung sowie ein vielfältiges gastronomisches Angebot machen diesen Standort besonders attraktiv. Direkt vor der Haustür laden neu gestaltete, öffentlich zugängliche Freiflächen zum Verweilen ein. Ergänzt wird das urbane Lebensgefühl durch zahlreiche Freizeit- und Kulturangebote in der Umgebung.
Der beliebte Brunnenmarkt und Yppenmarkt mit seinem multikulturellen Flair sind in wenigen Gehminuten erreichbar. Auch die nahegelegene Thaliastraße bietet eine breite Auswahl an Einkaufsmöglichkeiten.
Die öffentliche Verkehrsanbindung ist optimal:
Straßenbahnlinien 9 und 46, die Buslinien 10A und 48A, sowie die nahegelegenen U-Bahnstationen der Linien U3 und U6 sorgen für schnelle Verbindungen in alle Teile der Stadt.
Noch nichts gefunden? Wir informieren Sie über geeignete Immobilienangebote noch vor allen anderen.
Legen Sie jetzt Ihren individuellen Suchagenten unter folgendem Link an. Wir schicken Ihnen passende Immobilien exklusiv vorab zu.
Suchagent anlegen - https://accenta-immobilien.service.immo/registrieren/de
Hinweis gemäß Energieausweisvorlagegesetz: Ein Energieausweis wurde vom Eigentümer bzw. Verkäufer, nach unserer Aufklärung über die generell geltende Vorlagepflicht, sowie Aufforderung zu seiner Erstellung noch nicht vorgelegt. Daher gilt zumindest eine dem Alter und der Art des Gebäudes entsprechende Gesamtenergieeffizienz als vereinbart. Wir übernehmen keinerlei Gewähr oder Haftung für die tatsächliche Energieeffizienz der angebotenen Immobilie.
Wir weisen darauf hin, dass zwischen dem Vermittler und dem zu vermittelnden Dritten ein familiäres oder wirtschaftliches Naheverhältnis besteht.
Der Vermittler ist als Doppelmakler tätig.
Sie wollen auch Ihre Immobilien Verkaufen oder Vermieten?
Accenta Immobilien - Ihr Partner für Immobilienvermittlung
www.accenta-immo.at
01/997 12 93
Infrastruktur / Entfernungen
Gesundheit
Arzt <250m
Apotheke <500m
Klinik <750m
Krankenhaus <1.500m
Kinder & Schulen
Schule <250m
Kindergarten <250m
Universität <1.000m
Höhere Schule <1.000m
Nahversorgung
Supermarkt <250m
Bäckerei <250m
Einkaufszentrum <750m
Sonstige
Geldautomat <250m
Bank <500m
Post <500m
Polizei <500m
Verkehr
Bus <250m
U-Bahn <750m
Straßenbahn <500m
Bahnhof <750m
Autobahnanschluss <4.500m
Angaben Entfernung Luftlinie / Quelle: OpenStreetMap
Eckdaten
Objektnr: | 11394 |
Art: | Gastgewerbe - Gastronomie/Restaurant |
Land: | Österreich |
Zustand: | Modernisiert |
Alter: | Altbau |
Kaufpreis: | 650.000,00 € |
Kaufpreis / m²: | auf Anfrage |
Provision: | 3% des Kaufpreises zzgl. 20% USt. |
Wohnfläche: | 114,00 m² |
WC: | 2 |
Ausstattung
Fliesen, Gas, Zentralheizung
Internet und TV
Information zur Internet und TV Versorgung hier
Ihre persönliche Beratung

Martina Schütz
Accenta Immobilien e.U.
E martina.schuetz@accenta-immo.at
T +43 1 9971293
H +43 699 17089345
F +43 1 997129310