Beschreibung der Immobilie
Dachgeschoß-Maisonette mit Terrasse – eine Wohnung für Macher!
Diese großzügige Maisonette im 3. und 4. Liftstock bietet eine außergewöhnliche Raumaufteilung, zwei separate Eingänge und viel Gestaltungsspielraum. Mit handwerklichem Geschick und kreativen Ideen verwandeln Sie diese Wohnung in ein echtes Schmuckstück. Ideal für alle, die Wert auf Individualität und Potential legen.
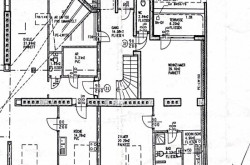
Die Wohnung
Untere Etage (3. Liftstock):
-
Vorzimmer mit Aufgang ins Obergeschoß
-
Separates WC
-
Badezimmer
-
Küche
-
Großes Wohnzimmer mit Essbereich – bei Bedarf abtrennbar für ein zusätzliches Schlafzimmer
Obere Etage (Dachgeschoß):
-
Schlafzimmer
-
Badezimmer
-
Separates WC
-
Küche
-
Sonnige Terrasse – ideal zum Entspannen im Freien
Besonderheiten
-
Beide Etagen mit Lift erreichbar
-
Zwei Eingänge – flexibel nutzbar, z. B. als Wohn- und Arbeitsbereich oder für getrennte Nutzung
-
Renovierungsbedürftig – ideal für kreative Köpfe, die sich ihr individuelles Zuhause schaffen möchten
Fazit
Eine spannende Dachgeschoßwohnung mit viel Potential – perfekt für alle, die Raum zur Entfaltung suchen und Freude daran haben, eine Wohnung nach eigenen Vorstellungen zu gestalten.
Wir weisen darauf hin, dass zwischen dem Vermittler und dem zu vermittelnden Dritten ein familiäres oder wirtschaftliches Naheverhältnis besteht.
Der Vermittler ist als Doppelmakler tätig.
Infrastruktur / Entfernungen
Gesundheit
Arzt <250m
Apotheke <250m
Klinik <750m
Krankenhaus <2.250m
Kinder & Schulen
Schule <250m
Kindergarten <250m
Universität <750m
Höhere Schule <2.250m
Nahversorgung
Supermarkt <250m
Bäckerei <250m
Einkaufszentrum <1.000m
Sonstige
Geldautomat <500m
Bank <500m
Post <500m
Polizei <750m
Verkehr
Bus <250m
U-Bahn <250m
Straßenbahn <250m
Bahnhof <250m
Autobahnanschluss <1.250m
Angaben Entfernung Luftlinie / Quelle: OpenStreetMap
Eckdaten
| Kaufpreis: | 349.000,00 € |
| Fläche: | 142,00 m² |
| Zimmer: | 3 |
Basisdaten zur Immobilie
| Objektnr: | 7485/210 |
| Art: | Wohnung - Dachgeschoß |
| Land: | Österreich |
| Baujahr: | 1900 |
| Zustand: | Teil_vollrenovierungsbed |
| Alter: | Altbau |
| Kaufpreis: | 349.000,00 € |
| Provision: | 12.564,00 € inkl. 20% USt. |
| Wohnfläche: | 142,00 m² |
| Nutzfläche: | 149,00 m² |
| Zimmer: | 3 |
| Bäder: | 2 |
| WC: | 2 |
| Terrassen: | 1 |
| Heizwärmebedarf: | E 153,00 kWh/m²a |
Ausstattung
Gas, Etagenheizung, Einbauküche, Personenaufzug, Bad mit Fenster, Badewanne, Dusche
Internet und TV
Information zur Internet und TV Versorgung hier
Ihre persönliche Beratung
Ing. Raoul-Arthur Billan
Arthur Real GmbH
immobilien@arthur-real.at
+436769604046
