Attraktive Büro-/Praxisräume in Going am Wilden Kaiser – Modern & flexibel gestalten!
Büro / Praxis
,
6353
Going am Wilden Kaiser
Lage der Immobilie
Die Immobilie befindet sich in der charmanten Gemeinde Going am Wilden Kaiser, umgeben von der atemberaubenden Tiroler Berglandschaft. Ideale Anbindungen und eine hervorragende Infrastruktur sorgen für höchsten Komfort. In unmittelbarer Nähe finden Sie Arztpraxen, Schulen, einen Kindergarten, Supermärkte, Bäckereien und Banken. Zudem sind Post und Busanbindungen leicht erreichbar. Hier profitieren Sie von der perfekten Kombination aus ländlicher Idylle und urbaner Lebensqualität.Beschreibung der Immobilie
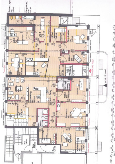
Entdecken Sie Ihre neue Büro- oder Praxisfläche in der malerischen Gemeinde Going am Wilden Kaiser, Tirol. Diese gepflegte Immobilie bietet Ihnen die perfekte Kombination aus Funktionalität und Ästhetik und ist ideal für eine Gemeinschaftspraxis/Rechtsanwaltkanzlei/Wirtschaftstreuhand.....
Vorzüge dieser Räumlichkeiten:
- zwei Eingänge
- ein ansprechender Empfangsbereich
- 20 Parkplätze
- Keller mit 25 m²
- zahlreiche luftige und lichtdurchflutete Räume mit großen Fensterfronten
- modernes Interieur mit modernster Technik
Die hochwertigen Materialien wie Fliesen und Parkett sorgen nicht nur für ein stilvolles Ambiente, sondern auch für eine angenehme Wohlfühlatmosphäre. Eine Fußbodenheizung bietet Ihnen an kalten Tagen den notwendigen Komfort, während die Massivbauweise für Stabilität und Langlebigkeit steht.
Ein weiterer Vorteil dieser Immobilie ist die Verfügbarkeit von Parkplätzen, die sowohl für Sie als auch für Ihre Kunden den Zugang erleichtern. Die getrennten Toiletten sorgen für zusätzliche Privatsphäre und Komfort.
Die Lage könnte nicht besser sein: Mitten im Zentrum von Going und in unmittelbarer Nähe von Arzt, einer Schule, einem Kindergarten sowie diverse Einkaufsmöglichkeiten wie Supermärkte und Bäckereien. Dies macht die Immobilie nicht nur für Sie, sondern auch für Ihre Klientel äußerst attraktiv.
Die hervorragende Verkehrsanbindung durch den Bus garantiert eine bequeme Erreichbarkeit für Ihre Mitarbeiter und Kunden. Sie profitieren von der ruhigen, naturnahen Umgebung, die gleichzeitig alle urbanen Annehmlichkeiten bietet.
Nutzen Sie die Chance und verwirklichen Sie Ihre Geschäftsideen in dieser traumhaften Immobilie in Going am Wilden Kaiser. Vereinbaren Sie noch heute einen Besichtigungstermin und überzeugen Sie sich selbst von den vielfältigen Möglichkeiten, die Ihnen diese Büro- oder Praxisfläche bietet. Ihr Erfolg beginnt hier!
Noch nichts gefunden? Wir informieren Sie über geeignete Immobilienangebote noch vor allen anderen.
Legen Sie jetzt Ihren individuellen Suchagenten unter folgendem Link an. Wir schicken Ihnen passende Immobilien exklusiv vorab zu.
Suchagent anlegen - https://herbert-eisenmann.service.immo/registrieren/de
Hinweis gemäß Energieausweisvorlagegesetz: Ein Energieausweis wurde vom Eigentümer bzw. Verkäufer, nach unserer Aufklärung über die generell geltende Vorlagepflicht, sowie Aufforderung zu seiner Erstellung noch nicht vorgelegt. Daher gilt zumindest eine dem Alter und der Art des Gebäudes entsprechende Gesamtenergieeffizienz als vereinbart. Wir übernehmen keinerlei Gewähr oder Haftung für die tatsächliche Energieeffizienz der angebotenen Immobilie.
Der Vermittler ist als Doppelmakler tätig.
Infrastruktur / Entfernungen
Gesundheit
Arzt <500m
Apotheke <2.000m
Klinik <9.000m
Krankenhaus <8.000m
Kinder & Schulen
Schule <500m
Kindergarten <500m
Nahversorgung
Supermarkt <500m
Bäckerei <500m
Sonstige
Bank <500m
Geldautomat <500m
Post <1.000m
Polizei <2.500m
Verkehr
Bus <500m
Bahnhof <5.500m
Flughafen <9.500m
Angaben Entfernung Luftlinie / Quelle: OpenStreetMap
Eckdaten
Objektnr: | 7329/287 |
Art: | Büro / Praxis |
Land: | Österreich |
Zustand: | Gepflegt |
Alter: | Neubau |
Gesamtfläche: | 301,00 m² |
Bürofläche: | 276,00 m² |
Keller: | 25,00 m² |
Ausstattung
Fliesen, Parkett, Fußbodenheizung, Parkplatz
Internet und TV
Information zur Internet und TV Versorgung hier
Ihre persönliche Beratung

Herbert Eisenmann
Eisenmann Immobilien e.U.
E info@eisenmann-immobilien.at
H +43 664 831 7331