Ein Viertel Grün – gefördert, familienfreundlich und naturnah

Wohnung , 2700 Wiener Neustadt

Beschreibung der Immobilie

Gefördert - Grün - Zentral - Energieeffizient

  • geförderte Erstbezugswohnungen in attraktiver Lage - ab € 180 000!
  • Neubauprojekt in verkehrsberuhigtem Stadtquartier mit guter Infrastruktur.
  • 2–4 Zimmer, ca. 55–90 m², jeweils mit Balkon oder Garten.
  • Energieeffizient & durchdacht geplant, inkl. TG-Stellplatz & Einlagerungsraum.
  • Allgemeinflächen wie Lift, Fahrradraum, Waschküche u. v. m.
  • Fertigstellung: voraussichtlich Q1/2026

Überblick:

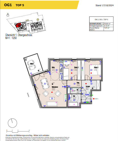
Diese ca. 77 m² große 3-Zimmer-Wohnung verfügt über ein großzügiges Wohnzimmer, zwei Schlafzimmer und eine Küche. Der Balkon mit fast 8 m² erweitert den Wohnraum nach draußen – ideal für entspannte Stunden.

Eckdaten

Objektnr: 00010107170005
Art: Wohnung
Land: Österreich
Baujahr: 2026
Kaufpreis: 260.589,42
Betriebskosten: 159,94 €
Wohnfläche: 76,90 m²
Zimmer: 3
Bäder: 1
WC: 1
Balkone: 1
Heizwärmebedarf:  A  23,40 kWh/m²a
fGEE:  A++  0,53
Immobilie merken Exposé

Ausstattung

Fernwärme, Dusche, Badewanne


Internet und TV

Information zur Internet und TV Versorgung hier


Immobilie anfragen


Ihre persönliche Beratung

Raiffeisen Immobilien Vermittlung Ges.m.b.H

Sophie Kühnel

Raiffeisen Immobilien Vermittlung

E sophie.kuehnel@riv.at

T +4351751771