5 Zimmer-Einfamilienhaus in ruhiger Siedlungslage
Haus
,
2201
Gerasdorf
Beschreibung der Immobilie
Einfamilienhaus in ruhiger Siedlungslage mit sonnigem Garten.
Gut geschnittenes Einfamilienhaus mit großzügigem Grundriss in absoluter Ruhelage in Gerasdorf, eine der gefragtesten Top-Adressen.
Das Haus wurde im Jahr 1968 errichtet und befindet sich seinem Alter entsprechend in einem guten Zustand.
Highlight des Hauses ist der sonnige Garten, wo man mit Freunden schöne Grillabende verbringen kann.
Das Haus ist vollunterkellert.
Das Grundstück hat eine Größe von ca. 604 m². Die gesamte Nutzfläche des Objektes beträgt ca. 150 m².
Die Liegenschaft gliedert sich wie folgt:
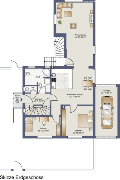
Erdgeschoss mit ca. 96 m²
- eine Küche
- zwei Schlafzimmer
- ein Wohnzimmer
- ein Badezimmer
- ein WC
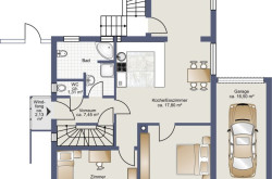
Obergeschoss mit ca. 54 m²
- ein Wohnzimmer
- ein Schlafzimmer
- eine Küche
- ein Badezimmer mit WC
- eine Terrasse
Lage und Infrastruktur:
Sie befinden sich an einer Top-Adresse mit Nahanbindung nach Wien ( ca. 10 Min. mit dem PKW ). Für Naturliebhaber bietet sich der nur 5 Autominuten entfernte Gerasdorfer Badeteich zum Entspannen an sonnigen Tagen an.
Resumé: ruhige Lage mit allen Geschäften des täglichen Bedarfs in unmittelbarer Nähe!
Hier geht´s zum 360° Rundgang: https://app.immoviewer.com/portal/tour/3131168?accessKey=6819
Viele weitere Rundgänge, so wie alle neuen s REAL Immobilienangebote finden Sie auf www.sreal.at.
Infrastruktur / Entfernungen
Gesundheit
Arzt <3.000m
Apotheke <3.000m
Klinik <6.500m
Krankenhaus <3.500m
Kinder & Schulen
Schule <3.000m
Kindergarten <3.000m
Universität <4.000m
Höhere Schule <7.500m
Nahversorgung
Supermarkt <1.000m
Bäckerei <500m
Einkaufszentrum <3.500m
Sonstige
Bank <3.000m
Geldautomat <3.000m
Post <3.500m
Polizei <3.000m
Verkehr
Bus <500m
U-Bahn <5.000m
Straßenbahn <3.000m
Bahnhof <4.500m
Autobahnanschluss <3.000m
Angaben Entfernung Luftlinie / Quelle: OpenStreetMap
Eckdaten
| Kaufpreis: | 520.000,00 € |
| Fläche: | 150,00 m² |
| Zimmer: | 5 |
Basisdaten zur Immobilie
| Objektnr: | 960/73243 |
| Art: | Haus |
| Land: | Österreich |
| Baujahr: | 1968 |
| Zustand: | Teil_vollrenovierungsbed |
| Alter: | Neubau |
| Kaufpreis: | 520.000,00 € |
| Provision: | 3% des Kaufpreises zzgl. 20% USt. |
| Nutzfläche: | 150,00 m² |
| Grundstücksfl.: | 604,00 m² |
| Zimmer: | 5 |
| Bäder: | 2 |
| WC: | 2 |
| Balkone: | 1 |
| Garten: | 455,00 m² |
| Keller: | 96,00 m² |
| Heizwärmebedarf: | D 139,30 kWh/m²a |
| fGEE: | C 1,28 |
Ausstattung
Parkett, Fliesen, Laminatboden, Gas, Zentralheizung, Einbauküche, Bad mit Fenster, Badewanne, Dusche, Garage
Internet und TV
Information zur Internet und TV Versorgung hier
Ihre persönliche Beratung
Mario Reinsperger
s REAL Immobilienvermittlung GmbH
mario.reinsperger@sreal.at
+43 (0)5 0100 - 26246
+43 664 88114529
