Geidorf: Großzügige 4 Zimmer-Mietwohnung, verglaste Loggia, WEG geeignet.
Wohnung
,
8010
Graz
Lage der Immobilie
GEIDORF - zwischen Geidorfplatz und WIFI, nahe der Kreuzschwestern, KF-Uni in guter ErreichbarkeitBeschreibung der Immobilie
Eckdaten
Objektnr: | O2100166675 |
Art: | Wohnung |
Land: | Österreich |
Baujahr: | 1969 |
Zustand: | Gepflegt |
Alter: | Neubau |
Gesamtmiete: | 1.299,06 € |
Kaltmiete (netto): | 865,00 € |
Kaltmiete: | 1.299,06 € |
Provision: | provisionsfrei |
Betriebskosten: | 246,74 € |
Heizkosten: | 63,46 € |
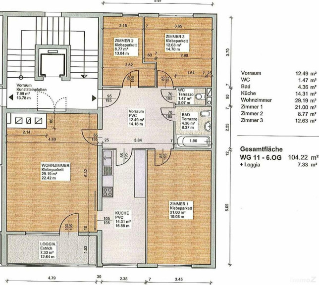
Wohnfläche: | 105,25 m² |
Gesamtfläche: | 105,25 m² |
Bürofläche: | 105,25 m² |
Zimmer: | 4 |
Bäder: | 1 |
WC: | 1 |
Stellplätze: | 1 |
Keller: | 4,00 m² |
Heizwärmebedarf: | B 28,10 kWh/m²a |
fGEE: | C 1,20 |
Ausstattung
Parkett, Fernwärme, Einbauküche, Personenaufzug, Dusche, Kabel/Satelliten-TV
Internet und TV
Information zur Internet und TV Versorgung hier
Ihre persönliche Beratung

Michael Brandstätter
Immobilien Brandstätter GmbH
E michael@brandstaetter.at
T +43 316 321 38312
H +43 699 100 27 209
F +43 316 321 383 32