Lage der Immobilie
In unmittelbarer Nähe befinden sich das Designer Outlet Center Salzburg, diverse Event- und Erlebnisgastronomien sowie das Cineplexx-Kino. Für Nächtigungsmöglichkeiten vor Ort sorgen das Star Inn Hotel und das IBIS-Hotel. Außerdem garantiert die Nähe zum Salzburg Airport eine einzigartige Verkehrsanbindung in alle Richtungen. Autobahnauffahrten A1 Richtung München sowie Richtung Wien auf kurzem Wege erreichbar.Beschreibung der Immobilie
Eine hochwertige Bürofläche in herausragender Lage.
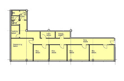
Dieses außergewöhnliche Objekt gliedert sich wie folgt:
1. Obergeschoss:
- Flur
- Büro 1
- Büro 2
- Büro 3
- Büro 4
- Büro 5
- Abstellraum (AR)
- Archiv
- Damen-WC
- Herren-WC
- Küche
Für Kunden und Mitarbeiter stehen drei Tiefgaragenstellplätze sowie ein Freistellplatz zur Verfügung.
Mietvertragsdauer:
nach Vereinbarung - langfristiges Mietverhältnis erwünscht.
Der Ordnung halber wird festgehalten, dass die IMMO Oberndorfer Fazlali GmbH als Doppelmakler tätig ist und mit dem Vermieter in regelmäßiger, geschäftlicher Verbindung steht.
Sonstiges:
Bitte beachten Sie:
Aufgrund unserer Nachweispflicht gegenüber dem Eigentümer ersuchen wir um Verständnis, dass wir nur Anfragen mit vollständiger Angabe des Namens und der Kontaktdaten des jeweiligen Interessenten bearbeiten können.
Sämtliche hier gemachte Angaben sind lediglich unverbindliche Vorinformationen, erfolgen nach bestem Wissen, jedoch ohne Gewähr. Insbesondere kann es sich bei gegenständlichen Angaben um von uns nicht auf Richtigkeit und/oder Vollständigkeit geprüfte Angaben von Dritten handeln, für welche wir ausdrücklich keine Haftung übernehmen. Sämtliche Angebote sind freibleibend. Irrtum und Zwischenverwertung vorbehalten.
Noch nichts gefunden? Wir informieren Sie über geeignete Immobilienangebote noch vor allen anderen.
Legen Sie jetzt Ihren individuellen Suchagenten unter folgendem Link an. Wir schicken Ihnen passende Immobilien exklusiv vorab zu.
Suchagent anlegen - https://immo-oberndorfer-fazlali.service.immo/registrieren/de
Infrastruktur / Entfernungen
Gesundheit
Arzt <1.000m
Apotheke <500m
Klinik <2.500m
Krankenhaus <3.500m
Kinder & Schulen
Schule <1.000m
Kindergarten <500m
Universität <3.500m
Höhere Schule <3.500m
Nahversorgung
Supermarkt <500m
Bäckerei <500m
Einkaufszentrum <3.000m
Sonstige
Bank <500m
Geldautomat <500m
Post <1.500m
Polizei <500m
Verkehr
Bus <500m
Bahnhof <3.000m
Autobahnanschluss <1.000m
Flughafen <1.000m
Angaben Entfernung Luftlinie / Quelle: OpenStreetMap
Eckdaten
| Kaltmiete (netto): | 2.640,00 € |
| Fläche: | 168,25 m² |
| Zimmer: | 5 |
Basisdaten zur Immobilie
| Objektnr: | 514 |
| Art: | Büro / Praxis |
| Land: | Österreich |
| Zustand: | Modernisiert |
| Kaltmiete (netto): | 2.640,00 € |
| Kaltmiete: | 3.001,67 € |
| Provision: | 3 Bruttomonatsmieten zzgl. 20% USt. |
| Betriebskosten: | 361,67 € |
| Heizkosten: | 116,67 € |
| MwSt Gesamt: | 623,66 € |
| Nutzfläche: | 168,25 m² |
| Bürofläche: | 168,25 m² |
| Zimmer: | 5 |
| WC: | 2 |
| Stellplätze: | 1 |
| Heizwärmebedarf: | B 36,00 kWh/m²a |
| fGEE: | B 0,93 |
Ausstattung
Teppichboden, Gas, Zentralheizung, Personenaufzug, Parkplatz, Tiefgarage, Teeküche
Internet und TV
Information zur Internet und TV Versorgung hier
Ihre persönliche Beratung
Siawash Fazlali, MSc
IMMO Oberndorfer Fazlali GmbH
makler@immo-oberndorfer.at
+43 662 83310233
+43 664 88606453
