tolles Einfamilienhaus in Kirchberg
Haus
,
3204
Kirchberg an der Pielach
Beschreibung der Immobilie
Modernes, liebevoll gestaltetes Einfamilienhaus in Kirchberg/Pielach.
Das um 2009 in Vollholz-Massivbauweise errichtete Wohnhaus befindet sich auf einem perfekt genützten Eckgrundstück in ruhiger Lage mit Blick auf das Schloss Kirchberg.
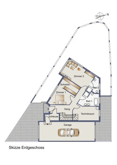
Die Wohnfläche von ca. 147 m² verteilt sich auf 2 Ebenen, die Küche mit Wohn-Essbereich, sowie die daran anschließende Terrasse befinden sich im oberen Stockwerk des Hauses, dies bewirkt ein ganz besonderes Wohngefühl sowie einen tollen Ausblick vom Wohnraum als auch der Terrasse. Ein Schlafzimmer mit Ausgang zum Dachgarten, auf dem sich ein Hochbeet befindet, sowie ein WC befinden sich ebenfalls im Obergeschoß.
Im Erdgeschoß befinden sich 2 weitere Schlafzimmer, eines davon mit eigenem Schrankraum, das andere mit eigenem vollwertigem Badezimmer.
Ein weiteres, kürzlich modernisiertes Badezimmer, der Technikraum sowie eine Schleuse welche direkten Zugang zur Garage ermöglicht, befinden sich ebenfalls im Erdgeschoß. Die Schleuse selbst wird als Garderobe benutzt, somit bleibt der Eingangsbereich aufgeräumt.
Das Haus wird ohne Aufpreis möbliert übergeben.
Die Garage bietet Platz für 2 Fahrzeuge (hintereinander), diese ist mit 2 Toren ausgestattet.
Die Heizung erfolgt über den Fußboden und wird mittels Fernwärme betrieben, zusätzlich gibt es eine Solaranlage für die Warmwasseraufbereitung.
Im Kaufpreis ist eine Wohnbauförderung enthalten.
Kirchberg a.d. Pielach:
Die Ortschaft bietet eine umfassende Infrastruktur (Schulen, Gaststätten, Einkaufsmöglichkeiten, Ärzte sowie allerlei Freizeitaktivitäten).
Der Bahnhof ist lediglich 3 Gehminuten entfernt und ist mittels Mariazeller-Bahn angebunden.
Anbindung Autobahn (A1) ist ca. 30 Minuten entfernt.
Infrastruktur / Entfernungen
Gesundheit
Arzt <500m
Apotheke <500m
Klinik <9.000m
Kinder & Schulen
Schule <3.500m
Kindergarten <500m
Nahversorgung
Supermarkt <500m
Bäckerei <500m
Sonstige
Bank <500m
Geldautomat <500m
Post <500m
Polizei <500m
Verkehr
Bus <500m
Bahnhof <500m
Angaben Entfernung Luftlinie / Quelle: OpenStreetMap
Eckdaten
| Objektnr: | 960/73312 |
| Art: | Haus |
| Land: | Österreich |
| Baujahr: | 2009 |
| Zustand: | Gepflegt |
| Möbliert: | Voll |
| Alter: | Neubau |
| Kaufpreis: | 449.000,00 € |
| Provision: | 3% des Kaufpreises zzgl. 20% USt. |
| Wohnfläche: | 147,00 m² |
| Grundstücksfl.: | 318,00 m² |
| Zimmer: | 4 |
| Bäder: | 2 |
| WC: | 3 |
| Terrassen: | 1 |
| Heizwärmebedarf: | B 39,30 kWh/m²a |
| fGEE: | A+ 0,56 |
Ausstattung
Fliesen, Fernwärme, Einbauküche, Bad mit Fenster, Badewanne, Dusche, Garage
Internet und TV
Information zur Internet und TV Versorgung hier
Ihre persönliche Beratung
Cayan Acar
s REAL Immobilienvermittlung GmbH
E cayan.acar@sreal.at
T +43 (0)5 0100 - 26248
H +43 664 6279210
