Beschreibung der Immobilie
Diese charmante und kompakte Wohnung befindet sich in einem wunderschönen, modern sanierten Altbau und überzeugt durch ihre hochwertige Ausstattung.
Dank der bestehenden Beherbergungswidmung ist die Einheit für die Kurzzeitvermietung vorgesehen – ein attraktives Konzept, das dem Eigentümer stabileund überdurchschnittliche Renditen ermöglicht. Das Objekt wird derzeit bereits erfolgreich und zu sehr guten Konditionen vermietet.
Die Wohnung ist voll ausgestattet. Dabei wurde besonderer Wert auf Qualität, Design und Langlebigkeit gelegt.
Im Wohnbereich sind hochwertige Parkettböden verlegt, während die Badezimmer mit edlen 60x60 cm Marazzi-Fliesen und bodengleichen Walk-in-Duschen ein exklusives Ambiente schaffen. Die modernen Küchenzeilen sind mit Induktionskochfeld, Mikrowelle, Kühlschrank sowie einer Design-Spüle mit schwarzen Armaturen ausgestattet.
Das Apartment verfügt über ein ausklappbares 1-Sitzer-Sofa mit Bettfunktion sowie ein Boxspringbett in Hotelqualität, das höchsten Schlafkomfort bietet.
Die Beheizung erfolgt komfortabel über eine Fußbodenheizung mittels Fernwärme.
Standort und Lage:
Durch die zentrale und unmittelbare Lage bei der U-Bahn Linie U1 und der Fußgängerzone Favoritenstraße ist dieser Standort optimal für Stadttouristen. Gleichzeitig bietet er aber auch Business Gästen oder Studierenden eine kurz- oder mittelfristige Wohngelegenheit.
Zu Fuß erreichbar ist die große Shoppingmeile an der Fußgängerzone Favoritenstraße mit zahlreichen Shops, Restaurants und Lokalen. Trotz der zentralen Lage befinden sich mehrere große Naherholungsgebiete in unmittelbarer Nähe. Dazu zählen die Therme Oberlaa, die Parkanlage Löwygrube mit dem Vergnügungspark Böhmischer Prater sowie das weitläufige Naherholungsgebiet am Wienerberg.
Kaufpreis: netto € 180.000,- (zzgl. 20 % USt.)
AKTION: Bei KAUFVERTRAGSABSCHLUSS bis 31.12.2025 gilt ein reduzierter Kaufpreis von 175.000,- Euro.
Preis Möbel- und Einrichtungspaket: € 13.846,- zzgl. 20% USt. Möbel- und Einrichtungspaket ist NICHT im Kaufpreis enthalten.
Rechtlicher Hinweis:
Alle Angaben beruhen auf Vergangenheitswerten und Annahmen; sie stellen keine Garantie für zukünftige Entwicklungen dar. Sämtliche Bilder, Visualisierungen, Pläne und KI-generierte Darstellungen, die in den Inseraten verwendet werden, dienen ausschließlich als Referenz. Die gezeigte Einrichtung und Fotos sind beispielhaft und können von der tatsächlichen Ausstattung oder dem Layout abweichen. Alle Angaben beruhen auf Informationen des Verkäufers.
Noch nichts gefunden? Wir informieren Sie über geeignete Immobilienangebote noch vor allen anderen.
Legen Sie jetzt Ihren individuellen Suchagenten unter folgendem Link an. Wir schicken Ihnen passende Immobilien exklusiv vorab zu.
Suchagent anlegen - https://accenta-immobilien.service.immo/registrieren/de
Wir weisen darauf hin, dass zwischen dem Vermittler und dem zu vermittelnden Dritten ein familiäres oder wirtschaftliches Naheverhältnis besteht.
Der Vermittler ist als Doppelmakler tätig.
Sie möchten Ihre Immobilie verkaufen oder vermieten?
Vertrauen Sie auf unsere Erfahrung – mit geprüfter Qualität und transparenter Abwicklung.
Die Immobilien Card garantiert Ihnen, dass Sie mit einem geprüften Profi für Verkauf und Vermietung sprechen.
Infrastruktur / Entfernungen
Gesundheit
Arzt <50m
Apotheke <175m
Klinik <200m
Krankenhaus <1.825m
Kinder & Schulen
Schule <175m
Kindergarten <375m
Universität <850m
Höhere Schule <2.275m
Nahversorgung
Supermarkt <50m
Bäckerei <150m
Einkaufszentrum <900m
Sonstige
Geldautomat <100m
Bank <100m
Post <100m
Polizei <600m
Verkehr
Bus <150m
U-Bahn <200m
Straßenbahn <100m
Bahnhof <200m
Autobahnanschluss <1.275m
Angaben Entfernung Luftlinie / Quelle: OpenStreetMap
Eckdaten
| Kaufpreis: | 175.000,00 € |
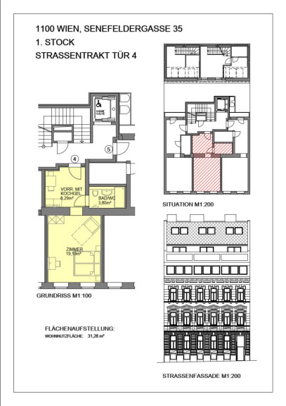
| Fläche: | 31,28 m² |
| Zimmer: | 1 |
Basisdaten zur Immobilie
| Objektnr: | 11430 |
| Art: | Wohnung |
| Land: | Österreich |
| Baujahr: | 1900 |
| Zustand: | Erstbezug |
| Möbliert: | Voll |
| Kaufpreis: | 175.000,00 € |
| Kaufpreis / m²: | auf Anfrage |
| Provision: | 3% des Kaufpreises zzgl. 20% USt. |
| Wohnfläche: | 31,28 m² |
| Nutzfläche: | 31,28 m² |
| Gesamtfläche: | 31,28 m² |
| Zimmer: | 1 |
| Bäder: | 1 |
| WC: | 1 |
| Heizwärmebedarf: | B 31,43 kWh/m²a |
| fGEE: | A 0,77 |
Ausstattung
Parkett, Fliesen, Fernwärme, Fußbodenheizung, Einbauküche, Personenaufzug, Dusche
Internet und TV
Information zur Internet und TV Versorgung hier
Ihre persönliche Beratung
Martina Schütz
Accenta Immobilien e.U.
martina.schuetz@accenta-immo.at
+43 1 9971293
+43 699 17089345
F +43 1 997129310
