Lage der Immobilie
Obere Donaustraße 63Beschreibung der Immobilie
Oberer Donaustraße 63 – Exklusive Wohneinheit mit moderner Ausstattung
Diese Wohnung in der Oberen Donaustraße 63 bietet durch ihre umfassende Sanierung einen hohen Wohnstandard. Sie befindet sich in einer ruhigen Lage und zeichnet sich durch ihre moderne Ausstattung und durchdachte Raumgestaltung aus.
Wesentliche Merkmale:
-
Umfassende Sanierung:
Die Wohnung wurden mit neuen Boden- und Wandbelägen, modernen Fenstern sowie hochwertiger Bad- und Küchenausstattung versehen. -
Lage und Etagen:
Diese Einheit befindet sich im 5. Liftstock (DG) -
Ruhe und Aussicht:
Die Wohnung ist hofseitig ausgerichtet und bietet somit eine ruhige Wohnatmosphäre ohne Lärmbelästigung von der Oberen Donaustraße. -
Zusätzliche Ausstattung:
- Das Objekt verfügt ein praktisches Kellerabteil im Untergeschoss.
- Verschiedene Möglichkeiten zur Fahrradabstellung sind vorhanden.
- In der Garage befinden sich E-Ladestationen für Elektrofahrzeuge.
- Heizung erfolgt über Fernwärme.
- Internetanschluss über A1 oder Magenta möglich.
-
Wohnungsdetails:
- Parkettböden sorgen für ein hochwertiges Ambiente.
- Die Küche ist voll ausgestattet und bietet modernen Komfort
- Die Wohnung ist klimatisiert
Kaution 3 BMM
Befristung 5 Jahre
Bitte beachten Sie, dass Ihr Nettoeinkommen mind. das 2,5-fache der Bruttomiete betragen muss.
Infrastruktur / Entfernungen
Gesundheit
Arzt <500m
Apotheke <500m
Klinik <500m
Krankenhaus <1.000m
Kinder & Schulen
Schule <500m
Kindergarten <500m
Universität <1.000m
Höhere Schule <1.000m
Nahversorgung
Supermarkt <500m
Bäckerei <500m
Einkaufszentrum <1.500m
Sonstige
Geldautomat <500m
Bank <500m
Post <500m
Polizei <500m
Verkehr
Bus <500m
U-Bahn <500m
Straßenbahn <500m
Bahnhof <500m
Autobahnanschluss <3.000m
Angaben Entfernung Luftlinie / Quelle: OpenStreetMap
Eckdaten
| Objektnr: | 960/73326 |
| Art: | Wohnung |
| Land: | Österreich |
| Zustand: | Teil_vollrenoviert |
| Alter: | Neubau |
| Gesamtmiete: | 1.631,09 € |
| Kaltmiete (netto): | 1.190,56 € |
| Kaltmiete: | 1.482,81 € |
| Provision: | Gemäß Erstauftraggeberprinzip bezahlt der Abgeber die Provision. |
| Betriebskosten: | 268,32 € |
| MwSt Gesamt: | 148,28 € |
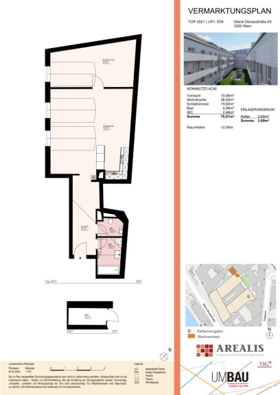
| Wohnfläche: | 76,81 m² |
| Zimmer: | 2 |
| Bäder: | 2 |
| WC: | 1 |
| Heizwärmebedarf: | B 45,90 kWh/m²a |
| fGEE: | C 2,09 |
Ausstattung
Fliesen, Parkett, Fernwärme, Einbauküche, Personenaufzug
Internet und TV
Information zur Internet und TV Versorgung hier
Ihre persönliche Beratung
Paul Tibaj
s REAL Immobilienvermittlung GmbH
E paul.tibaj@sreal.at
T +43 (0)5 0100 - 26260
H +43 664 88998632
