Beschreibung der Immobilie
Wittgenstein 23 – Villenflair zwischen Hietzing und Mauer
Die Wittgensteinstraße zählt zu den klassischen Wiener Villenstraßen und verbindet Rosenhügelstraße mit Speisingerstraße. Hier treffen Hietzings Flair und das Grün von Mauer aufeinander. Die Umgebung besticht durch großzügige Gärten, alte Bäume und detailreiche Villen. Wiesen des Lainzer Tiergartens, Wienerwald-Spaziergänge und Traditionsheurige wie Wiltschko oder Steinklammer liegen in unmittelbarer Nähe. Ein idealer Ort für Familien, die Wohnqualität und Ästhetik schätzen.
Das Projekt
Wittgenstein 23 umfasst sieben Eigentumswohnungen und ein Doppelhaus mit Wohnflächen von 38 bis 156 m² und großzügigen Freiflächen. Die Architektur verbindet traditionelle Villenformen mit modernen Elementen und schafft ein gemeinschaftliches Wohngefühl. Lichtdurchflutete Räume, natürliche Materialien und klare Linien fügen sich harmonisch in das gewachsene Umfeld ein.
- Tiefgarage mit vorbereiteten Anschlüssen für E-Ladestationen
- ein Stellplatz kann um € 35.000,- dazu erworben werden
- Kellerabteile für jede Einheit
- Hausinterne Räume für Fahrräder und Kinderwägen
- Geothermie (Heizen/Kühlen) und Photovoltaik für nachhaltige Energieversorgung
- Natürliche Materialien und hochwertige Ausstattung
Wittgenstein 23 vereint Lebensqualität, Nachhaltigkeit und niedrige Betriebskosten – ein Zuhause, das sich selbstverständlich in seine Umgebung einfügt.
Die Lage
Die Wittgensteinstraße zieht sich sanft den Hang hinauf – oben eröffnet sich ein Ausblick über ein Stück Wien, das Stadt und Landschaft vereint. Dieses „Dorf in der Stadt“ ermöglicht Urbanität und Natur gleichermaßen: Vormittags im Zentrum arbeiten, am Nachmittag im Wald oder auf dem Rad entspannen, abends ein Glas Wein beim Heurigen genießen.
Nur wenige Schritte trennen die Bewohner von den Spazierwegen des Lainzer Tiergartens, den Mauerer Weinbergen und den traditionellen Heurigen. Hier wird Work-Life-Balance greifbar – Natur, Erholung und Familienzeit liegen direkt vor der Haustür.
Die renommierte Privatschule St. Ursula liegt direkt im Viertel. Nahversorgung, Gesundheitszentren und Freizeitmöglichkeiten sind fußläufig erreichbar. Eine schnelle Anbindung ins Zentrum ist über S-Bahn, Bus und Straßenbahn gewährleistet.
Wittgenstein 23 verbindet Rückzugsort und Lebensmittelpunkt: ein Zuhause, in dem man ankommt, bleibt und wächst – Ausgangspunkt für ein urbanes Lebensgefühl zwischen Natur, Kultur und Stadt.
Provisionsfrei für den Käufer!
Fertigstellung: voraussichtlich 1. Quartal 2028
Wir weisen darauf hin, dass zwischen dem Vermittler und dem zu vermittelnden Dritten ein familiäres oder wirtschaftliches Naheverhältnis besteht.
Der Vermittler ist als Doppelmakler tätig.
Infrastruktur / Entfernungen
Gesundheit
Arzt <500m
Apotheke <1.000m
Klinik <1.500m
Krankenhaus <1.000m
Kinder & Schulen
Schule <500m
Kindergarten <500m
Universität <3.500m
Höhere Schule <5.500m
Nahversorgung
Supermarkt <1.000m
Bäckerei <1.000m
Einkaufszentrum <2.500m
Sonstige
Geldautomat <500m
Bank <1.000m
Post <1.000m
Polizei <2.500m
Verkehr
Bus <500m
U-Bahn <4.000m
Straßenbahn <500m
Bahnhof <2.000m
Autobahnanschluss <4.000m
Angaben Entfernung Luftlinie / Quelle: OpenStreetMap
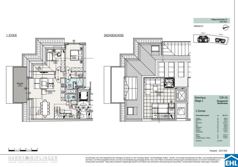
Eckdaten
| Kaufpreis: | 997.000,00 € |
| Fläche: | 104,77 m² |
| Zimmer: | 3 |
Basisdaten zur Immobilie
| Objektnr: | 90433 |
| Art: | Wohnung |
| Land: | Österreich |
| Baujahr: | 2028 |
| Zustand: | Erstbezug |
| Alter: | Neubau |
| Kaufpreis: | 997.000,00 € |
| Provision: | Provision bezahlt der Abgeber. |
| Wohnfläche: | 104,77 m² |
| Zimmer: | 3 |
| Bäder: | 1 |
| WC: | 1 |
| Balkone: | 1 |
| Terrassen: | 1 |
| Keller: | 11,44 m² |
| Heizwärmebedarf: | B 33,80 kWh/m²a |
| fGEE: | A+ 0,67 |
Ausstattung
Fliesen, Parkett, Erdwärme, Fußbodenheizung, Badewanne, Dusche
Internet und TV
Information zur Internet und TV Versorgung hier
Ihre persönliche Beratung
Ilse Reindl
EHL Immobilien GmbH
i.reindl@ehl.at
+43 1 5127690 410
+43 664 881 601 43
