Immobilie merken

Sanierte Mietwohnung in ruhiger Siedlungslage!

Wohnung , 3100 St. Pölten

Lage der Immobilie

Autobahnnähe, Bahnhofsnähe, öffentl. Verkehrsmittel, Siedlungslage, sonnig, Zentrum-Nähe

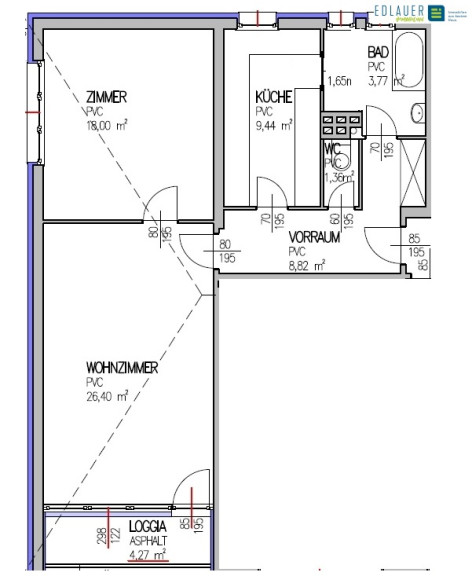
Beschreibung der Immobilie

Sanierte Mietwohnung in ruhiger Siedlungslage! KURZBESCHREIBUNG: sehr gute öffentliche Verkehrsanbindung, hervorragende Individualverkehrsanbindung, Einkaufsmöglichkeiten und Infrastruktur im nahen Umkreis, Sanierung 2022; DETAILBESCHREIBUNG: Lage: Die Wohnung ist nur 2 Kilometer vom Einkaufszentrum Traisenpark entfernt und liegt im St. Pöltner Stadtteil Wagram. Die Lage kann zweifellos als ausgezeichnet betitelt werden. Denn diverse Einkaufsmöglichkeiten lassen sich bequem in wenigen Minuten mit dem Fahrrad oder Auto erreichen. Seien es nun Dinge des täglichen Bedarfs, Lebensmittel, Sportartikel, Bekleidung oder einfach nur der Besuch eines Kaffeehauses, all das finden Sie im Traisenpark und dem nahegelegenen Traisencenter. Für ein breites Freizeitangebot sorgen die beiden Traisendämme und die beiden Badeseen. Öffentliche Verkehrsmittel: Etwa 1 Gehminute von der Wohnung entfernt befindet sich eine Busstation. Beschreibung/Raumprogramm: Die im 3. Obergeschoß befindliche Mietwohnung besitzt eine Gesamtnutzfläche von ca. 74,30 m² und gliedert sich in: Vorzimmer, Küche (neu 2022), Wohnzimmer, Schlafzimmer, Badezimmer und WC. Prekaristisch überlassen wird ein Kellerabteil. Angesichts der kompakten Raumaufteilung ist die Wohnung für zwei Personen bestens geeignet. Parkmöglichkeit: Parkplätze stehen am Rand der umliegenden Straßen zur Verfügung. Beheizung/Warmwasseraufbereitung: Die Beheizung und Warmwasseraufbereitung der Wohnung erfolgt mittels Gas-Etagenheizung. Vertragskonditionen: Der Mietvertrag wird auf einen Zeitraum von 5 Jahren befristet. Eine Kündigung seitens des Mieters ist frühestens nach Ablauf eines Jahres unter Einhaltung einer dreimonatigen Kündigungsfrist möglich. Kosten: Die monatliche Miete von EUR 749,27 versteht sich inklusive Betriebskosten und gesetzlicher Umsatzsteuer. Die verbrauchsabhängigen Kosten für Heizung und Strom werden direkt mit dem Energieversorgungsunternehmen verrechnet. Nebenkosten: Kaution: EUR 2.600,- Hinweis auf Naheverhältnis: Wir weisen darauf hin, dass zum Vermieter ein wirtschaftliches Naheverhältnis besteht (wiederholte Beauftragungen). Verfügbarkeit: Das Objekt steht ab sofort zur Verfügung. Besichtigung: Eine Besichtigung ist nach vorheriger Terminvereinbarung möglich. Energiekennzahl: Energieausweis vom 12.03.2018 HWB (Heizwärmebedarf) 29,6 kWh/m²/a (=Klasse B) FGEE (Gesamt-Energieeffiziensfaktor 1,93 (=Klasse D) Gerne stehen wir Ihnen für etwaige Auskünfte oder zur Vereinbarung eines Besichtigungstermins zu Verfügung. Objektnummer: 7255 Halten Sie bitte bei telefonischen Auskünften diese Objektnummer bereit. Wir ersuchen aus organisatorischen Gründen (Datenbankpflege) und aufgrund unserer Nachweispflicht gegenüber dem Abgeber um vollständige Angabe Ihrer Kontaktdaten einschließlich Vor- und Zuname, Adresse und Telefonnummer. Der Schutz Ihrer personenbezogenen Daten ist uns ein großes Anliegen. Wir verwenden Ihre Daten für die Interessenten- und Kundenverwaltung im Rahmen der Immobilienvermittlung (z.B. für die Zusendung von Immobilienangeboten). Die Rechtsgrundlage dafür bildet – sofern nicht eine gesetzliche Grundlage vorliegt – ein abgeschlossener Vertrag bzw. eine Vertragsanbahnung (Vermittlungsvertrag). Die Weitergabe personenbezogener Daten erfolgt ohne ausdrückliche separate Einwilligung nur insoweit, wie es für Vertragsabwicklungen erforderlich ist. Keinesfalls werden Ihre Daten zu Werbezwecken o.ä. weitergegeben. Unsere Mitarbeiter und unsere Dienstleistungsunternehmen sind zur Verschwiegenheit und zur Einhaltung der Datenschutzbestimmungen verpflichtet. Lesen Sie mehr in unserer Datenschutzerklärung auf unserer Homepage.

Eckdaten

Objektnr: 202/07255
Art: Wohnung
Land: Österreich
Gesamtmiete: 749,27
Kaltmiete (netto): 494,00 €
Kaltmiete: 749,27 €
Wohnfläche: 74,30 m²
Zimmer: 2
Bäder: 1
WC: 1
Heizwärmebedarf:  B  27,30 kWh/m²a
fGEE:  D  1,93

Ausstattung

Gas, Etagenheizung



Internet und TV

Information zur Internet und TV Versorgung hier




Immobilie anfragen




Ihre persönliche Beratung

Realkanzlei Edlauer Immobilientreuhänder

Gregor LAMP

Realkanzlei Edlauer Immobilientreuhänder

g.lamp@edlauer.com

+43/2742/35243854

+43/660/507 90 96

F +43/2742/352438 - 3


Realkanzlei Edlauer Immobilientreuhänder - Immobilen Makler

Josefstraße 19, 3100 St. Pölten

+43/2742/352438-0

https://www.edlauer.com