Kammgarn Fabrik Commercial

Halle / Lager / Produktion - Werkstatt, 6971 Hard

Beschreibung der Immobilie

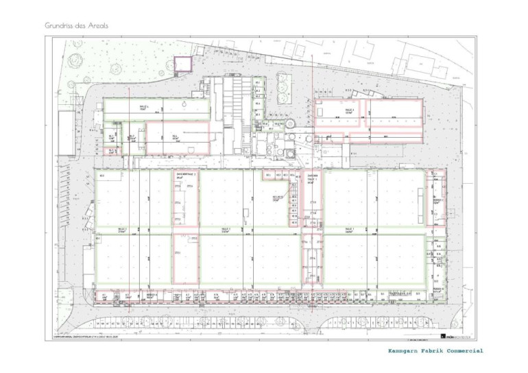
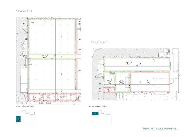
* Über 10.000 m2 Lager und Produktionsfläche
* Büroräume
* WC und Sanitäreinrichtungen
* Ausreichend Parkplätze
* Flair eines denkmalgeschützten Industrieareals
* Rangierflächen
* Zentrale Lage / Seenähe
* Laderampe

Die Kammgarn Fabrik in Hard ist ein beeindruckendes Industrieareal, das Tradition und Moderne vereint. Mit über 10.000 m² Lager und Produktionsflächen sowie integrierten Büroräumen bietet sie ideale Bedingungen für vielseitige Nutzungsmöglichkeiten.

Neben ausreichend Park- und Rangierflächen verfügt das Areal über WC- und Sanitäreinrichtungen und überzeugt durch das Flair
eines denkmalgeschützten Industriebauwerks.

Die Lagerflächen im Kammgarn-Quartier sind vielseitig nutzbar und passen sich an Ihre Anforderungen an. Mit unterschiedlichen Raumgrößen und flexiblen Mietoptionen bieten wir die ideale Lösung für jede Lageranfrage - ob saisonal, langfristig
oder temporär.
Provision 2 Bruttomonatsmiete zzgl. 20% MwSt.
Kaution: 3 BMM Bankgarantie oder Bar
Vertragserrichtungskosten
Mietvertragsgebühren

Eckdaten

Objektnr: 2552_5641
Art: Halle / Lager / Produktion - Werkstatt
Land: Österreich
Baujahr: 1896
Zustand: Gepflegt
Nutzfläche: 10.915,00 m²
Immobilie merken Exposé

Internet und TV

Information zur Internet und TV Versorgung hier


Immobilie anfragen


Ihre persönliche Beratung

RE/MAX Immowest

Reinhard Götze

RE/MAX Immowest

E r.goetze@remax-immowest.at

T +43/5574/53434210

H +43 664/4437058