Wohn(t)raum mit Aussicht - 3-Zimmerwohnung m. Balkon - Top 11

Wohnung - Etage, 6542 Pfunds

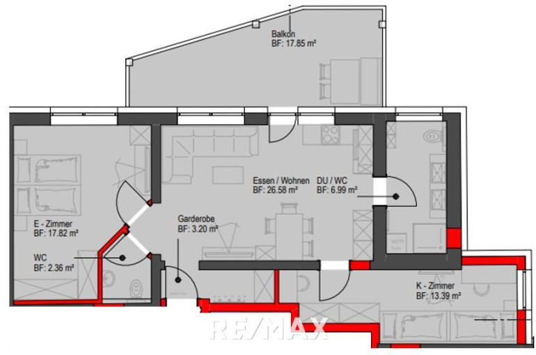
Beschreibung der Immobilie

Wohn(t)raum mit Aussicht - 3-Zimmer Wohnung mit Balkon - Top 11

• Wohnfläche: ca. 70,34 m²
• Ein Balkon: ca. 17,85 m²
• Zwei Schlafzimmer
• Zwei Badezimmer mit je Dusche und WC
• Lift vorhanden
• Lage: Pfunds, Tirol, in den Alpen
• Eigenes Kellerabteil
• Carport-Parkplätze und Frei-Parkplätze (zusätzlich erwerbbar)
• WOHNBAUFÖRDERUNG möglich

Für nähere Informationen zur Immobilie fordern Sie bitte ein Exposé an.
Wir bitten Sie um Verständnis, dass wir unserer Nachweispflicht nachkommen müssen und wir Anfragen nur unter Angabe der vollständigen Kontaktdaten (Name, Adresse, Telefonnummer, Email) beantworten können!
Nicht alle Immobilien sind auf der Webseite zu sehen. Sie können uns gerne Ihren Suchwunsch bekannt geben.
Angaben gemäß gesetzlichem Erfordernis:
Heizwärmebedarf:60.6 kWh/(m²a)
Klasse Heizwärmebedarf:C
Faktor Gesamtenergieeffizienz:0.86
Klasse Faktor Gesamtenergieeffizienz:B

Weitere interessante Objekte finden Sie unter http://www.remax-recon.at/

Eckdaten

Objektnr: 1613_11247
Art: Wohnung - Etage
Land: Österreich
Zustand: Erstbezug
Kaufpreis: 298.000,00
Provision: 3.00 %
Wohnfläche: 70,34 m²
Zimmer: 3
Bäder: 2
WC: 2
Keller: 2,67 m²
Heizwärmebedarf:  C  60,60 kWh/m²a
fGEE:  B  0,86
Immobilie merken Exposé

Ausstattung

Zentralheizung, Personenaufzug


Internet und TV

Information zur Internet und TV Versorgung hier


Immobilie anfragen


Ihre persönliche Beratung

RE/MAX Recon 4

Ines Raggl

RE/MAX Recon

E office@remax-recon.at

H +43 5 99 97 10