Moderne Single-Wohnung mit Gartenidylle in Graz

Wohnung - Etage, 8055 Graz , Nippelgasse 111

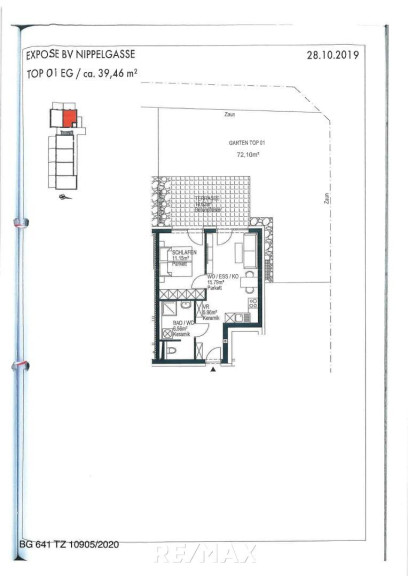
Beschreibung der Immobilie

Die charmante und modern ausgestattete 2-Zimmer-Single-Wohnung befindet sich im Erdgeschoss eines gepflegten Wohnhauses, das 2019 errichtet wurde. Die Wohnung überzeugt durch einen großzügigen privaten Garten mit Terrasse.

Raumaufteilung

* Vorraum
* Wohn-/Essbereich mit offener, großzügiger Küche und lichtdurchflutet
* Schlafzimmer
* Badezimmer mit WC - ausgestattet mit Dusche und Waschmaschinenanschluss

Alle Wohnräume sind mit verstellbaren Raffstores ausgestattet, die sowohl Sonnen- als auch Sichtschutz bieten.

Highlight der Wohnung

* 70 Quadratmeter privater Garten - ideal zum Entspannen, Gärtnern oder für gesellige Stunden
* Terrasse ca. 15 Quadratmeter
* Kellerabteil - zusätzlicher Stauraum
* Abstellplatz im Freien
* Barrierefreier Zugang dank Lift - bequem und altersgerecht

Die Wohnung befindet sich in einer ruhigen und gut angebundenen Wohngegend in Graz. Schule und Kindergarten befinden sich in unmittelbarer Nähe - perfekt für Singles oder als Investition mit Zukunftspotenzial.
Öffentliche Verkehrsmittel, Einkaufsmöglichkeiten sowie Freizeitangebote sind ebenfalls schnell erreichbar.

Für einen Besichtigungstermin bitte ich um eine schriftliche Anfrage mit Ihren Kontaktdaten.
Angaben gemäß gesetzlichem Erfordernis:
Heizwärmebedarf:34.0 kWh/(m²a)
Klasse Heizwärmebedarf:B

RE/MAX App mit zahlreichen Mehrwerten ab sofort verfügbar!

Alle Immobilien sowie Objektvideos und 360°-Bilder finden Sie auf www.remax.at

Eckdaten

Objektnr: 1605_5248
Art: Wohnung - Etage
Land: Österreich
Baujahr: ca. 2019
Zustand: Gepflegt
Möbliert: Teil
Kaufpreis: 195.000,00
Provision: 3.00 %
Wohnfläche: 39,50 m²
Zimmer: 2
Bäder: 1
Terrassen: 1
Stellplätze: 1
Garten: 70,00 m²
Keller: 3,00 m²
Heizwärmebedarf:  B  34,00 kWh/m²a
Immobilie merken Exposé

Ausstattung

Zentralheizung, Personenaufzug, Parkplatz


Internet und TV

Information zur Internet und TV Versorgung hier


Immobilie anfragen


Ihre persönliche Beratung

RE/MAX Leibnitz

Barbara Jöbstl

RE/MAX Leibnitz

E barbara.joebstl@remax-leibnitz.at

H +436646253470

F +43345282341