Immobilie merken

Moderne Altbauwohnung mit Klimaanlage und Balkon!

Wohnung , 3100 St. Pölten

Lage der Immobilie

Altstadt, Balkon/Terrasse hofseitig, Fußgängerzone, hofseitig, repräsentativ, ruhig, Zentrum

Beschreibung der Immobilie

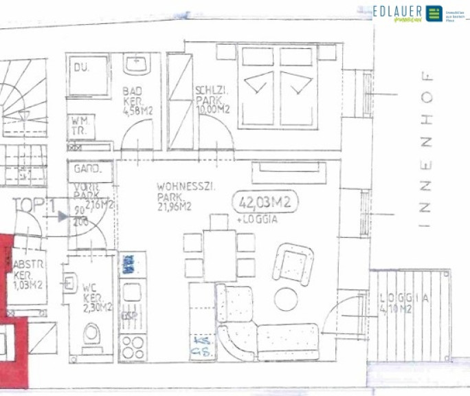
Moderne Altbauwohnung mit Klimaanlage und Balkon! HIGHLIGHTS - kurz und bündig: - UNBEFRISTETE VERTRAGSDAUER - SÜDSEITIGER BALKON - KLIMATISIERT - ECHTHOLZPARKETTBÖDEN - 3-FACH-VERGLASUNG - SOFORT BEZIEHBAR Lage: Kleines gemischtes Wohn- und Geschäftshaus mit nur 5 Mieteinheiten inmitten der St. Pöltner Innenstadt. Das Wohnhaus befindet sich am Puls der Zeit direkt am Rathausmarkt. Öffentliche Verkehrsmittel: Direkt ums Eck befindet sich eine Bushaltestelle. Auch der Bahnhof ist innerhalb weniger Minuten bequem zu Fuß erreichbar. Berufspendlern, welche sich dem reichhaltigen Angebot an öffentlichen Verkehrsmitteln bedienen möchten, steht also nichts im Wege. Raumprogramm/Beschreibung: Die Wohnung Top 1 im Ausmaß von ca. 42,03 m² befindet sich im ersten Stock (ohne Lift). Vorzimmer, ca. 2,16 m² Wohnküche, ca. 21,96 m² Schlafzimmer, ca. 10,00 m² Badezimmer, ca. 4,58 m² WC, ca. 2,30 m² Abstellraum, ca. 1,03 m² Balkon, ca. 4,10 m² Die Wohnung wird über das Vorzimmer betreten. Vom Vorzimmer aus gelangt man in das WC sowie in die Wohnküche, welche den zentralen Mittelpunkt der Wohnung darstellt. Von hier aus gelangt man in das Schlafzimmer, das Badezimmer sowie auf den Balkon. Der Abstellraum befindet sich in direkter Nähe außerhalb der Wohnung. Ausstattung: Die Wohnung befindet sich nach einem Umbau und durchgreifender Modernisierung in einem neuen und exzellenten Zustand mit zeitgemäßer Ausstattung: - Neu saniertes Badezimmer und WC - Neue Elektro-, Sanitär- und Heizungsinstallationen - Parkettböden in allen Räumen bis auf Badezimmer und WC - Südseitig ausgerichteter Balkon - Klimaanlage Parkmöglichkeiten: Parkmöglichkeiten sind in direkter Umgebung zur Liegenschaft in der gebührenpflichtigen Kurzparkzone der Stadt St. Pölten ausreichend vorhanden. Für Mieter mit Hauptwohnsitz besteht die Möglichkeit das beim Magistrat der Stadt St. Pölten eine Bewohnerparkkarte beantragt werden kann. Näheres hierzu finden Sie unter: www.st-poelten.at Beheizung / Warmwasseraufbereitung: Die Beheizung sowie die Warmwasseraufbereitung der Wohnung erfolgt mittels Gas-Zentralheizung. Vertragskonditionen: Der Mietvertrag wird auf einen unbestimmten Zeitraum (unbefristet) ausgestellt. Kosten: Die angegebene monatliche Miete beinhaltet neben dem Hauptmietzins auch die Betriebskosten sowie die gesetzliche Umsatzsteuer. Zudem wird ein Warmwasser- bzw. Heizkostenakonto von monatlich EUR 23,00 + 20 % Ust. vorgeschrieben. Die monatliche Miete beträgt daher inklusive dem Warmwasser- bzw. Heizkostenakonto und Umsatzsteuer EUR 672,93. Die verbrauchsabhängigen Kosten für Strom werden direkt mit dem Energieversorgungsunternehmen verrechnet. Hinweis auf Naheverhältnis: Wir weisen darauf hin, dass zum Vermieter ein wirtschaftliches Naheverhältnis besteht (wiederholte Beauftragungen). Nebenkosten: Kaution: EUR 2.700,00 Verfügbarkeit: Das Objekt steht ab sofort zur Verfügung. Besichtigung: Eine Besichtigung ist nach vorheriger Terminvereinbarung jederzeit möglich. Energieausweis: Ausstellungsdatum: 19.08.2020 Heizwärmebedarf (HWB): 55,1 kWh/m²/a (Einstufung Klasse C) Gesamtenergieeffiziensfaktor (fGEE): 1,16 (Einstufung Klasse C) Objektnummer: 7118 Halten Sie bitte bei telefonischen Auskünften diese Objektnummer bereit. Gerne stehen wir Ihnen für etwaige Auskünfte oder zur Vereinbarung eines Besichtigungstermins zu Verfügung. Um unsere Angebote noch besser Ihren Vorstellungen anpassen zu können bitten wir Sie im Zuge Ihrer Anfrage auch um die Bekanntgabe Ihrer Suchkriterien. Dies ermöglicht es uns schnell das für Sie passende Objekt zu finden. Wir ersuchen aus organisatorischen Gründen (Datenbankpflege) und aufgrund unserer Nachweispflicht gegenüber dem Abgeber um vollständige Angabe Ihrer Kontaktdaten einschließlich Vor- und Zuname, Adresse und Telefonnummer. Wir ersuchen um Verständnis, dass wir Anfragen mit unvollständigen Kontaktdaten nicht bearbeiten können. Der Schutz Ihrer personenbezogenen Daten ist uns ein großes Anliegen. Wir verwenden Ihre Daten für die Interessenten- und Kundenverwaltung im Rahmen der Immobilienvermittlung (z.B. für die Zusendung von Immobilienangeboten). Die Rechtsgrundlage dafür bildet – sofern nicht eine gesetzliche Grundlage vorliegt – ein abgeschlossener Vertrag bzw. eine Vertragsanbahnung (Vermittlungsvertrag). Die Weitergabe personenbezogener Daten erfolgt ohne ausdrückliche separate Einwilligung nur insoweit, wie es für Vertragsabwicklungen erforderlich ist. Keinesfalls werden Ihre Daten zu Werbezwecken o.ä. weitergegeben. Unsere Mitarbeiter und unsere Dienstleistungsunternehmen sind zur Verschwiegenheit und zur Einhaltung der Datenschutzbestimmungen verpflichtet. Lesen Sie mehr in unserer Datenschutzerklärung auf unserer Homepage.

Eckdaten

Objektnr: 202/07118
Art: Wohnung
Land: Österreich
Alter: Altbau
Gesamtmiete: 645,33
Kaltmiete (netto): 433,46 €
Kaltmiete: 645,33 €
Wohnfläche: 42,03 m²
Zimmer: 2
Bäder: 1
WC: 1
Balkone: 1
Heizwärmebedarf:  C  55,10 kWh/m²a
fGEE:  C  1,16

Ausstattung

Gas, Zentralheizung



Internet und TV

Information zur Internet und TV Versorgung hier




Immobilie anfragen




Ihre persönliche Beratung

Realkanzlei Edlauer Immobilientreuhänder

René HOMMEN

Realkanzlei Edlauer Immobilientreuhänder

r.hommen@edlauer.com

+43 (0) 2742 35243889

+43 (0) 660 245 22 18

F +43 (0) 2742 352438 - 3


Realkanzlei Edlauer Immobilientreuhänder - Immobilen Makler

Josefstraße 19, 3100 St. Pölten

+43/2742/352438-0

https://www.edlauer.com