Beschreibung der Immobilie
Um diese Aussicht werden Sie beneidet.
Zum Verkauf steht eine außergewöhnliche Wohnung mit fantastischem Ausblick.
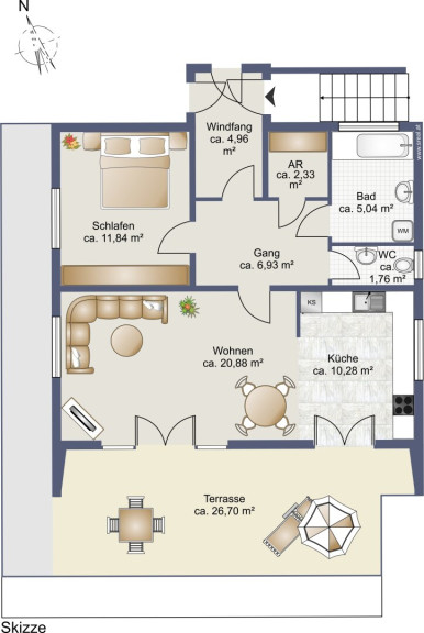
Die 2-Zimmer-Wohnung befindet sich an der Hangseite der Stadt Zell am See. Durch die optimale Ausnutzung des Grundstückes blickt man von dieser Wohnung weit über den See bis hin zur Glocknergruppe.
Die Eigentumswohnung wird über einen eigenen, überdachten Außenzugang betreten. Die sehr gepflegte Wohnung besteht aus einem Wohnzimmer, einem Schlafzimmer, einem Tageslichtbad mit Wanne, einem Gäste-WC und einem Abstellraum. Der Wohnraum mit Küche und Essplatz öffnet sich hin zur Süd-Ost-Terrasse. Diese hat in den warmen Monaten ein enormes Potenzial als Lieblingsplatz.
Hier wird wirklich ein Wohntraum wahr. Fragen Sie gleich an!
Infrastruktur / Entfernungen
Gesundheit
Arzt <500m
Apotheke <1.000m
Krankenhaus <2.500m
Kinder & Schulen
Schule <500m
Kindergarten <6.000m
Nahversorgung
Supermarkt <1.000m
Bäckerei <500m
Einkaufszentrum <3.500m
Sonstige
Bank <500m
Geldautomat <500m
Polizei <500m
Post <500m
Verkehr
Bus <500m
Bahnhof <1.000m
Flughafen <4.000m
Angaben Entfernung Luftlinie / Quelle: OpenStreetMap
Eckdaten
| Objektnr: | 960/73420 |
| Art: | Wohnung |
| Land: | Österreich |
| Baujahr: | 2003 |
| Kaufpreis: | 450.000,00 € |
| Provision: | 3% des Kaufpreises zzgl. 20% USt. |
| Wohnfläche: | 64,01 m² |
| Zimmer: | 2 |
| Bäder: | 1 |
| WC: | 1 |
| Terrassen: | 1 |
| Stellplätze: | 1 |
| Garten: | 68,97 m² |
| Keller: | 8,93 m² |
| Heizwärmebedarf: | 68,00 kWh/m²a |
| fGEE: | 0,85 |
Ausstattung
Wohnküche / offene Küche, Bad mit Fenster, Badewanne, Parkplatz
Internet und TV
Information zur Internet und TV Versorgung hier
Ihre persönliche Beratung
Mag. Dr. Alois Nußbaumer
s REAL Immobilienvermittlung GmbH
alois.nussbaumer@sreal.at
+43 (0)5 0100 - 26334
+43 664 6204191
