Provisionsfrei: Neues Zuhause in Oberndorf: Erstbezug in Salzburgs begehrter Lage
Wohnung
,
5110
Oberndorf bei Salzburg
Beschreibung der Immobilie
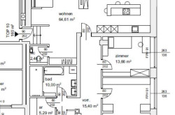
Diese großzügige 4-Zimmer-Wohnung im 2. Obergeschoss mit 160 m² bietet viel Raum und eignet sich perfekt für eine große Familie oder Käufer, die ein großzügiges Zuhause suchen. Der einladende Eingangsbereich bietet genügend Platz für eine Garderobe und führt in den offenen, lichtdurchfluteten Wohnbereich, der eine angenehme Atmosphäre schafft.
Das Badezimmer ist sowohl mit einer Dusche als auch einer Badewanne ausgestattet. Zusätzlich gibt es ein separates Gäste-WC. Der Zugang zum Gebäude ist barrierefrei, jedoch gibt es drei Stufen vor der Wohnungseingangstür. Käufer haben die Möglichkeit, die Wohnung nach ihren Wünschen zu gestalten, wobei die Grundausstattung bereits vorhanden ist. Weitere Anpassungen sind gegen Aufpreis möglich.
Ein besonderes Highlight der Wohnung ist das großzügige Schlafzimmer, das Platz für einen begehbaren Kleiderschrank bietet und somit den Wohnkomfort weiter erhöht. Zudem genießen die Bewohner eine ruhige Lage und eine schöne Aussicht, die zusätzlich zur Attraktivität der Wohnung beiträgt.
Infrastruktur / Entfernungen
Gesundheit
Arzt <500m
Apotheke <500m
Klinik <1.000m
Krankenhaus <500m
Kinder & Schulen
Kindergarten <500m
Schule <500m
Höhere Schule <2.000m
Nahversorgung
Supermarkt <500m
Bäckerei <500m
Sonstige
Geldautomat <500m
Bank <500m
Post <500m
Polizei <500m
Verkehr
Bus <500m
Bahnhof <500m
Angaben Entfernung Luftlinie / Quelle: OpenStreetMap
Eckdaten
| Kaufpreis: | 744.000,00 € |
| Fläche: | 160,00 m² |
| Zimmer: | 4,50 |
Basisdaten zur Immobilie
| Objektnr: | 960/73434 |
| Art: | Wohnung |
| Land: | Österreich |
| Baujahr: | 1975 |
| Zustand: | Erstbezug |
| Kaufpreis: | 744.000,00 € |
| Provision: | Provision bezahlt der Abgeber. |
| Betriebskosten: | 212,56 € |
| Heizkosten: | 240,02 € |
| MwSt Gesamt: | 69,26 € |
| Wohnfläche: | 160,00 m² |
| Zimmer: | 4,50 |
| Bäder: | 1 |
| WC: | 2 |
| Heizwärmebedarf: | B 45,00 kWh/m²a |
| fGEE: | C 1,01 |
Ausstattung
Parkettboden, Gas, Fußbodenheizung, Zentralheizung, Wohnküche / offene Küche, Personenaufzug, Badewanne, Dusche
Internet und TV
Information zur Internet und TV Versorgung hier
Ihre persönliche Beratung
Raveena Janagal
s REAL Immobilienvermittlung GmbH
raveena.janagal@sreal.at
+43 (0)5 0100 - 26223
+43 664 8579198
