Provisionsfrei: Neues Zuhause in Oberndorf: Erstbezug in Salzburgs begehrter Lage
Wohnung
,
5110
Oberndorf bei Salzburg
Beschreibung der Immobilie
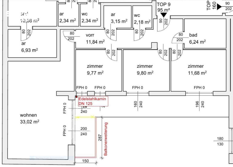
Diese großzügige 4-Zimmer-Wohnung im 2. Obergeschoss bietet auf 95 m² ausreichend Platz und ist ideal für Familien oder Paare, die viel Raum und Komfort suchen. Die Wohnung besticht durch ihre barrierefreie Bauweise. Besonders hervorzuheben ist die gelungene Raumaufteilung, die den Wohnbereich offen und einladend gestaltet.
Der großzügige Wohn- und Essbereich bildet das Herzstück der Wohnung. Große Fenster sorgen für viel Tageslicht und bieten direkten Zugang zum Balkon, der zu entspannten Momenten im Freien einlädt. Die Wohnung verfügt über drei gut geschnittene Schlafzimmer, die ebenfalls über den Balkon zugänglich sind und dadurch von zusätzlichem Licht profitieren.
Das Badezimmer ist modern und praktisch gestaltet. Es ist mit einer Dusche sowie einem WC ausgestattet. Zusätzlich gibt es im Flur ein separates Gäste-WC, das den Komfort der Wohnung weiter erhöht. Ein praktischer Abstellraum sorgt für zusätzlichen Stauraum und hilft, Ordnung in der Wohnung zu halten.
Die Wohnung ist mit Laminatböden ausgestattet, die nicht nur pflegeleicht sind, sondern auch eine warme, gemütliche Atmosphäre schaffen. Durch die Lage und Ausrichtung der Wohnung genießen die Räume eine angenehme Belichtung und sorgen das ganze Jahr über für eine helle, freundliche Stimmung.
Diese Wohnung bietet alles, was modernes Wohnen ausmacht: viel Platz, eine durchdachte Raumaufteilung und eine hervorragende Lage – ideal für Familien oder Paare, die Wert auf Qualität und Komfort legen.
Infrastruktur / Entfernungen
Gesundheit
Arzt <500m
Apotheke <500m
Klinik <1.000m
Krankenhaus <500m
Kinder & Schulen
Kindergarten <500m
Schule <500m
Höhere Schule <2.000m
Nahversorgung
Supermarkt <500m
Bäckerei <500m
Sonstige
Geldautomat <500m
Bank <500m
Post <500m
Polizei <500m
Verkehr
Bus <500m
Bahnhof <500m
Angaben Entfernung Luftlinie / Quelle: OpenStreetMap
Eckdaten
| Objektnr: | 960/73433 |
| Art: | Wohnung |
| Land: | Österreich |
| Baujahr: | 1975 |
| Zustand: | Erstbezug |
| Kaufpreis: | 399.000,00 € |
| Provision: | Provision bezahlt der Abgeber. |
| Betriebskosten: | 138,09 € |
| Heizkosten: | 141,92 € |
| MwSt Gesamt: | 42,19 € |
| Wohnfläche: | 95,00 m² |
| Zimmer: | 4 |
| Bäder: | 1 |
| WC: | 1 |
| Balkone: | 1 |
| Heizwärmebedarf: | B 45,00 kWh/m²a |
| fGEE: | C 1,01 |
Ausstattung
Laminatboden, Gas, Fußbodenheizung, Zentralheizung, Wohnküche / offene Küche, Personenaufzug, Dusche
Internet und TV
Information zur Internet und TV Versorgung hier
Ihre persönliche Beratung
Raveena Janagal
s REAL Immobilienvermittlung GmbH
E raveena.janagal@sreal.at
T +43 (0)5 0100 - 26223
H +43 664 8579198