Provisionsfrei: Neues Zuhause in Oberndorf: Erstbezug in Salzburgs begehrter Lage
Wohnung
,
5110
Oberndorf bei Salzburg
Beschreibung der Immobilie
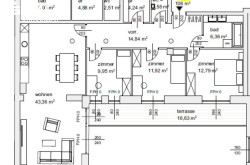
Diese 4-Zimmer-Wohnung im 1. Obergeschoss mit 106 m² bietet großzügigen Platz und eignet sich hervorragend für Familien oder Paare, die viel Raum zum Leben suchen. Die durchdachte Raumaufteilung ermöglicht eine flexible Nutzung und schafft eine angenehme Atmosphäre. Der Mittelpunkt der Wohnung ist die großzügige Wohnküche, die durch ihre Helligkeit und Weitläufigkeit besticht. Große Fensterflächen sorgen für eine lichtdurchflutete Umgebung und tragen zu einer freundlichen Wohnatmosphäre bei.
Von allen drei Schlafzimmern aus haben Sie Zugang zum Balkon, was den Wohnkomfort zusätzlich steigert. Das Badezimmer ist gut dimensioniert und bietet sowohl eine Dusche als auch eine Badewanne, sodass für jeden Bedarf gesorgt ist. Ein zusätzliches Gäste-WC sorgt für praktischen Komfort.
Besonders hervorzuheben sind die zwei eleganten Säulen im Flur, die der Wohnung einen besonderen Charme verleihen. Ein praktischer Abstellraum bietet ausreichend Platz für zusätzlichen Stauraum, und der Anschluss für eine Waschmaschine ist ebenfalls vorhanden. Diese Wohnung ist ideal für alle, die viel Wert auf eine harmonische Raumaufteilung und großzügige Wohnverhältnisse legen.
Infrastruktur / Entfernungen
Gesundheit
Arzt <500m
Apotheke <500m
Klinik <1.000m
Krankenhaus <500m
Kinder & Schulen
Kindergarten <500m
Schule <500m
Höhere Schule <2.000m
Nahversorgung
Supermarkt <500m
Bäckerei <500m
Sonstige
Geldautomat <500m
Bank <500m
Post <500m
Polizei <500m
Verkehr
Bus <500m
Bahnhof <500m
Angaben Entfernung Luftlinie / Quelle: OpenStreetMap
Eckdaten
| Kaufpreis: | 477.000,00 € |
| Fläche: | 106,00 m² |
| Zimmer: | 4 |
Basisdaten zur Immobilie
| Objektnr: | 960/73432 |
| Art: | Wohnung |
| Land: | Österreich |
| Baujahr: | 1975 |
| Zustand: | Erstbezug |
| Kaufpreis: | 477.000,00 € |
| Provision: | Provision bezahlt der Abgeber. |
| Betriebskosten: | 153,60 € |
| Heizkosten: | 159,06 € |
| MwSt Gesamt: | 47,17 € |
| Wohnfläche: | 106,00 m² |
| Zimmer: | 4 |
| Balkone: | 1 |
| Heizwärmebedarf: | B 45,00 kWh/m²a |
| fGEE: | C 1,01 |
Ausstattung
Fliesen, Parkettboden, Gas, Fußbodenheizung, Zentralheizung, Wohnküche / offene Küche, Personenaufzug, Westbalkon, Dusche
Internet und TV
Information zur Internet und TV Versorgung hier
Ihre persönliche Beratung
Raveena Janagal
s REAL Immobilienvermittlung GmbH
raveena.janagal@sreal.at
+43 (0)5 0100 - 26223
+43 664 8579198
