Provisionsfrei: Neues Zuhause in Oberndorf: Erstbezug in Salzburgs begehrter Lage
Wohnung
,
5110
Oberndorf bei Salzburg
Beschreibung der Immobilie
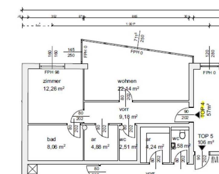
Diese gut geschnittene 2-Zimmer-Wohnung im 1. Obergeschoss bietet 59,71 m² und eignet sich perfekt für junge Familien oder als attraktive Kapitalanlage. Die Wohnung ist barrierefrei und bietet eine Wohnküche, die sich durch eine praktische Raumaufteilung und genügend Platz für eine Ess- und Kochbereich auszeichnet. Die Wohnung verfügt über ein Badezimmer mit Dusche sowie ein separates WC im Flur, was den Komfort erhöht.
Ein besonderes Plus ist der großzügige Abstellraum, der ausreichend Stauraum bietet. Die Wohnung ist nach Osten ausgerichtet, was bedeutet, dass Sie morgens die Sonne genießen können. Alle Räume sind vom Flur aus begehbar, was die Wohnung besonders praktisch und übersichtlich macht.
Dank der barrierefreien Bauweise ist die Wohnung nicht nur für junge Familien, sondern auch für ältere Menschen oder Menschen mit eingeschränkter Mobilität ideal. Sie ist sowohl als langfristiges Zuhause als auch als rentable Investition geeignet.
Infrastruktur / Entfernungen
Gesundheit
Arzt <500m
Apotheke <500m
Klinik <1.000m
Krankenhaus <500m
Kinder & Schulen
Kindergarten <500m
Schule <500m
Höhere Schule <2.000m
Nahversorgung
Supermarkt <500m
Bäckerei <500m
Sonstige
Geldautomat <500m
Bank <500m
Post <500m
Polizei <500m
Verkehr
Bus <500m
Bahnhof <500m
Angaben Entfernung Luftlinie / Quelle: OpenStreetMap
Eckdaten
| Objektnr: | 960/73431 |
| Art: | Wohnung |
| Land: | Österreich |
| Baujahr: | 1975 |
| Zustand: | Erstbezug |
| Kaufpreis: | 249.000,00 € |
| Provision: | Provision bezahlt der Abgeber. |
| Betriebskosten: | 88,44 € |
| Heizkosten: | 88,55 € |
| MwSt Gesamt: | 26,55 € |
| Wohnfläche: | 59,71 m² |
| Zimmer: | 2 |
| Heizwärmebedarf: | B 45,00 kWh/m²a |
| fGEE: | C 1,01 |
Ausstattung
Laminatboden, Gas, Zentralheizung, Personenaufzug, Dusche, Kabel/Satelliten-TV
Internet und TV
Information zur Internet und TV Versorgung hier
Ihre persönliche Beratung
Raveena Janagal
s REAL Immobilienvermittlung GmbH
E raveena.janagal@sreal.at
T +43 (0)5 0100 - 26223
H +43 664 8579198