• NEU! • NAHE U6 • 5 ZIMMER • GARTEN • 2 TERRASSEN • KÜCHE INKL. • PKW-STELLPLATZ INKL. • 1230 WIEN • EIGENTUM •

Haus - Reihenendhaus, 1230 Wien

Lage der Immobilie

U6 - Perfekterstraße

Beschreibung der Immobilie

  • PROJEKT:

In der Nähe der U6-Station Perfektastraße im 23. Bezirk stehen ab sofort drei hochwertige Reihenhäuser zum Verkauf.

Die Häuser bieten 5-6 Zimmer, zwei Terrassen, eigene PKW-Stellplätze sowie private Gärten.

Es handelt sich um Eigentum – kein Pacht- oder Baurecht.

Die Wohnflächen liegen zwischen 122 m² und 133 m² und bieten reichlich Platz für die ganze Familie sowie Homeoffice.

Modernste Ausstattung und zukunftsorientiertes Design machen diese Häuser zur perfekten Wahl.

Die Heizung im Winter sowie die Kühlung im Sommer erfolgen über den Fußboden mittels einer eigenen Luftwärmepumpe.

  • KÜCHE: 

Eine neue, vollständig ausgestattete Küche mit Geräten ist ebenfalls im Kaufpreis enthalten.

----------------------------------------------------------------------------------------

  • ÜBERBLICK:

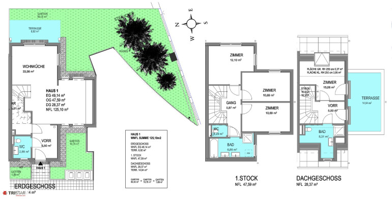
HAUS 1: Gesamtfläche ca. 234 m²

WNFL ca. 125,10 m² (5 Zimmer) + Garten ca. 73 m² + Terrasse (EG) ca. 9 m² + Terrasse (DG) ca. 15 m² + PKW Stellplatz 

Kaufpreis für EIGENNUTZER: EUR 699.000,- Schlüsselfertig,  inkl. KÜCHE und PKW Stellplatz

HAUS 2: VERKAUFT!

HAUS 3: Gesamtfläche ca. 270 m² 

WNFL ca. 122,69 m² (5 Zimmer) + Garten ca. 116,85 m² + Terrasse (EG) ca. 9,60 m² + Terrasse (DG) ca. 10,81 m² + PKW Stellplatz 

Kaufpreis für EIGENNUTZER: EUR 749.000,- Schlüsselfertig,  inkl. KÜCHE und PKW Stellplatz

----------------------------------------------------------------------------------------

  • TOP LAGE:

DETAILLIERTES LAGEEXPOSÉ (68 Seiten!) vorhanden und erfolgt umgehend nach Anfrage.

• NEU! • NAHE U6 • 5 ZIMMER • GARTEN • 2 TERRASSEN • KÜCHE INKL. • PKW-STELLPLATZ INKL. • 1230 WIEN • EIGENTUM •

NEU! ++ Nähe U6 Perfektastraße ++ 3 Häuser mit Garten und PKW-Stellplatz ++ 1230 Wien ++ Eigentum

  • Projekt: 

In der Nähe der U6-Station Perfektastraße im 23. Bezirk stehen ab sofort drei hochwertige Reihenhäuser zum Verkauf.

Die Häuser bieten 5-6 Zimmer, zwei Terrassen, eigene PKW-Stellplätze sowie private Gärten.

Es handelt sich um Eigentum – kein Pacht- oder Baurecht.

Die Wohnflächen liegen zwischen 122 m² und 133 m² und bieten reichlich Platz für die ganze Familie sowie Homeoffice.

Modernste Ausstattung und zukunftsorientiertes Design machen diese Häuser zur perfekten Wahl.

----------------------------------------------------------------------------------------

  • Überblick der derzeit verfügbaren Häuser:

HAUS 1: Gesamtfläche ca. 234 m²

WNFL ca. 125,10 m² (5 Zimmer) + Garten ca. 73 m² + Terrasse (EG) ca. 9 m² + Terrasse (DG) ca. 15 m² + PKW Stellplatz = EUR 799.000,- Schlüsselfertig und inkl. PKW Stellplatz

HAUS 2: Gesamtfläche ca. 171 m²

WNFL ca. 133,36 m² (6 Zimmer) + Garten ca. 23 m² + Terrasse (EG) ca. 7,63 m² + Terrasse (DG) ca. 6,55 m² + PKW Stellplatz = EUR 799.000,- Schlüsselfertig und inkl. PKW Stellplatz

HAUS 3: Gesamtfläche ca. 260 m²

WNFL ca. 122,69 m² (5 Zimmer) + Garten ca. 117 m² + Terrasse (EG) ca. 9,60 m² + Terrasse (DG) ca. 11 m² + PKW Stellplatz = EUR 799.000,- Schlüsselfertig und inkl. PKW Stellplatz

----------------------------------------------------------------------------------------

  • Top Lage:

DETAILLIERTES LAGEEXPOSÉ (68 Seiten!) vorhanden und erfolgt umgehend nach Anfrage.

  • Moderne und maßgeschneiderte Finanzierung:

„Hausbank war gestern“!

Heutzutage haben wir für Sie online und sofortigen Zugang zu den besten und neuesten Finanzprodukten von über 120 Kreditinstituten in Österreich und Deutschland.

Genau wie beim Immobilienvergleich, ermöglichen wir Ihnen, alle relevante Bankangebote zu vergleichen, um das beste für Sie zu finden!

Auch Angebote ohne Eigenmittel, mit festen Zinssätzen und einer beeindruckenden Laufzeit von bis zu 45 Jahren sind verfügbar!

So sparen Sie Zeit, Geld und Nerven!

Wir weisen darauf hin, dass zwischen dem Vermittler und dem zu vermittelnden Dritten ein familiäres oder wirtschaftliches Naheverhältnis besteht.

Der Vermittler ist als Doppelmakler tätig.

Eckdaten

Objektnr: 27095
Art: Haus - Reihenendhaus
Land: Österreich
Baujahr: 2024
Zustand: Erstbezug
Alter: Neubau
Kaufpreis: 699.000,00
Kaufpreis / m²: auf Anfrage
Provision: 3% des Kaufpreises zzgl. 20% USt.
Wohnfläche: 125,10 m²
Gesamtfläche: 234,00 m²
Zimmer: 5
Bäder: 2
WC: 3
Terrassen: 2
Stellplätze: 1
Garten: 73,00 m²
Heizwärmebedarf:  B  43,10 kWh/m²a
fGEE:  A+  0,65
Immobilie merken Exposé

Ausstattung

Parkett, Fliesen, Fußbodenheizung, Einbauküche, Wohnküche / offene Küche, Südbalkon, Bad mit Fenster, Badewanne, Dusche, Parkplatz


Internet und TV

Information zur Internet und TV Versorgung hier


Immobilie anfragen


Ihre persönliche Beratung

TRISTAR Immobilien

TRISTAR Immobilien

TRISTAR Immobilien

E tristar@tristar.at

H +43 676 901 73 74