• NEU! • 6 EXKLUSIVE DG-WOHNUNGEN MIT WIENBLICK • SOFORT BEZIEHBAR • EIGENTUM • SIEBENBRUNNENPLATZ • 1050 WIEN •

Wohnung - Dachgeschoß, 1050 Wien

Lage der Immobilie

SIEBENBRUNNENPLATZ

Beschreibung der Immobilie

  • 6 EXKLUSIVE DACHGESCHOSSWOHNUNGEN MIT WIENBLICK:

Zum Verkauf gelangen 6 neu ausgebaute, topmoderne Dachgeschosswohnungen, die ab sofort bezugsfertig sind.

Die Wohnungen befinden sich in der Nähe des legendären Siebenbrunnenplatzes im 5. Wiener Gemeindebezirk und überzeugen durch eine ausgezeichnete Infrastruktur sowie ideale Verkehrsanbindung.

Der Dachgeschossausbau wurde in einem wunderschönen Wiener Eckaltbau realisiert. Im Zuge dessen wurden die allgemeinen Teile des Hauses (Fassade, Stiegenhaus, Hofseite, Keller und Aufzug) umfassend modernisiert bzw. saniert. Die Wohnungen bieten großzügige Terrassen, lichtdurchflutete Räume und einen fantastischen Ausblick über Wien.

----------------------------------------------------

  • ÜBERBLICK

----------------------------------------------------

  • Top 28:   VERKAUFT!
  • Top 29:  VERKAUFT!
  • Top 30:  VERKAUFT!
  • Top 31: Wohnfläche ca. 115,21 m² + Terrasse ca. 3,52 m² + Loggia ca. 5,97 m²,  EUR 879.000
  • Top 32: Wohnfläche ca. 123,19 m² + Loggia/Terrasse ca. 5,50 m²,  EUR 969.000  
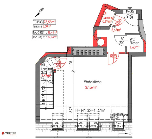
  • Top 33: Wohnfläche ca. 75,58 m² + Terrasse ca. 8,50 m²,  EUR 599.000

----------------------------------------------------

  • AUSSTATTUNG

Diese fünf topmodernen Dachgeschosswohnungen überzeugen durch eine hochwertige Ausstattung mit Fokus auf Qualität, Design und Funktionalität.

  • Böden/Wände:   Eichen-Landhausdiele in Wohnräumen, Keramikfliesen (120x120 cm, grau) in Sanitär, wasserbeständige Latexfarbe.
  • Türen/Fenster:   WK-3-Sicherheitstüren mit 4-fach-Verriegelung, weiße Innentüren, Alu-Fenster/Terrassentüren mit 3-fach-Verglasung, Schallschutz, elektrische Rolläden. VELUX-Dachfenster mit Klappfunktion, Außenrollos. mit Solar-Antrieb!
  • Sanitär:    Fußbodenheizung in Bädern, Wand-WC (Tiefspüler), Handwaschbecken (43x34 cm), Waschtisch (120x46 cm), Chrom-Armaturen, Duschkopf, Mischer, Handbrause.
  • Heizung/Warmwasser:    Luft-Wärmepumpe mit Fußbodenheizung, Bad-Heizkörper, öffentliche Versorgung.
  • Elektro/Multimedia:    Schalter (weiß matt) mit Steckdosen, Netzwerk/Koax/Jalousie, Video-Sprechanlage, Internet-Vorbereitung.
  • Klima:    Mono-Split-Klimaanlage für Luftkühlung.
  • Sonstiges:    Lüftung mit Filtern, Sonnenschutz, WPC-Terrassendielen (dunkelgrau), pulverbeschichtete Geländer, WLAN-Thermostate, Unterputz-Touch-Radio.

----------------------------------------------------

  • HINWEIS:

Die Möblierung auf einzelnen Bildern wurde mittels KI (künstlicher Intelligenz) generiert und dient ausschließlich der Veranschaulichung.

----------------------------------------------------

• NEU! • 6 EXKLUSIVE DG-WOHNUNGEN MIT WIENBLICK • SOFORT BEZIEHBAR • EIGENTUM • SIEBENBRUNNENPLATZ • 1050 WIEN •

Wir weisen darauf hin, dass zwischen dem Vermittler und dem zu vermittelnden Dritten ein familiäres oder wirtschaftliches Naheverhältnis besteht.

Der Vermittler ist als Doppelmakler tätig.

Eckdaten

Objektnr: 27375
Art: Wohnung - Dachgeschoß
Land: Österreich
Baujahr: 2024
Zustand: Erstbezug
Alter: Altbau
Kaufpreis: 599.000,00
Kaufpreis / m²: auf Anfrage
Provision: 3% des Kaufpreises zzgl. 20% USt.
Wohnfläche: 75,58 m²
Gesamtfläche: 84,08 m²
Zimmer: 3
Bäder: 1
WC: 2
Terrassen: 1
Heizwärmebedarf:  B  47,00 kWh/m²a
fGEE:  A+  0,65
Immobilie merken Exposé

Ausstattung

Fliesen, Parkett, Fußbodenheizung, Personenaufzug, Ostbalkon, Bad mit Fenster, Dusche


Internet und TV

Information zur Internet und TV Versorgung hier


Immobilie anfragen


Ihre persönliche Beratung

TRISTAR Immobilien

TRISTAR Immobilien

TRISTAR Immobilien

E tristar@tristar.at

H +43 676 901 73 74