2-Zimmer-Wohnung mit guter Infrastruktur und 2 Parkplätzen in Bärnbach
Wohnung
- Etage,
8572
Bärnbach
,
Peter Leitner-Siedlung 20
Beschreibung der Immobilie
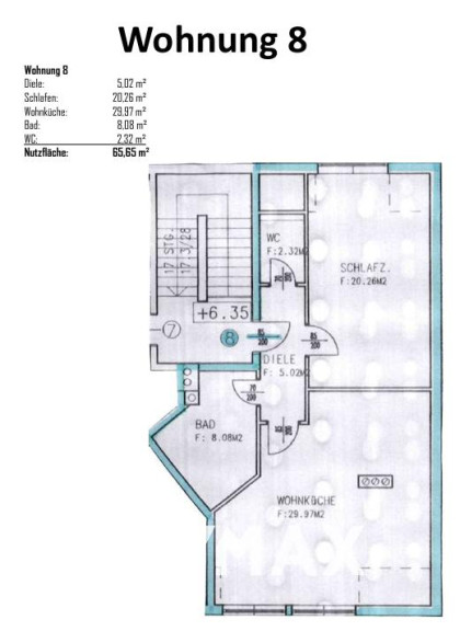
Diese 2-Zimmer-Mietwohnung im Dachgeschoss bietet ca. 65,65 m² Wohnfläche und eine praktische Aufteilung für Singles oder Paare. Die Lage überzeugt durch kurze Wege zu Einkaufsmöglichkeiten, Kindergarten, Gastronomie und weiteren Einrichtungen des täglichen Bedarfs.
Raumaufteilung
• Wohn- und Essbereich mit integriertem Küchenbereich
• Schlafzimmer
• Großzügiges Badezimmer mit Badewanne
• Separates WC
• Kellerabteil und gemeinschaftlicher Trockenraum
Besonderheiten
• 2 Parkplätze direkt gegenüber dem Haus
• Gute Infrastruktur in fußläufiger Entfernung
• Gepflegtes Wohnhaus mit nur 9 Wohneinheiten
Lage
Die Wohnung liegt in einem ruhigen Wohnumfeld nahe dem Zentrum von Bärnbach. Kinderbetreuung, Einkauf, Gastronomie, Freizeitangebote sowie öffentliche Verkehrsmittel sind in rund 10 Gehminuten erreichbar. Eine ideale Kombination aus ruhigem Wohnen und guter Erreichbarkeit.
| Angaben gemäß gesetzlichem Erfordernis: | |||
| Miete | € | 366,87 | zzgl 10% USt. |
| Betriebskosten | € | 119 | zzgl 10% USt. |
| Heizkosten | € | 70 | zzgl 20% USt. |
| Kanal | € | 40 | zzgl 10% USt. |
| Autoabstellplatz | € | 11 | zzgl 20% USt. |
| Umsatzsteuer | € | 68,79 | |
| ------------------------------------------------------------------ | |||
| Gesamtbetrag | € | 675,66 | |
| ------------------------------------------------------------------ | |||
| Heizwärmebedarf: | 79.9 kWh/(m²a) | ||
| Klasse Heizwärmebedarf: | C | ||
| Faktor Gesamtenergieeffizienz: | 1.19 | ||
| Klasse Faktor Gesamtenergieeffizienz: | C | ||
RE/MAX More – Ihr Immobilienbüro in der Weststeiermark
Wir begleiten Sie beim Kauf, Verkauf und der Vermietung von Immobilien.
Als Teil des größten Immobiliennetzwerks RE/MAX verbinden wir internationale Reichweite mit regionaler Marktkenntnis in Voitsberg und Umgebung.
Kontakt:
RE/MAX More | Conrad-von-Hötzendorf-Straße 16, 8570 Voitsberg
Tel.: +43 3142 28 0 20 | office@remax-more.at
Impressum:
Mollismerx GmbH, Tobisegg 42, 8503 St. Josef
FN 655412 t | LG ZRS Graz | UID: ATU82208308 | GF: Roberto Deutschmann
Hinweis: Jedes RE/MAX-Büro ist rechtlich und wirtschaftlich eigenständig.
Alle Angaben ohne Gewähr. Irrtümer vorbehalten.
Datenschutz: https://www.remax.at/datenschutz
Eckdaten
| Objektnr: | 1663_1793 |
| Art: | Wohnung - Etage |
| Land: | Österreich |
| Baujahr: | 1969 |
| Zustand: | Gepflegt |
| Gesamtmiete: | 675,66 € |
| Kaltmiete (netto): | 366,87 € |
| Kaltmiete: | 591,66 € |
| Wohnfläche: | 65,65 m² |
| Zimmer: | 2 |
| Bäder: | 1 |
| WC: | 1 |
| Stellplätze: | 2 |
| Keller: | 1,00 m² |
| Heizwärmebedarf: | C 79,90 kWh/m²a |
| fGEE: | C 1,19 |
Ausstattung
Kamin, Zentralheizung, Kabel/Satelliten-TV, Parkplatz, Wasch/Trockenraum
Internet und TV
Information zur Internet und TV Versorgung hier
Ihre persönliche Beratung
Tamara Terschan-Ganotz
RE/MAX More
E tamara.terschan-ganotz@remax-more.at