1180 Wien: 2,5 Zimmer-Altbauwohnung in Ruhelage
Wohnung
,
1180
Wien
Beschreibung der Immobilie
Stilvolle Eigentumswohnungen in Wiener Gründerzeithaus
Ihre neue Eigentumswohnung in einem äußerst gepflegten Wiener Altbau mitten in Währing wartet auf Sie!
Das repräsentative Altbauhaus zeigt sich in einem sehr guten Gesamtzustand. Die Fassaden zur Straße und zum Hof erstrahlen frisch gestrichen und der einladende Eingangsbereich wurde stilvoll modernisiert. Stimmungsvolle Beleuchtungselemente und klassische Altbau-Hängeluster sowie sorgfältig restaurierte Originalgeländer und historische Mosaikfliesen bewahren den authentischen Charme des Hauses.
Zusätzlich zu dem gepflegten Innenhof und einem Kellerbateil je Wohnung wird außerdem ein Lift vertraglich zugesichert, dessen Errichtung innerhalb der kommenden drei Jahre erfolgen wird – ein wertvoller Gewinn für das gesamte Gebäude.
Die Ausstattung:
Die Wohnungen vereinen Wiener Charme mit moderner Funktionalität.
- Edler Fischgrät-Parkettboden in den Wohnräumen
- Original-Flügeltüren
- Hohe Decken, die das klassische Altbauflair vermitteln
- Moderne Badezimmer und Toiletten
- Möblierte Küchen
Verfügbar ab: sofort!
Vermittlungsprovision: 3% vom Kaufpreis zzgl. USt.
Nur noch bis 30.06.2026: Nutzen Sie jetzt noch die Möglichkeit der Befreiung von der Grundbuch- und Pfandrechtseintragungsgebühr als Eigennutzer für Ihren neuen Hauptwohnsitz!
Die Lage & Infrastruktur:
Die Lage in der Hofstattgasse zählt zu den begehrtesten Wohngegenden Währings. Sie bietet ein ruhiges Umfeld bei gleichzeitig hervorragender Infrastruktur. In unmittelbarer Nähe befinden sich der Sternwartepark, der Türkenschanzpark und der Schubertpark, die zu Spaziergängen und Erholung im Grünen einladen.
Einkaufsmöglichkeiten, Cafés, Restaurants, Apotheken und Boutiquen entlang der Währinger Straße und Gentzgasse liegen ebenfalls nur wenige Schritte entfernt und sorgen für eine perfekte Nahversorgung.
Auch die öffentliche Verkehrsanbindung ist ausgezeichnet:
- Straßenbahnlinien 40 und 41 – nur wenige Gehminuten entfernt, mit direkter Verbindung zu U6 – Volksoper.
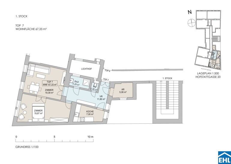
Top 7:
- Ca. 65 m² Wohnfläche
- Zwei großzügige, straßenseitige Zimmer, getrennt begehbar
- Separate, voll ausgestattete Küche
- Großzügiger Vorraum, der genügend Abstellfläche bietet
- Badezimmer mit Fenster zum Lichthof
- Separates WC
- Zusätzlicher, kleiner Raum mit etwa 5 m², der sich ideal als Arbeitszimmer, Schrankraum oder Abstellraum eignet
Wir weisen darauf hin, dass zwischen dem Vermittler und dem zu vermittelnden Dritten ein familiäres oder wirtschaftliches Naheverhältnis besteht.
Der Vermittler ist als Doppelmakler tätig.
Infrastruktur / Entfernungen
Gesundheit
Arzt <500m
Apotheke <500m
Klinik <1.000m
Krankenhaus <1.000m
Kinder & Schulen
Schule <500m
Kindergarten <500m
Universität <1.000m
Höhere Schule <500m
Nahversorgung
Supermarkt <500m
Bäckerei <500m
Einkaufszentrum <1.500m
Sonstige
Geldautomat <500m
Bank <500m
Post <500m
Polizei <500m
Verkehr
Bus <500m
U-Bahn <1.000m
Straßenbahn <500m
Bahnhof <1.000m
Autobahnanschluss <2.500m
Angaben Entfernung Luftlinie / Quelle: OpenStreetMap
Eckdaten
| Kaufpreis: | 535.000,00 € |
| Fläche: | 67,33 m² |
| Zimmer: | 2 |
Basisdaten zur Immobilie
| Objektnr: | 90924 |
| Art: | Wohnung |
| Land: | Österreich |
| Baujahr: | 1900 |
| Zustand: | Gepflegt |
| Alter: | Altbau |
| Kaufpreis: | 535.000,00 € |
| Provision: | 3% des Kaufpreises zzgl. 20% USt. |
| Betriebskosten: | 147,16 € |
| MwSt Gesamt: | 14,72 € |
| Wohnfläche: | 67,33 m² |
| Zimmer: | 2 |
| Bäder: | 1 |
| WC: | 1 |
| Heizwärmebedarf: | E 165,30 kWh/m²a |
| fGEE: | D 2,37 |
Ausstattung
Parkett, Fliesen, Gas, Etagenheizung, Einbauküche, Bad mit Fenster, Dusche, Kabel/Satelliten-TV
Internet und TV
Information zur Internet und TV Versorgung hier
Ihre persönliche Beratung
Julie Wittrich
EHL Immobilien GmbH
j.wittrich@ehl.at
+43 1 5127690405
+43 664 780 15 358
