Immobilie merken

Traumwohnungen für höchste Ansprüche!

Wohnung - Dachgeschoß, 3100 St. Pölten

Lage der Immobilie

Autobahnnähe, Bahnhofsnähe, Balkon/Terrasse hofseitig, großer Balkon/Terrasse, hofseitig, öffentl. Verkehrsmittel, repräsentativ, sonnig, TG/Garage, Zentrum-Nähe

Beschreibung der Immobilie

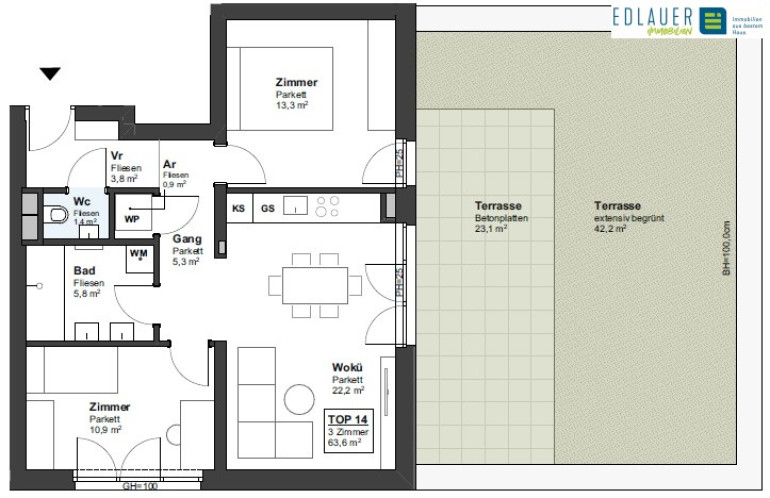
Mitten in der Landeshauptstadt St.Pölten wird Ihr Wohntraum Gestalt annehmen! In direkter Nähe der Innenstadt von St. Pölten entsteht ein Wohnprojekt, das urbanes Lebensgefühl, moderne Architektur und erstklassige Wohnqualität perfekt miteinander verbindet. Das "Haus zur Mühle" bietet nicht nur einzigartigen Wohnraum, sondern schafft dank durchdachter Planung, hochwertiger Bauweise und eines stimmigen Gesamtkonzepts einen Ort, an dem Wohnkomfort und Wohlbefinden groß geschrieben wird und daher im zentralen Mittelpunkt des Projekts stehen. Beschreibung: Die 17 Wohneinheiten bieten 1 bis 5 Zimmer mit Wohnflächen von ca. 35 bis 144 m². Die beiden größten Einheiten schließen dabei anteilig die zugehörige Kellerfläche mit ein. Jede Einheit verfügt über private Außenflächen wie Balkon, Terrasse, Loggia oder Garten. Eine PV-Anlage am Dach sorgt für nachhaltige Energieversorgung. Lage: Die Nähe zur Innenstadt eröffnet ein breites Angebot an Geschäften, Gastronomie, Bildungseinrichtungen, Kultur- und Freizeitangeboten. Die ausgezeichnete Verkehrsanbindung – sowohl öffentlich als auch im Individualverkehr – sorgt zudem für maximalen Komfort im Alltag. Hier wohnen Sie zentral und dennoch ruhig – ideal für all jene, die urbanes Leben mit hoher Wohnqualität verbinden möchten. Ausstattungshightlights - kurz und bündig: - Moderne Architektur - durchdachte Raumplanung - Edler Vollholzparkettboden - Fußbodenheizung - Elektrische Außenraffstores - Ziegelmassivbauweise - Wärmepumpensystem (Luft/Wasser) mit teilweiser Stützkühlung - Raumhöhe von 2,60 m für ein großzügiges Wohngefühl Raumkonzept: Die im Dachgeschoß geplante Wohnung Top 14 (Lift ist vorhanden) mit ca. 63,6 m² Wohnnutzfläche und einer Terrasse mit ca. 65,3 m² verfügt über folgende Raumaufteilung: Vorraum, Abstellraum, Badezimmer, WC, Wohnküche, zwei Schlafzimmer und Terrasse. Parken: Zum Projekt gehören Tiefgaragenplätze sowie Stellplätze im Freien, die optional erworben werden können und das Wohnangebot ideal ergänzen. Preis hierzu erhalten Sie auf Anfrage. Heizung / Warmwasseraufbereitung / Kühlung: Die Beheizung erfolgt zentral über eine Wärmepumpe (Luft- / Wasserwärmepumpe). Die zentrale Warmwasseraufbereitung für Top 1–4 und Top 7–13 befindet sich im Technikraum im Untergeschoss. Für Top 5, 6 und Top 14–17 sind die Innenteile zur Warmwasseraufbereitung direkt in den Wohnungen installiert. Top 5, 6 sowie Top 14–17 können über die Fußbodenheizung auch kühlen (Stützkühlung). Allgemeinflächen: Es stehen ein Kinderwagenabstellraum, ein Fahrradabstellraum, eine Waschküche sowie ein Müllraum zur allgemeinen Verwendung zur Verfügung. Energieausweis: Ausstellungsdatum 21.08.2024 Heizwärmebedarf (HWB) 39,4 kWh/m²/a. (Einstufung Energieklasse B) Gesamtenergieeffizienz-Faktor (fGEE) 0,64. (Einstufung Energieklasse A+) Hinweis: Das gegenständlichen Projekt befindet sich noch in der Planungsphase. Sobald eine Vorverwertungsquote erreicht wird, wird mit der Ausführung des Projekt begonnen. Eine Fertigstellung ist zum jetzigen Zeitpunkt mit dem vierten Quartal 2027 vorgesehen. Nebenkosten: Grunderwerbsteuer 3,5 %, Grundbucheintragungsgebühr 1,1 %, Rechtsanwalt oder Notar für Kaufvertragserrichtung, treuhändische Abwicklung, grundbücherliche Durchführung des Kaufvertrages sowie Beglaubigungskosten, keine Maklerprovision. Objektnummer: 202/08104 Halten Sie bitte bei telefonischen Auskünften diese Objektnummer bereit. Sie sind auf der Suche nach weiteren Wohnungen aus diesem Projekt oder möchten sich einen umfassenderen Eindruck verschaffen? Dann empfehlen wir Ihnen einen Besuch auf der Projektwebsite unseres Projektpartners. Dort erhalten Sie einen vollständigen Überblick über sämtliche verfügbaren Einheiten sowie detaillierte Informationen zum gesamten Wohnbauprojekt. https://www.mema-immobilien.at/haus-zur-muehle/ Für Rückfragen oder ein persönliches Beratungsgespräch stehen wir Ihnen selbstverständlich gerne zur Verfügung. Um unsere Angebote noch besser Ihren Vorstellungen anpassen zu können bitte wir Sie im Zuge Ihrer Anfrage auch um die Bekanntgabe Ihrer Suchkriterien. Dies ermöglicht es uns schnell das für Sie passende Objekt zu finden. Wir ersuchen aus organisatorischen Gründen (Datenbankpflege) und aufgrund unserer Nachweispflicht gegenüber dem Abgeber um vollständige Angabe Ihrer Kontaktdaten einschließlich Vor- und Zuname, Adresse und Telefonnummer. Der Schutz Ihrer personenbezogenen Daten ist uns ein großes Anliegen. Wir verwenden Ihre Daten für die Interessenten- und Kundenverwaltung im Rahmen der Immobilienvermittlung (z.B. für die Zusendung von Immobilienangeboten). Die Rechtsgrundlage dafür bildet – sofern nicht eine gesetzliche Grundlage vorliegt – ein abgeschlossener Vertrag bzw. eine Vertragsanbahnung (Vermittlungsvertrag). Die Weitergabe personenbezogener Daten erfolgt ohne ausdrückliche separate Einwilligung nur insoweit, wie es für Vertragsabwicklungen erforderlich ist. Keinesfalls werden Ihre Daten zu Werbezwecken o.ä. weitergegeben. Unsere Mitarbeiter und unsere Dienstleistungsunternehmen sind zur Verschwiegenheit und zur Einhaltung der Datenschutzbestimmungen verpflichtet. Lesen Sie mehr in unserer Datenschutzerklärung auf unserer Homepage.

Eckdaten

Kaufpreis: 430.000,00 €
Fläche: 63,60 m²
Zimmer: 3

Basisdaten zur Immobilie

Objektnr: 202/08104
Art: Wohnung - Dachgeschoß
Land: Österreich
Baujahr: 2027
Alter: Neubau
Kaufpreis: 430.000,00
Wohnfläche: 63,60 m²
Zimmer: 3
Bäder: 1
WC: 1
Terrassen: 1
Heizwärmebedarf:  B  39,40 kWh/m²a
fGEE:  A+  0,64

Ausstattung

Zentralheizung, Personenaufzug



Internet und TV

Information zur Internet und TV Versorgung hier




Immobilie anfragen




Ihre persönliche Beratung

Realkanzlei Edlauer Immobilientreuhänder

René HOMMEN

Realkanzlei Edlauer Immobilientreuhänder

r.hommen@edlauer.com

+43 (0) 2742 35243889

+43 (0) 660 245 22 18

F +43 (0) 2742 352438 - 3


Realkanzlei Edlauer Immobilientreuhänder - Immobilen Makler

Josefstraße 19, 3100 St. Pölten

+43/2742/352438-0

https://www.edlauer.com