Eine ideal geschnittene Stadtwohnung, die durch Helligkeit und klare Strukturen punktet

Wohnung , 1050 Wien

Lage der Immobilie

Die Wohnung befindet sich im 5. Bezirk, einer beliebten Wohnlage nahe dem Zentrum. Die ruhige Seitengasse bietet ein angenehmes Wohnumfeld, während Geschäfte, Lokale und Einrichtungen des täglichen Bedarfs in wenigen Minuten erreichbar sind.


Die öffentliche Anbindung ist ausgezeichnet: Die U4-Station Pilgramgasse sowie die Straßenbahnlinien 6 und 18 bieten schnelle Verbindungen in die Innenstadt und zu wichtigen Knotenpunkten.


Parks wie der Haydnpark und der Alois-Drasche-Park befinden sich in Gehweite und sorgen für gute Freizeit- und Erholungsmöglichkeiten. Insgesamt eine zentrale, gut versorgte und urbane Lage mit hoher Lebensqualität.

Beschreibung der Immobilie

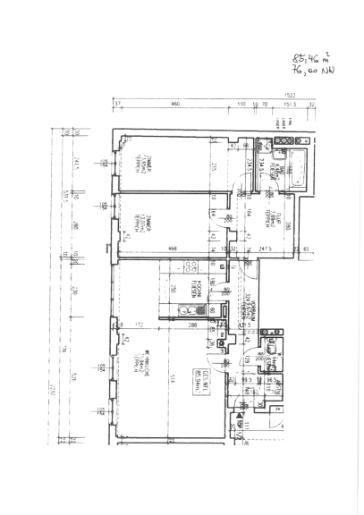
Die rund 85 m² große Eigentumswohnung überzeugt durch eine durchdachte Raumaufteilung und eine freundliche, helle Atmosphäre. Der Wohn-Essbereich mit ca. 35 m² bildet das Herzstück der Wohnung und bietet dank großer Fensterflächen eine sehr gute Belichtung sowie ein angenehmes Wohnambiente.

Alle Räume sind zentral begehbar, was die Wohnung besonders funktional und familienfreundlich macht. Bad und WC sind getrennt, zudem steht ein praktischer Abstellraum zur Verfügung. Die Beheizung erfolgt komfortabel über Fernwärme.

Eine ideal geschnittene Stadtwohnung, die durch Helligkeit, klare Strukturen und gute Wohnqualität überzeugt.

Eckdaten

Objektnr: 0001011076
Art: Wohnung
Land: Österreich
Möbliert: Teil
Kaufpreis: 399.000,00
Provision: 3% des Kaufpreises plus 20% USt.
Betriebskosten: 65,75 €
Wohnfläche: 85,46 m²
Zimmer: 3
Bäder: 1
WC: 1
Keller: 2,78 m²
Heizwärmebedarf:  B  45,00 kWh/m²a
fGEE:  D  2,13
Immobilie merken Exposé

Ausstattung

Fernwärme, Einbauküche, Wohnküche / offene Küche, Personenaufzug, Wasch/Trockenraum


Internet und TV

Information zur Internet und TV Versorgung hier


Immobilie anfragen


Ihre persönliche Beratung

Raiffeisen Immobilien Vermittlung Ges.m.b.H

Martina Stacher

Raiffeisen Immobilien Vermittlung

E teamwien@riv.at

T +4351751721

H +436646051751721