Ein viertel grün - gefördert , nachhaltig und schöner Wohnen

Wohnung , 2700 Wiener Neustadt

Beschreibung der Immobilie

Gefördert - Grün - Zentral - Energieeffizient

  • geförderte Erstbezugswohnungen in attraktiver Lage - ab € 180 000!
  • Neubauprojekt in verkehrsberuhigtem Stadtquartier mit guter Infrastruktur.
  • 2–4 Zimmer, ca. 55–90 m², jeweils mit Balkon oder Garten.
  • Energieeffizient & durchdacht geplant, inkl. TG-Stellplatz & Einlagerungsraum.
  • Allgemeinflächen wie Lift, Fahrradraum, Waschküche u. v. m.
  • Fertigstellung: voraussichtlich Q1/2026

Überblick:

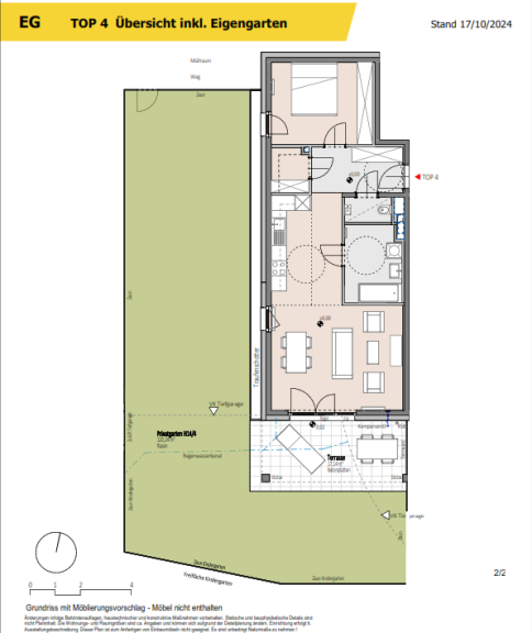
Mit rund 64 m² Wohnfläche, einem hellen Wohnzimmer, Küche und Schlafzimmer bietet diese 2-Zimmer-Wohnung ein durchdachtes Raumkonzept. Die großzügige Terrasse mit 17 m² und der weitläufige Garten mit über 120 m² schaffen viel Raum für Freizeit und Erholung.

Eckdaten

Objektnr: 00010107170019
Art: Wohnung
Land: Österreich
Baujahr: 2026
Kaufpreis: 269.473,13
Betriebskosten: 165,94 €
Wohnfläche: 64,32 m²
Zimmer: 2
Bäder: 1
WC: 1
Terrassen: 1
Garten: 120,24 m²
Heizwärmebedarf:  A  23,40 kWh/m²a
fGEE:  A++  0,53
Immobilie merken Exposé

Ausstattung

Fernwärme, Badewanne, Dusche


Internet und TV

Information zur Internet und TV Versorgung hier


Immobilie anfragen


Ihre persönliche Beratung

Raiffeisen Immobilien Vermittlung Ges.m.b.H

Sophie Kühnel

Raiffeisen Immobilien Vermittlung

E sophie.kuehnel@riv.at

T +4351751771