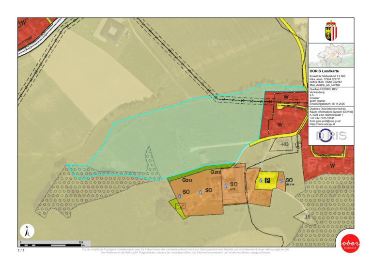
42522 m² Landwirtschaftsfläche in Oberchristkindl € 10/m²

Land und Forstwirtschaft - Ackerbau, 4400 Christkindl , Oberchristkindl

Beschreibung der Immobilie

Diese Landwirtschaftliche Fläche besteht aus:


G GST-Fläche * 42522 m²
Bauf.(10) 184 m²
Landw(10) 38717 m²
Landw(30) 1821 m²
Wald(10) 1800 m²
Legende:
G: Grundstück im Grenzkataster
*: Fläche rechnerisch ermittelt
Bauf.(10): Bauflächen (Gebäude)
Landw(10): landwirtschaftlich genutzte Grundflächen (Äcker, Wiesen oder Weiden)
Landw(30): landwirtschaftlich genutzte Grundflächen (Verbuschte Flächen)
Wald(10): Wald (Wälder)

Der Preis versteht sich als Mischpreis für das gesamte Grundstück.

Kaufnebenkosten:
Ca. 10 % vom tatsächlichen Kaufpreis (3,5% Grunderwerbssteuer, 1,1 % Grundbucheintragungsgebühr,
1,2 % Vertragserrichtungskosten, Makler 3,6 %). Die Informationen und Angaben beruhen auf Unterlagen
des Auftraggebers und sind ohne Gewähr.

Eckdaten

Objektnr: 2273_3190
Art: Land und Forstwirtschaft - Ackerbau
Land: Österreich
Kaufpreis: 425.220,00
Kaufpreis / m²: auf Anfrage
Provision: 3.60 %
Grundstücksfl.: 42.522,00 m²
Immobilie merken Exposé

Internet und TV

Information zur Internet und TV Versorgung hier


Immobilie anfragen


Ihre persönliche Beratung

RE/MAX Alpha in Steyr

Jochen Beranek

RE/MAX Alpha in Steyr

E j.beranek@remax-alpha.at

H +0664 73 67 42 70