NEUBAU - ERSTBEZUG! Sonniges Reihenhaus in traumhafter Ruhelage

Haus - Reihenhaus, 8591 Maria Lankowitz

Lage der Immobilie

Die Immobilie befindet sich in einer in der bezaubernden Marktgemeinde Maria Lankowitz, nur wenige Fahrminuten von der Stadt Köflach entfernt. Alle Annehmlichkeiten des täglichen Bedarfs wie Einkaufsmöglichkeiten, Kindergarten, Schulen, Ärzte und Banken sind entweder direkt im Ort oder in der nahe gelegenen Stadt Köflach vorhanden.

Erleben Sie die unvergleichliche Atmosphäre der Lipizzanerheimat am Fuße der majestätischen Stubalpe und genießen Sie Ihre Freizeit inmitten einer wunderschönen Naturkulisse. Entspannen Sie in der Therme Nova in Köflach oder verbringen Sie aktive Stunden auf dem Golfplatz des Erzherzog Johann Golfclubs in Maria Lankowitz.

Hier, umgeben von einer herrlichen Landschaft und einem breiten Spektrum an Freizeitmöglichkeiten, können Sie das Leben in vollen Zügen genießen und sich in einer harmonischen Umgebung zuhause fühlen.


Beschreibung der Immobilie

Sie suchen nach einem neuen Zuhause in einer beliebten Wohngegend von Maria Lankowitz Nähe Pibersteinersee? Dann sollten Sie sich diesen Neubau mit einem günstigen Finanzierungsvorschlag genauer ansehen.

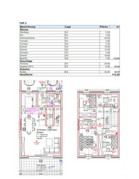
Diese Wohnanlage wurde im Jahr 2024 errichtet, gebaut natürlich in ziegelmassiver Bauweise nach dem neuesten Stand der Technik mit perfekter Planung. Das zu verkaufende Reihenhaus (TOP 2) verfügt über 4 Zimmer aufgeteilt auf zwei Geschoße. Im Erdgeschoß befundet sich ein großzügiges Wohn/Esszimmer mit rd. 48 m² mit Zugang auf die Terrasse mit rd. 20,60 m², ein WC sowie ein Technikraum. Im Obergeschoss sind drei Zimmer, ein Schrankraum und ein Badezimmer mit WC situiert.

Ausgestattet ist der gesamte Wohnbereich mit Laminatböden, die Beheizung des Objektes erfolgt mittels Fernwärmeheizungsanlage mit Fußbodenheizung für das gesamte Objekt.

Für erholsame Stunden im Freien sorgt eine Terrasse sowie ein Grundstück mit rd. 35 m².

Direkt an der Nordzufahrt zum Objekt befindet sich ein überdachter Autounterstellplatz für zwei Autos.

Die Übergabe bzw. die Fertigstellung des Objektes kann spätestens 3 Monate nach Kaufvertragsunterfertigung bzw. nach Übermittlung der Fertigstellungsanzeige der Gemeinde Maria Lankowitz erfolgen.

Eckdaten

Objektnr: 0005003810
Art: Haus - Reihenhaus
Land: Österreich
Baujahr: 2024
Kaufpreis: 298.000,00
Provision: 3% des Kaufpreises plus 20% USt.
Wohnfläche: 112,40 m²
Grundstücksfl.: 34,10 m²
Zimmer: 4
Bäder: 1
WC: 2
Terrassen: 1
Garten: 34,10 m²
Heizwärmebedarf:  B  34,60 kWh/m²a
fGEE:  B  0,86
Immobilie merken Exposé

Ausstattung

Fernwärme, Bad mit Fenster, Kabel/Satelliten-TV


Internet und TV

Information zur Internet und TV Versorgung hier


Immobilie anfragen


Ihre persönliche Beratung

Raiffeisen-Immobilien Steiermark GmbH - Wohntraumcenter Rosental a.d.K.

Christian Nebel

Raiffeisen Steiermark

E christian.nebel@rlbstmk.at

T 22713

H +43 664 855 01 06