Exklusives Wohnen in erster Reihe – Baugrundstück mit direktem Wasserzugang in den Seeresidenzen Parndorf
Grundstück
,
7111
Parndorf
Lage der Immobilie
Das Grundstück in 7111 Parndorf liegt in einer attraktiven Lage im Burgenland, nur wenige Minuten vom beliebten Outlet Center Parndorf entfernt. Die Umgebung besticht durch eine perfekte Kombination aus ruhigem, ländlichem Flair und exzellenter Anbindung an Einkaufs- und Freizeitmöglichkeiten. Ideal für Investoren und Familien.Beschreibung der Immobilie
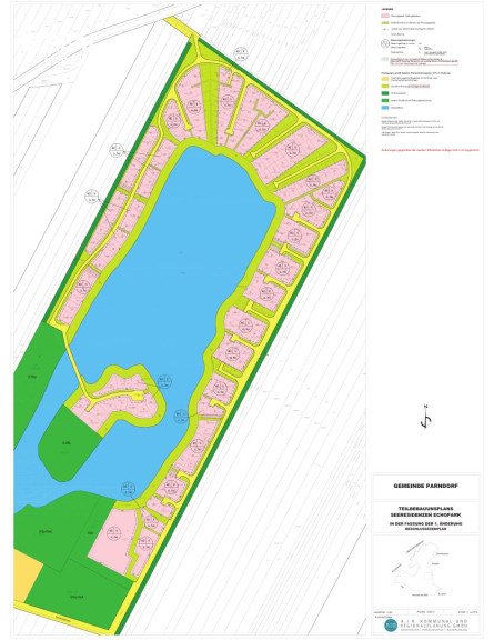
In einer der begehrtesten Lagen von Parndorf steht dieses einzigartige Grundstück zum Verkauf - eingebettet zwischen den exklusiven Seeresidenzen und dem idyllischen Naturambiente des Sees.
Die Lage bietet ein Wohngefühl auf höchstem Niveau: Ruhe, Privatsphäre und Urlaubsstimmung das ganze Jahr.
Das Grundstück verfügt über 514 m² laut Grundbuchauszug und überzeugt besonders durch seine außergewöhnliche Breite von ca. 25 Metern, die eine flexible Bebauung ermöglicht.
Bebauungsmöglichkeiten & Widmung:
- 40 % bebaubar
- Bauklasse I + II - Erdgeschoss + maximal ein Obergeschoss (kein Keller erlaubt)
- offene und halboffene Bauweise
- Einfamilienhaus oder Doppelhaus möglich - für Private & Bauträger geeignet
- kein Bauzwang
- die Aufschließungskosten sind bereits bezahlt.
Ob als stilvolles Einfamilienhaus für höchste Wohnqualität oder als modernes Doppelhaus – hier stehen Ihnen viele architektonische Möglichkeiten offen. Die Nähe zum See, die hochwertige Wohnumgebung und die seltene Grundstücksbreite machen dieses Grundstück zu einer absoluten Rarität.
Infrastruktur & Lage:
- ca. 5 Minuten zum Designer Outlet Parndorf
- ca. 30–35 Minuten nach Wien
- ca. 20 Minuten nach Bratislava
- hervorragende Anbindung über die A4 und A6
- Busverbindung Richtung Neusiedl am See, Bruck an der Leitha und Wien
- zwei Bahnhöfe im Ort
- im Ortszentrum befinden sich: Einkaufsmöglichkeiten, Gastronomie, Bäckerei, Bank, Post, Ärzte, Apotheke, Tankstelle sowie Kindergarten und Schulen - alles, was man für den täglichen Bedarf benötigt.
Ganz egal ob Sie Ihr persönliches Traumhaus realisieren oder ein hochwertiges Doppelhausprojekt umsetzen möchten – dieses Grundstück bietet dafür perfekte Rahmenbedingungen und eine Wohnlage, die ihresgleichen sucht.
Infrastruktur / Entfernungen
Gesundheit
Arzt <1.500m
Apotheke <3.000m
Klinik <8.500m
Kinder & Schulen
Schule <2.000m
Kindergarten <2.000m
Nahversorgung
Supermarkt <2.500m
Bäckerei <2.000m
Einkaufszentrum <4.000m
Sonstige
Bank <2.500m
Geldautomat <2.500m
Post <2.500m
Polizei <2.500m
Verkehr
Bus <1.500m
Autobahnanschluss <4.000m
Bahnhof <2.500m
Angaben Entfernung Luftlinie / Quelle: OpenStreetMap
Eckdaten
| Kaufpreis: | 349.000,00 € |
| Fläche: | 514,00 m² |
Basisdaten zur Immobilie
| Objektnr: | 960/73906 |
| Art: | Grundstück |
| Land: | Österreich |
| Kaufpreis: | 349.000,00 € |
| Kaufpreis / m²: | auf Anfrage |
| Provision: | 3% des Kaufpreises zzgl. 20% USt. |
| Grundstücksfl.: | 514,00 m² |
Internet und TV
Information zur Internet und TV Versorgung hier
Ihre persönliche Beratung
Margit Zettel
s REAL Immobilienvermittlung GmbH
margit.zettel@sreal.at
+43 (0)5 0100 - 26281
+43 664 88851824
