MODERNES HOCHWERTIGES DOPPELHAUS IN ST. ULRICH BEI STEYR!
Haus
- Doppelhaushälfte,
4400
Sankt Ulrich bei Steyr
Lage der Immobilie
Die Kinbergstraße 22 befindet sich in ruhiger, ländlicher Siedlungslage am südlichen Ortsrand von St. Ulrich bei Steyr. Die Umgebung ist geprägt von Ein- und Zweifamilienhäusern, viel Grünraum und einer sanften Hügellandschaft, die typisch für das Untere Steyrtal ist. Dank der Nähe zur Stadt Steyr ist die Lage eine ideale Mischung aus naturnahem Wohnen und schneller Erreichbarkeit der urbanen Infrastruktur. ca. 5 Minuten mit dem Auto ins Zentrum von Steyr Gute Anbindung an die B115 Linz in ca. 35–40 Minuten erreichbarBeschreibung der Immobilie
Eckdaten
| Objektnr: | IMMOMAKLEREI-25-0324 |
| Art: | Haus - Doppelhaushälfte |
| Land: | Österreich |
| Baujahr: | 2022 |
| Zustand: | Erstbezug |
| Kaufpreis: | 439.000,00 € |
| Provision: | 3,60% inkl. USt. |
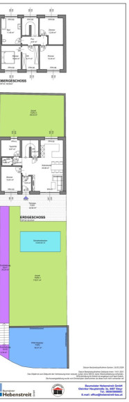
| Wohnfläche: | 124,00 m² |
| Grundstücksfl.: | 370,00 m² |
| Zimmer: | 5 |
| Bäder: | 1 |
| WC: | 1 |
| Stellplätze: | 3 |
| Garten: | 290,00 m² |
| Heizwärmebedarf: | B 28,00 kWh/m²a |
| fGEE: | A+ 0,70 |
Ausstattung
Fliesen, Fußbodenheizung, Wohnküche / offene Küche, Bad mit Fenster, Badewanne, Dusche, Kabel/Satelliten-TV, Wasch/Trockenraum
Internet und TV
Information zur Internet und TV Versorgung hier
Ihre persönliche Beratung
Edith Schätz
IMMOMAKLEREI
E schaetz@immomaklerei.at
T 00436767776929
