Traumhafte, 3-Zimmer-Wohnung in Scheffau – Ihr neues Zuhause!
Wohnung
,
6351
Scheffau am Wilden Kaiser
Lage der Immobilie
Willkommen in Ihrer neuen Traumwohnung in 6351 Scheffau am Wilden Kaiser! Diese attraktive Lage bietet Ihnen die perfekte Kombination aus Ruhe und Erreichbarkeit. Genießen Sie den herrlichen Blick zum Wilden Kaiser und die frische Bergluft. In unmittelbarer Nähe finden Sie Einkaufsmöglichkeiten in Ellmau für Ihre frischen Brötchen am Morgen sowie eine Busanbindung in 50 m, die Ihnen schnelle Verbindungen in die umliegenden Orte und Skigebiete ermöglicht. Hier wohnen Sie mitten in der Natur!Beschreibung der Immobilie
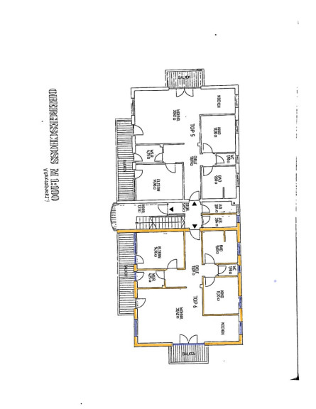
Willkommen in Ihrem neuen Zuhause in der malerischen Gemeinde Scheffau am Wilden Kaiser, einem der schönsten Orte Tirols! Diese beeindruckende Wohnung in der ersten Etage bietet Ihnen nicht nur eine großzügige Fläche von 97m², sondern auch einen Rückzugsort, der keine Wünsche offenlässt.
Der Kaufpreis von 500.000,00 € für diese schöne Wohnung ist eine Investition in Lebensqualität und Stil. Sie betreten die Wohnung und fühlen sofort die harmonische Atmosphäre, die durch die durchdachte Raumaufteilung und die modernen Ausstattungsmerkmale geschaffen wird.
Mit drei hellen und freundlichen Zimmern eröffnet sich Ihnen die Möglichkeit, die Räume nach Ihren Vorstellungen zu gestalten. Ob als gemütliches Schlafzimmer, inspirierendes Arbeitszimmer oder ein einladendes Gästezimmer – hier finden Sie den idealen Platz für Ihre individuellen Bedürfnisse.
Die zwei Balkone sind das Highlight dieser Wohnung. Sie laden dazu ein, die frische Tiroler Luft zu genießen und den atemberaubenden Blick auf die umliegenden Berge zu erleben. Stellen Sie sich vor, wie Sie an warmen Sommertagen mit einem Kaffee in der Hand auf dem Balkon sitzen und die Ruhe der Natur genießen.
Die Lage der Wohnung könnte nicht besser sein. Scheffau am Wilden Kaiser ist bekannt für seine idyllische Umgebung und die hervorragenden Freizeitmöglichkeiten. Ob Wandern, Skifahren oder einfach nur die Natur genießen – hier sind Sie mitten im Geschehen. Zudem sind Sie optimal an den öffentlichen Nahverkehr angebunden. Eine Busverbindung in der Nähe sorgt dafür, dass Sie schnell und unkompliziert in die umliegenden Orte gelangen. Der Einstieg in die Skiwelt Wilder Kaiser Scheffau ist mit dem Auto in 3 Minuten und zu Fuß in 16 Minuten erreichbar.
Für den täglichen Bedarf ist ebenfalls gesorgt. Einkaufen im benachbarten Ellmau ist auch keine große Hürde!
Lassen Sie sich diese Gelegenheit nicht entgehen und verwirklichen Sie Ihren Traum vom Eigenheim in dieser traumhaften Tiroler Landschaft. Vereinbaren Sie noch heute einen Besichtigungstermin und überzeugen Sie sich selbst von dieser einzigartigen Immobilie in Scheffau am Wilden Kaiser!
Infrastruktur / Entfernungen
Gesundheit
Arzt <2.000m
Apotheke <3.500m
Kinder & Schulen
Schule <1.500m
Kindergarten <1.500m
Höhere Schule <6.000m
Universität <10.000m
Nahversorgung
Supermarkt <1.500m
Bäckerei <1.000m
Einkaufszentrum <10.000m
Sonstige
Bank <1.500m
Geldautomat <1.500m
Post <1.500m
Polizei <5.500m
Verkehr
Bus <500m
Bahnhof <8.500m
Angaben Entfernung Luftlinie / Quelle: OpenStreetMap
Eckdaten
| Kaufpreis: | 500.000,00 € |
| Fläche: | 97,00 m² |
| Zimmer: | 3 |
Basisdaten zur Immobilie
| Objektnr: | 50 |
| Art: | Wohnung |
| Land: | Österreich |
| Baujahr: | 2002 |
| Zustand: | Teil_vollrenoviert |
| Möbliert: | Teil |
| Alter: | Altbau |
| Kaufpreis: | 500.000,00 € |
| Betriebskosten: | 277,00 € |
| Wohnfläche: | 97,00 m² |
| Zimmer: | 3 |
| Balkone: | 2 |
| Heizwärmebedarf: | B 43,40 kWh/m²a |
| fGEE: | D 1,82 |
Internet und TV
Information zur Internet und TV Versorgung hier
Ihre persönliche Beratung
Christian Bucher
Kristall Real Immobilien
office@kristall-real.at
06649689007
+43 664 968 90 07
