Beschreibung der Immobilie
Diese attraktive Gewerbeimmobilie befindet sich in absoluter Bestlage direkt am Marktplatz von St. Peter in der Au und bietet ideale Voraussetzungen für einen erfolgreichen Unternehmensauftritt. Die großzügige Fläche im Erdgeschoss überzeugt durch ihre Vielseitigkeit und eignet sich perfekt für unterschiedlichste Gewerbekonzepte – von Ordinationen über Fitness- oder Gesundheitsbetriebe bis hin zu modernen Büro- oder Dienstleistungsflächen.
Dank der flexiblen Raumaufteilung lässt sich das Objekt individuell an Ihre Bedürfnisse anpassen und bietet Ihnen den Freiraum, Ihre Ideen und Visionen optimal umzusetzen. Die zentrale Lage sorgt für hohe Sichtbarkeit, gute Erreichbarkeit und ein repräsentatives Umfeld für Kunden und Mitarbeiter.
Details im Überblick:
- Erdgeschosslage in zentraler Bestlage
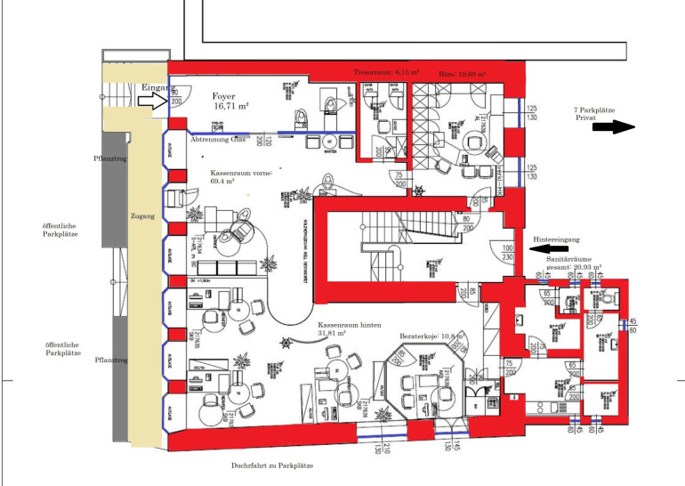
- Ca. 175 m² Nutzfläche mit vielfältigen Nutzungsmöglichkeiten
- Barrierefreier Zugang
- 7 Parkplätze im ruhigen Innenhof
- Sanitärräume vorhanden
- Pflegeleichte, geflieste Böden
- Elektrische Heizung
- Großzügige Schaufensterflächen mit optimaler Sichtbarkeit
- Mietbeginn ab Sommer 2026 möglich
Ein besonderes Plus: Auf Wunsch kann auch das gesamte Obergeschoss mit angemietet werden. Dieses umfasst eine ca. 90 m² große Wohnung sowie drei zusätzliche, derzeit leerstehende Räume – ideal für Wohnen, Erweiterungen oder ergänzende Nutzungskonzepte.
Infrastruktur / Entfernungen
Gesundheit
Arzt <500m
Apotheke <1.500m
Klinik <2.500m
Kinder & Schulen
Schule <500m
Kindergarten <500m
Nahversorgung
Supermarkt <500m
Bäckerei <500m
Sonstige
Bank <500m
Geldautomat <500m
Post <2.500m
Polizei <500m
Verkehr
Bus <500m
Bahnhof <2.500m
Autobahnanschluss <8.500m
Flughafen <3.000m
Angaben Entfernung Luftlinie / Quelle: OpenStreetMap
Eckdaten
| Kaltmiete (netto): | 1.450,00 € |
| Fläche: | 175,49 m² |
Basisdaten zur Immobilie
| Objektnr: | 960/74383 |
| Art: | Büro / Praxis |
| Land: | Österreich |
| Kaltmiete (netto): | 1.450,00 € |
| Kaltmiete: | 1.450,00 € |
| Provision: | 3.480,00 € inkl. 20% USt. |
| Nutzfläche: | 175,49 m² |
| Stellplätze: | 7 |
Ausstattung
Elektro
Internet und TV
Information zur Internet und TV Versorgung hier
Ihre persönliche Beratung
Johannes Wiesinger
s REAL Immobilienvermittlung GmbH
johannes.wiesinger@sreal.at
+43 (0)5 0100 - 26256
+43 664 8170645
