Ein einzigartiges Wohnensemble – so selten, dass es kein zweites gibt: 2 Einheiten oder eine große Luxus-Einheit
Wohnung
,
1220
Wien
Lage der Immobilie
Diese attraktive Wohnung in 1220 Wien besticht durch ihre zentrale Lage und hervorragende Infrastruktur. In unmittelbarer Nähe finden Sie alles, was das tägliche Leben erleichtert: Ärzte, Apotheken, Schulen und Kindergärten sind bequem erreichbar. Einkaufsmöglichkeiten wie Supermärkte und Bäckereien sowie ein Einkaufszentrum bieten Vielfalt. Zudem sorgen gute Anbindungen an Bus, U-Bahn, Straßenbahn und Bahnhof für optimale Erreichbarkeit der Innenstadt und darüber hinaus.Beschreibung der Immobilie
Willkommen in einer der begehrtesten Wohnanlagen der Donaustadt – einem modernen Landmark-Gebäude mit 33 Stockwerken, erstklassiger Architektur und einzigartigen Annehmlichkeiten.
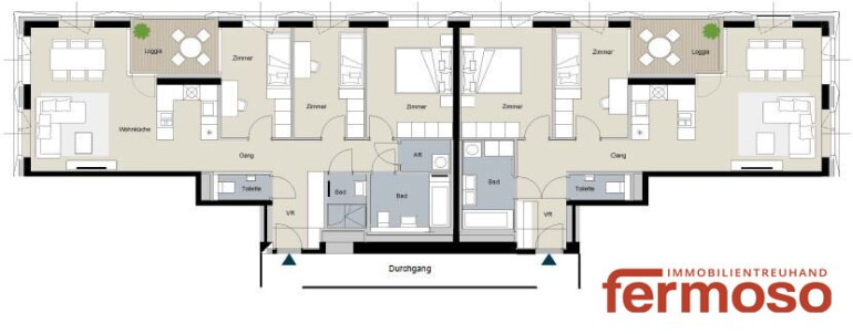
Hier haben Sie die seltene Möglichkeit, ein komplettes Wohnensemble im 22. Stock zu erwerben, bestehend aus zwei separaten, hochwertig ausgestatteten Eigentumswohnungen, oder die gemeinsam eine außergewöhnliche Privatsphäre und vielseitige Nutzung bieten.
Ob als großzügiges Luxus-Penthouse für den Eigenbedarf, als Wohnen & Arbeiten, Mehrgenerationen-Konzept, Teil-Vermietung, Kapitalanlage oder spätere Weiterveräußerung – dieses Objekt eröffnet Ihnen eine seltene Flexibilität, die es so am Markt kaum gibt.
⸻
Das Wohnensemble im Überblick
Sie erwerben hier exklusiv zwei vollwertige Wohneinheiten im selben Stockwerk – direkt nebeneinander – die auf Wunsch wie eine große Wohnung genutzt werden können.
Einheit 1 – 3 Zimmer
• ca. 80 m²
• perfekt für Eigennutzung, Homeoffice oder Vermietung
Einheit 2 – 4 Zimmer
• großzügige Familienwohnung oder ideale Anlagemöglichkeit
Gesamtfläche gemeinsam: großzügig, modern, lichtdurchflutet
Flexibel gestaltbar: zusammenlegbar oder getrennt nutzbar
Die Nutzungsmöglichkeiten sind grenzenlos – ein seltenes Investment mit maximaler Freiheit.
⸻
Highlights der Ausstattung
• Fußbodenheizung
• Deckenkühlung in allen Räumen
• Nachhaltige Bauweise mit PV-Anlage
• Höchste Energieeffizienz – Betriebskosten nur ca. EUR 200
• Aufzug direkt bis zur Wohnungstüre
• Moderne Sicherheits- & Gegensprechanlage
• Großzügige Fahrrad-, Kinderwagen- und Lagerräume
• Hundewaschraum
• Fahrradwerkstatt
• Waschküche
• Gemeinschaftsraum mit Küche
• Verdunstungskühlung zur Temperatursenkung
• Sauna (nur € 6 Buchungsgebühr)
• Fitnessraum
• Rooftop-Pool mit Panoramablick
• Öffentliche WCs im EG und im Community-Stock
• Müllraum & praktische Infrastruktur im Haus
• 2 KFZ-Stellplätze mit E-Ladestation (Nr. 72 & 74)
⸻
Lage – exklusiv, urban & perfekt angebunden
• Nur 5 Minuten Fußweg zur U1
• ca. 5 Minuten bis zur Innenstadt
• 5 Busstopps bis zum Flughafen
• Donauzentrum mit 250 Shops in unmittelbarer Nähe
• Ärzte, Apotheken & Polizei im direkten Umfeld
• Internationale Schule fußläufig
• Grünflächen, Freizeitmöglichkeiten & Donauinsel schnell erreichbar
⸻
Preis & Investment-Vorteile
• Gesamtpreis Wohnensemble:
• Einheit 1 (3 Zimmer): € 1.000.000
• Einheit 2 (4 Zimmer): € 1.300.000
• KFZ-Stellplätze: € 50.000 je Stellplatz
• Gesamt: Exklusiver Wohnwert + Top-Investment
Steuerliche Vorteile
• Bei Eigennutzung: ca. € 280.000 Steuer
• Bei Vermietung: 20 Jahre steuerfrei laut geltender Regelung
• Mieteinnahmen möglich: über ca. € 4.500 pro Einheit
Perfekt für Smart-Investoren, Familien, Unternehmer oder internationale Käufer.
⸻
Fazit – Eine Chance, die es so kaum gibt
Ein komplettes Stockwerk-Ensemble mit zwei Einheiten, luxuriöser Ausstattung, Rooftop-Pool, perfekter Infrastruktur und maximaler Flexibilität.
Ob zusammengelegt als große Traumwohnung oder als getrennte Investment-Einheiten – Sie profitieren in jedem Fall.
Dieses Angebot ist am Markt extrem selten – jetzt sichern, bevor es weg ist!
Noch nichts gefunden? Wir informieren Sie über geeignete Immobilienangebote noch vor allen anderen.
Legen Sie jetzt Ihren individuellen Suchagenten unter folgendem Link an. Wir schicken Ihnen passende Immobilien exklusiv vorab zu.
Suchagent anlegen - https://fermoso-immobilientreuhand.service.immo/registrieren/de
Wir weisen darauf hin, dass zwischen dem Vermittler und dem zu vermittelnden Dritten ein familiäres oder wirtschaftliches Naheverhältnis besteht.
Infrastruktur / Entfernungen
Gesundheit
Arzt <500m
Apotheke <500m
Klinik <2.500m
Krankenhaus <3.500m
Kinder & Schulen
Schule <500m
Kindergarten <500m
Universität <1.500m
Höhere Schule <1.500m
Nahversorgung
Supermarkt <500m
Bäckerei <500m
Einkaufszentrum <500m
Sonstige
Geldautomat <500m
Bank <500m
Post <500m
Polizei <500m
Verkehr
Bus <500m
U-Bahn <500m
Straßenbahn <500m
Bahnhof <500m
Autobahnanschluss <2.500m
Angaben Entfernung Luftlinie / Quelle: OpenStreetMap
Eckdaten
| Kaufpreis: | 2.300.000,00 € |
| Fläche: | 180,11 m² |
| Zimmer: | 6 |
Basisdaten zur Immobilie
| Objektnr: | 6633 |
| Art: | Wohnung |
| Land: | Österreich |
| Baujahr: | 2021 |
| Kaufpreis: | 2.300.000,00 € |
| Betriebskosten: | 400,00 € |
| Sonstige Kosten: | 100,00 € |
| Wohnfläche: | 180,11 m² |
| Zimmer: | 6 |
| Bäder: | 3 |
| WC: | 2 |
| Keller: | 4,68 m² |
| Heizwärmebedarf: | A 17,63 kWh/m²a |
| fGEE: | A 807,00 |
Ausstattung
Parkett, Fliesen, Erdwärme, Fußbodenheizung, Zentralheizung, Einbauküche, Personenaufzug, Kabel/Satelliten-TV, Tiefgarage
Internet und TV
Information zur Internet und TV Versorgung hier
Ihre persönliche Beratung
Ilksev Karakas
Fermoso Immobilientreuhand GmbH
ik@fermoso.at
+43 664 19 13 188
+43 664 19 13 188
