Schlossherr:in gesucht - elegante Schlosswohnung mit Turmzimmer zu verkaufen! (inkl. Garage)
Wohnung
- Etage,
4600
Wels
Lage der Immobilie
Stadtteil LichteneggBeschreibung der Immobilie
Dieses außergewöhnliche Objekt befindet sich im historischen Schloss Lichtenegg, welches seinen Ursprung im 16. Jahrhundert hat. Die Wohnung besticht durch ein einzigartiges Umfeld mit Blick in den Schlossgarten (Allgemeingarten). Dieser bietet mit seinem prächtigen Baumbestand, wie etwa schöne, alte Linden, Ahorn usw. eine gemütliche Auszeit im Grünen.
Die Wohnung eignet sich perfekt für Paare oder kleine Familien, die eine harmonische Verbindung von urbanem Leben und naturnahem Wohnen suchen. Entdecken Sie die Vorzüge eines Lebens in Wels und lassen Sie sich von dieser charmanten Wohnung in bester Lage begeistern.
Das Objekt wurde vor 12-13 Jahren großzügig saniert und ist in einem Top-Zustand.
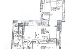
Raumaufteilung: Vorraum, Bad, WC, Essküche, Wohnraum, Schlafzimmer, Turmzimmer für z.B. Büro.
Eine Garage ist im Preis inklusive, diese ist derzeit vermietet.
Eine freundliche Nachbarschaft freut sich auf Sie!
Monatliche Kosten:
BK Wohnung: € 287,06 inkl. 10% USt.
BK Garage: € 14,94 i nkl. 20% USt.
Rep.Rücklage:
Wohnung € 111,33
Garage € 10,02
Heizkosten lt. aktueller Abrechnung:
€ 56,00 / Monat
Wir weisen darauf hin, dass zwischen dem Vermittler und dem zu vermittelnden Dritten ein familiäres oder wirtschaftliches Naheverhältnis besteht.
Der Vermittler ist als Doppelmakler tätig.
Infrastruktur / Entfernungen
Gesundheit
Arzt <500m
Apotheke <500m
Klinik <500m
Krankenhaus <3.000m
Kinder & Schulen
Schule <500m
Kindergarten <500m
Universität <2.000m
Nahversorgung
Supermarkt <500m
Bäckerei <1.500m
Einkaufszentrum <2.500m
Sonstige
Bank <500m
Geldautomat <1.000m
Post <2.000m
Polizei <1.000m
Verkehr
Bus <500m
Autobahnanschluss <2.000m
Bahnhof <1.500m
Flughafen <4.500m
Angaben Entfernung Luftlinie / Quelle: OpenStreetMap
Eckdaten
| Kaufpreis: | 275.000,00 € |
| Fläche: | 95,68 m² |
Basisdaten zur Immobilie
| Objektnr: | 1939/132617 |
| Art: | Wohnung - Etage |
| Land: | Österreich |
| Zustand: | Gepflegt |
| Kaufpreis: | 275.000,00 € |
| Provision: | 9.900,00 € inkl. 20% USt. |
| Betriebskosten: | 302,00 € |
| Heizkosten: | 56,00 € |
| Sonstige Kosten: | 121,35 € |
| Wohnfläche: | 95,68 m² |
| Nutzfläche: | 95,68 m² |
| Gesamtfläche: | 95,68 m² |
| Keller: | 2,93 m² |
| Heizwärmebedarf: | C 81,30 kWh/m²a |
| fGEE: | C 1,72 |
Ausstattung
Zentralheizung, Einbauküche, Personenaufzug, Badewanne
Internet und TV
Information zur Internet und TV Versorgung hier
Ihre persönliche Beratung
Mag.(FH) Marianne Gerner-Kraupatz
IMMOcontract Immobilien Vermittlung GmbH
M.Gerner-Kraupatz@IMMOcontract.at
+43 50 450 400
+43 664 25 63 491
