Perfekte Terrassenwohnung für Paare mit Platzbedarf oder kleine Familien! U4 in Gehweite
Wohnung
- Etage,
1140
Wien
Lage der Immobilie
Im grünen Bezirk Penzing vereint 387 WEST das Beste aus zwei Welten: urbanen Komfort und naturnahe Ruhe. Die Nähe zum Lainzer Tiergarten und Wienerwald bietet Erholung direkt vor der Haustüre, während die U4-Station Hütteldorf und die Straßenbahnlinie 49 eine schnelle Verbindung ins Stadtzentrum garantieren. Geschäfte des täglichen Bedarfs, Schulen, Kindergärten und Cafés befinden sich in direkter Umgebung. Trotz der guten Anbindung bewahrt das Viertel seinen charmanten Vorstadtcharakter – ruhig, grün und lebensnah. 387 WEST steht damit für Wohnen mit hoher Lebensqualität: stadtnah, naturverbunden und komfortabel erreichbar.Beschreibung der Immobilie
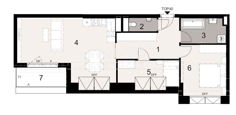
Hoch hinaus mit Wohlfühlgarantie – 3-Zimmer-Wohnung mit Ostterrasse
Diese charmante 3-Zimmer-Wohnung im letzten Liftstock verbindet luftiges Wohnen mit cleverer Planung und einer viel Lebensqualität.
Die Terrasse nach Osten ist der perfekte Ort für alle, die Sonne lieben – aber nicht gleich schmelzen wollen. Frühstück mit Morgensonne, entspannter Nachmittag im Schatten - Balance pur
Im Herzen der Wohnung liegt die offene Wohnküche – hier wird gekocht, gelacht und gelebt. Ob Candle-Light-Dinner oder Laptop-Lunch – dieser Raum kann alles.
Das Badezimmer ist noch Ihr Mitspracherecht-Projekt: Wanne oder Dusche? Sie entscheiden! Gäste-WC
Zwei Schlafzimmer bieten Platz für alles, was das Leben braucht – ob kleine Familie, Paar mit Homeoffice oder einfach jemand, der gern ein Zimmer nur für seine Pflanzen hat. Das Vorzimmer rundet das Ganze ab – praktisch, hell und einladend.
Kurz gesagt:
Ob Sonne, Platz oder Stil – diese Wohnung hat von allem das Richtige Maß. Ein Zuhause für alle, die lieber oben wohnen, aber trotzdem mit beiden Beinen fest im Leben stehen.
Wir weisen darauf hin, dass zwischen dem Vermittler und dem zu vermittelnden Dritten ein familiäres oder wirtschaftliches Naheverhältnis besteht.
Der Vermittler ist als Doppelmakler tätig.
Infrastruktur / Entfernungen
Gesundheit
Arzt <500m
Apotheke <500m
Klinik <2.000m
Krankenhaus <1.000m
Kinder & Schulen
Schule <500m
Kindergarten <500m
Universität <2.000m
Höhere Schule <4.500m
Nahversorgung
Supermarkt <500m
Bäckerei <500m
Einkaufszentrum <3.500m
Sonstige
Geldautomat <500m
Bank <500m
Post <1.500m
Polizei <500m
Verkehr
Bus <500m
Straßenbahn <500m
U-Bahn <500m
Bahnhof <500m
Autobahnanschluss <3.500m
Angaben Entfernung Luftlinie / Quelle: OpenStreetMap
Eckdaten
| Kaufpreis: | 528.200,00 € |
| Fläche: | 78,49 m² |
| Zimmer: | 3 |
Basisdaten zur Immobilie
| Objektnr: | 1939/162205 |
| Art: | Wohnung - Etage |
| Land: | Österreich |
| Baujahr: | 2027 |
| Zustand: | Projektiert |
| Alter: | Neubau |
| Kaufpreis: | 528.200,00 € |
| Provision: | 3% zzgl. 20% Ust |
| Wohnfläche: | 78,49 m² |
| Zimmer: | 3 |
| Terrassen: | 1 |
| Heizwärmebedarf: | B 22,90 kWh/m²a |
| fGEE: | A+ 0,68 |
Ausstattung
Parkett, Fußbodenheizung, Zentralheizung, Personenaufzug, Badewanne, Dusche, Kabel/Satelliten-TV, Tiefgarage
Internet und TV
Information zur Internet und TV Versorgung hier
Ihre persönliche Beratung
Alexandra Kraus
IMMOcontract Immobilien Vermittlung GmbH
A.Kraus@IMMOcontract.at
+43 664 6000 8134
+43 664 6000 8134
F +43 732 890 800 2466
