Weinviertel - Lebensqualität + inklusive Garagenstellplatz
Wohnung
- Terrassenwohnung,
2122
Ulrichskirchen
Lage der Immobilie
Direkt neben der Stadtgemeinde Wolkersdorf im Weinviertel mit umfangreicher Infrastruktur einer feinen Kleinstadt. 16 Autominuten bis zur Wiener Stadtgrenze.Beschreibung der Immobilie
Das Thema Ruhe und Geborgenheit zieht sich durch das gesamte Wohn-Konzept dieses hochwertigen Neubau-Projekts.
Insgesamt stehen 16 Wohnungen - 2 bis 4 Zimmer - von 62m² bis 123m² Wohnglück für Sie bereit, wobei 2 Wohnungen im Stil von Reihenhäusern als Maisonettewohnungen ausgelegt sind.
Dem Thema Nachhaltigkeit wird die Luft-Wärme-Pumpe am Dach für Heizung und Warmwasseraufbereitung gerecht.
On Top gibt es zu jeder Wohnung einen Tiefgaragen-Stellplatz dazu - dieser ist im Kaufpreis inkludiert!
Das Projekt im Überblick:
- sehr zentral in Ulrichskirchen gelegen
- super praktisch geschnittene Grundrisse
- nachhaltige Heizung und Warmwasseraufbereitung
Infrastruktur / Entfernungen
Gesundheit
Arzt <1.500m
Klinik <3.000m
Apotheke <3.000m
Kinder & Schulen
Schule <1.500m
Kindergarten <500m
Nahversorgung
Supermarkt <2.500m
Bäckerei <2.500m
Einkaufszentrum <7.000m
Sonstige
Bank <500m
Geldautomat <500m
Post <2.500m
Polizei <3.000m
Verkehr
Bus <500m
Autobahnanschluss <1.500m
Bahnhof <500m
Angaben Entfernung Luftlinie / Quelle: OpenStreetMap
Eckdaten
| Kaufpreis: | 380.000,00 € |
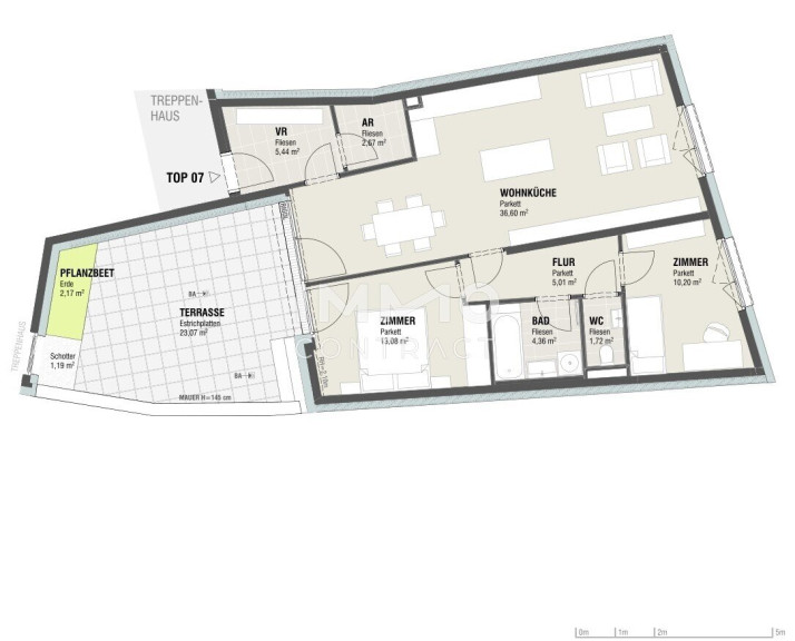
| Fläche: | 78,61 m² |
| Zimmer: | 3 |
Basisdaten zur Immobilie
| Objektnr: | 1939/162259 |
| Art: | Wohnung - Terrassenwohnung |
| Land: | Österreich |
| Baujahr: | 2025 |
| Zustand: | Erstbezug |
| Kaufpreis: | 380.000,00 € |
| Provision: | 3% |
| Wohnfläche: | 78,61 m² |
| Zimmer: | 3 |
| Bäder: | 1 |
| WC: | 1 |
| Terrassen: | 1 |
| Stellplätze: | 1 |
| Keller: | 1,95 m² |
| Heizwärmebedarf: | B 37,00 kWh/m²a |
| fGEE: | A 0,72 |
Ausstattung
Fliesen, Parkett, Fußbodenheizung, Personenaufzug, Badewanne
Internet und TV
Information zur Internet und TV Versorgung hier
Ihre persönliche Beratung
Waltraud Männersdorfer
IMMOcontract Immobilien Vermittlung GmbH
W.Maennersdorfer@IMMOcontract.at
+43 676/841 420 226
