Wiener Rose - Exklusive Dachgeschoß-Maisonette - 4 Zimmer Erstbezug
Wohnung
- Loft-Studio-Atelier,
1170
Wien
Lage der Immobilie
Die Wohnung überzeugt durch ihre zentrale und dennoch ruhige Lage. Zahlreiche Einkaufsmöglichkeiten, Cafés und Restaurants befinden sich in unmittelbarer Nähe. Die öffentliche Verkehrsanbindung ist ausgezeichnet und ermöglicht eine schnelle und bequeme Verbindung in die Wiener Innenstadt.Beschreibung der Immobilie
Entdecken Sie eine hochwertige Dachgeschosswohnung auf zwei Ebenen, die modernes Design und erstklassigen Wohnkomfort auf einzigartige Weise vereint. Diese lichtdurchflutete Einheit besticht durch eine durchdachte Raumaufteilung und sorgfältig ausgewählte Materialien in einem frisch sanierten Altbau.
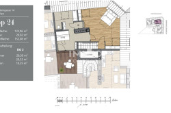
Die Wohnung erstreckt sich über ca. 132,16 m² und bietet großzügige Zimmer, die ein helles und gemütliches Wohnambiente schaffen. Als Erstbezug präsentiert sie sich in makellosem Zustand und überzeugt durch stilvolle Details sowie moderne architektonische Akzente.
Besonders hervorzuheben ist die Terrasse, ausgestattet mit Strom- und Wasseranschlüssen, die sich ideal für entspannte Stunden im Freien oder gesellige Treffen eignet.
Im Rahmen der umfassenden Renovierung des Gebäudes, einschließlich des Dachgeschossausbaus und der Sanierung der Regelgeschosse, entstand ein repräsentatives Wohnhaus, das modernen Komfort mit historischem Altbaucharme perfekt kombiniert.
Attraktive Gebührenbefreiung für Käufer:innen
Seit 1. Juli 2024 profitieren Immobilienkäufer:innen in Österreich von einer Gebührenbefreiung für Grundbuch- und Pfandrechtseintragungen:
• Befreiung bis € 500.000 Kaufpreis pro Person
• Gilt für Kaufverträge ab April 2024
• Voraussetzung: Hauptwohnsitzmeldung in der Immobilie
• Bei Finanzierung: über 90 % des Kredits für Kauf oder Sanierung
• Ersparnis: 1,1 % Grundbuchgebühr und 1,2 % Pfandrechtseintragung
Infrastruktur / Entfernungen
Gesundheit
Arzt <500m
Apotheke <500m
Klinik <500m
Krankenhaus <1.500m
Kinder & Schulen
Schule <500m
Kindergarten <500m
Universität <1.500m
Höhere Schule <1.500m
Nahversorgung
Supermarkt <500m
Bäckerei <500m
Einkaufszentrum <1.000m
Sonstige
Geldautomat <500m
Bank <500m
Post <500m
Polizei <1.000m
Verkehr
Bus <500m
U-Bahn <1.500m
Straßenbahn <500m
Bahnhof <1.500m
Autobahnanschluss <4.000m
Angaben Entfernung Luftlinie / Quelle: OpenStreetMap
Eckdaten
| Kaufpreis: | 969.000,00 € |
| Fläche: | 132,16 m² |
| Zimmer: | 4 |
Basisdaten zur Immobilie
| Objektnr: | 1939/133237 |
| Art: | Wohnung - Loft-Studio-Atelier |
| Land: | Österreich |
| Baujahr: | 1900 |
| Kaufpreis: | 969.000,00 € |
| Provision: | 34.884,00 € inkl. 20% USt. |
| Betriebskosten: | 216,58 € |
| MwSt Gesamt: | 21,66 € |
| Wohnfläche: | 132,16 m² |
| Zimmer: | 4 |
| Bäder: | 2 |
| Terrassen: | 2 |
| Heizwärmebedarf: | B 35,77 kWh/m²a |
Ausstattung
Fliesen, Parkett, Gas, Personenaufzug
Internet und TV
Information zur Internet und TV Versorgung hier
Ihre persönliche Beratung
Heidi Danninger
IMMOcontract Immobilien Vermittlung GmbH
H.Danninger@IMMOcontract.at
+43 664 9639404
+43 664 9639404
