Bürostandort: Palais Kaiserhaus

Büro / Praxis - Bürofläche, 1010 Wien

Lage der Immobilie

Die Lage im Herzen der Wiener Innenstadt ist insbesondere durch die Anbindung an die teuerste Einkaufsstraße Wiens, den Kohlmarkt, als äußerst attraktiv zu bezeichnen. Die Wiener Innenstadt bietet zahlreiche Geschäfte, Lokale und Nahversorgungsmöglichkeiten. Öffentliche Verkehrsanbindung: - U-Bahn: U3 Station Herrengasse oder Stephansplatz - Bus: 1A, 2A Station Herrengasse Individualverkehr: - 1 Minute zum Kohlmarkt zu Fuß - Parken: Garage "Freyung"

Beschreibung der Immobilie

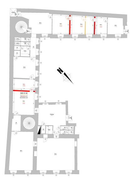
Beim Kaiserhaus (ehem. Palais Lamberg) handelt es sich um ein prachtvolles Stadtpalais in Wiener Bestlage aus dem späten 17. bzw. frühen 18. Jahrhundert. Neben den historischen Geschossen verfügt das Objekt über einen zweigeschossigen Dachausbau aus den 70/80er Jahren. Das Gebäude verfügt über einen repräsentativen Eingangsbereich, der mit einem ruhigen Innenhof verbunden ist, in welchen auch Fahrradabstellmöglichkeiten vorhanden sind.

Eckdaten

Objektnr: IVG-O-09975/22+24
Art: Büro / Praxis - Bürofläche
Land: Österreich
Baujahr: 1819
Zustand: Gepflegt
Gesamtmiete: 10.414,70
Kaltmiete (netto): 5.413,05 €
Kaltmiete: 6.495,66 €
Miete / m²: 9,00 €
Provision: 3 BMM zzgl. 20% USt.
Betriebskosten: 3.265,87 €
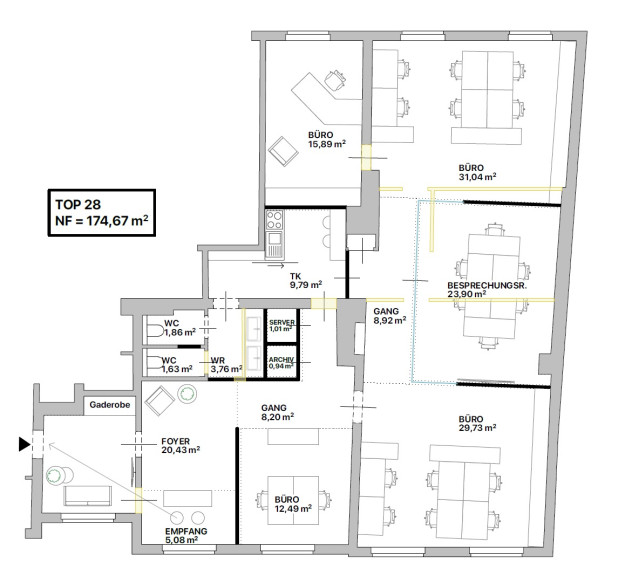
Nutzfläche: 601,45 m²
Bürofläche: 601,45 m²
Stellplätze: 1
Heizwärmebedarf:  D  150,00 kWh/m²a
Immobilie merken Exposé

Ausstattung

Fernwärme, Zentralheizung, Personenaufzug


Internet und TV

Information zur Internet und TV Versorgung hier


Immobilie anfragen


Ihre persönliche Beratung

OTTO Immobilien GmbH

Isabella Plessl

OTTO Immobilien GmbH

E i.plessl@otto.at

T 004366488590403

H 004366488590403

F 004315137778


 - Immobilen Makler

OTTO Immobilien GmbH, Standort Hauptbahnhof, QBC3, Gertrude-Fröhlich-Sandner-Str 3, 1100 Wien, AUSTRIA

https://www.otto.at