Fabrik1230 - Das neue Grätzlzentrum

Büro / Praxis - Bürofläche, 1230 Wien

Beschreibung der Immobilie

Die Fabrik1230 im 23. Bezirk von Wien ist ein modernes und vielseitiges Immobilienprojekt. Es kombiniert historische Architektur mit zeitgemäßen Neubauten und bietet eine attraktive Mischung aus Arbeits-, Gesundheits- und Freizeitflächen. Die Büroeinheiten in der Fabrik1230 sind sowohl in einem denkmalgeschützten Altbau mit industriellem Charme als auch in einem hochmodernen Neubau verfügbar. Die Büroräume sind flexibel anpassbar, um den individuellen Bedürfnissen von Unternehmen gerecht zu werden. Ergänzt werden diese Arbeitsbereiche durch 530 m² Terrassenflächen und einen Innenhof, der die Verbindung von Arbeit und Erholung fördert. Zusätzlich gibt es 310 m² Seminarräume, ideal für Meetings und Workshops. - Nachhaltigkeit und Modernität: Die Verbindung von historischen und zeitgenössischen Elementen schafft eine inspirierende Arbeitsatmosphäre. - Gemeinschaftsbereiche: Der Innenhof fungiert als Begegnungszone und fördert den Austausch zwischen den Mietern.

Eckdaten

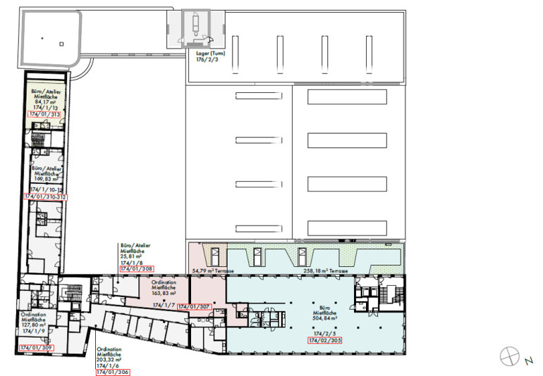
Objektnr: IVG-O-12326/02/301
Art: Büro / Praxis - Bürofläche
Land: Österreich
Baujahr: 2024
Miete / m²: 16,00 €
Provision: 3 BMM zzgl. 20% USt
Nutzfläche: 504,84 m²
Bürofläche: 504,84 m²
Stellplätze: 32
Heizwärmebedarf:  A  61,40 kWh/m²a
fGEE:  A++  0,63
Immobilie merken Exposé

Ausstattung

Personenaufzug


Internet und TV

Information zur Internet und TV Versorgung hier


Immobilie anfragen


Ihre persönliche Beratung

OTTO Immobilien GmbH

Magdalena Lemut, BSc (WU)

OTTO Immobilien GmbH

E m.lemut@otto.at

T 00436764803674

H 00436764803674

F 004315137778


 - Immobilen Makler

OTTO Immobilien GmbH, Standort Hauptbahnhof, QBC3, Gertrude-Fröhlich-Sandner-Str 3, 1100 Wien, AUSTRIA

https://www.otto.at