Moderne Büros mit Weitblick - SATURN TOWER

Büro / Praxis - Bürofläche, 1220 Wien

Lage der Immobilie

Auf 17,4 Hektar Grundfläche präsentiert sich die Donau-City als Sammelpunkt aufsehenerregender Architektur und bietet ein ideales Ambiente für Business, Freizeit und Wohnen. Perfekt an den öffentlichen Nahverkehr angebunden und mit einer eigenen Autobahnabfahrt, beherbergt Vienna-DC Wohn- und Bürogebäude, Forschungsstätten, Freizeiteinrichtungen, Event Locations sowie Geschäfte des täglichen Bedarfs, Gastronomiebetriebe, ein Ärztezentrum, Kindergärten, eine Schule, und sogar eine eigene Kirche - kurzum: alles, was ein Stadtviertel zu einer idealen Arbeits- und Wohnstätte mit hervorragender Infrastruktur macht. Als hervorragende Naherholungsmöglichkeiten und entspannte Mittagspausen bieten sich der Donaupark und die Donauinsel in direkter Gehdistanz an. Öffentlicher Verkehr: - U-Bahn: U1 Station Vienna International Center - Bus: 20A & Vienna Airport Lines Individualverkehr: - A22 Donauufer Autobahn - Tiefgarage im Gebäude - Kundenparkplätze direkt vor dem Eingang

Beschreibung der Immobilie

Als Teil der Vienna Donau City gehört der SATURN TOWER zu einer der aufsehenerregendsten Architekturjuwelen Wien und zählt als eines der Top-Bürogebäudes. Die Stadt in der Stadt bietet von Freizeiteinrichtungen über eine umfangreiche Infrastruktur bis hin zu einzigartigen Eventlocations unzählige Angebote in Gehnähe. Von Hans Hollein und Heinz Neumann konzipiert, wurde er 2004 fertiggestellt. Die Balkone, Erker, Loggien, Terrassen und das einzigartige Flugdach geben dem Tower nicht nur ein markantes Aussehen – sie sorgen im ganzen Haus für mehr Flexibilität und lichtdurchflutete Innenräume. Die einzelnen Geschosse zeichnen sich durch variable Größen und Nutzungsmöglichkeiten aus. Der Blick ins Grüne und öffenbare Fenster auf allen Stockwerken geben den MieterInnen die Möglichkeit, sogar während der Arbeit Kraft aus der Natur zu schöpfen und jeden Tag aufs Neue über sich selbst hinauszuwachsen. Gleichzeitig bietet sich ein atemberaubender Blick auf das Stadtbild Wiens. Mit der "wolke 21" steht den Mietern eine der schönsten Eventlocations Wiens zur temporären Anmietung zu Verfügung. Diese überzeugt insbesondere mit der großzügigen Terrasse. Eine eigene Anlieferungszone für LKWs erleichtert die Organisation und Vorbereitung großer Veranstaltungen. Im Haus befindet sich ein Fahrradabstellplatz mit Duschmöglichkeit und Lagerflächen können ebenfalls angemietet werden.

Eckdaten

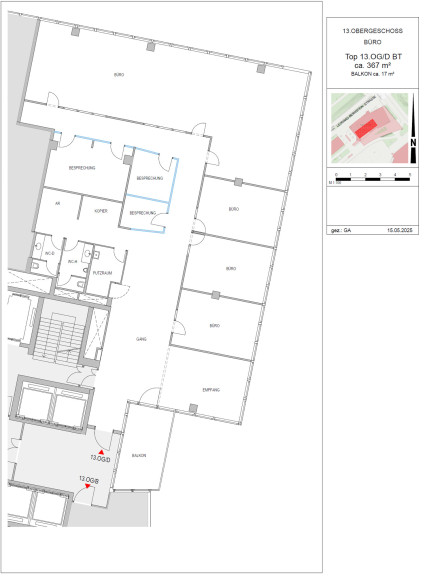
Objektnr: IVG-O-11386/13_D
Art: Büro / Praxis - Bürofläche
Land: Österreich
Baujahr: 2004
Gesamtmiete: 10.063,14
Kaltmiete (netto): 6.239,00 €
Kaltmiete: 7.486,80 €
Miete / m²: 17,00 €
Provision: 3 BMM zzgl. 20 % USt.
Betriebskosten: 2.146,95 €
Nutzfläche: 367,00 m²
Bürofläche: 367,00 m²
Stellplätze: 10
Heizwärmebedarf:  A  23,33 kWh/m²a
fGEE:  C  1,08
Immobilie merken Exposé

Ausstattung

Zentralheizung, Personenaufzug


Internet und TV

Information zur Internet und TV Versorgung hier


Immobilie anfragen


Ihre persönliche Beratung

OTTO Immobilien GmbH

Magdalena Lemut, BSc (WU)

OTTO Immobilien GmbH

E m.lemut@otto.at

T 00436764803674

H 00436764803674

F 004315137778


 - Immobilen Makler

OTTO Immobilien GmbH, Standort Hauptbahnhof, QBC3, Gertrude-Fröhlich-Sandner-Str 3, 1100 Wien, AUSTRIA

https://www.otto.at