Repräsentative Bürofläche in Bestlage

Büro / Praxis - Bürofläche, 1010 Wien

Lage der Immobilie

An dieser Adresse befinden Sie sich an einer der exklusivsten Adressen im historischen Kern der Wiener Innenstadt! Direkt in der hochfrequentierten Einkaufsstraße, der Wollzeile, befindet sich die angebotene Immobilie in einem wunderschönen Gründerhaus. Dort sind sie umgeben von hübschen Cafés, noblen Restaurants, kleinen Läden von Schmuck, Kleidung über Schokolade bis zum Teehaus. Zahlreiche Nahversorger, Drogerien, und Apotheken runden einen perfekten Bürostandort ab. Das reiche Kulturangebot der Innenstadt zieht vor allem Touristen an. Öffentliche Verkehrsanbindung ist durch die U3 Stubentor oder die Linien U1 & U3 am Stephansplatz in nur wenigen Gehminuten gegeben. Der Bahnhof Wien-Mitte Landstraße mit Anbindung zum Flughafen ist ebenfalls fußläufig zu erreichen. Für eine kleine Erholung im Freien sorgen der nahegelegene Stadtpark oder der Donaukanal.

Beschreibung der Immobilie

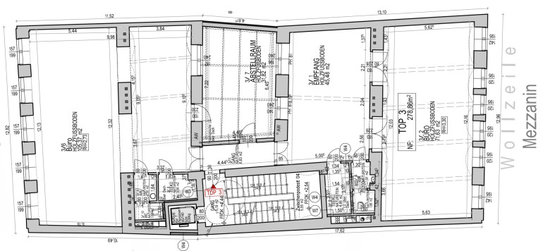
Diese exklusive Büroimmobilie besticht nicht alleine durch ihre exzellente Lage im Zentrum Wiens, sondern auch durch ihren hochwertigen Ausbau. Die Fläche befindet sich im Mezzanine eines Gründerzeithauses und wurde im Jahr 2004 generalsaniert. Derzeit teilt sich die ca. 276 m² große Fläche in 4 abgeschlossene Räume sowie einen großen Empfangsbereich und einen weiteren Open Space auf. Der große Büro- oder Besprechungsraum zur Wollzeile ausgerichtet verleiht durch die Kappendecke und den bodentiefen Doppelkastenfenster besonderen Charme. Alle Zimmer sind durch moderne Glaswände voneinander getrennt. Der Fußboden in den Büroräumen ist mit schönem Fischgrätparkett verlegt, der Empfang wurde hochwertig verfliest. Der große Büroraum zur Schulerstraße ist mit einer Klimaanlage ausgerüstet. Durch eine Glasdecke über den Innenhof ist der Empfangsbereich besonders hell und repräsentativ. Die Fläche verfügt über zwei getrennte WC´s, eine mögliche Teeküche sowie einen Serverraum. Die Fläche bietet viel Gestaltungsspielraum für zahlreiche Arbeitsplätze auf großzügigen Flächen, aber auch eine kleinteiligere Aufsplittung ist möglich. Besonders Vorteilhaft sind die kostengünstigen Energiekosten, durch eine effiziente und ökologische Wasser-Wasser-Wärmepumpe (Brunnenwasserkühlung). Das derzeitige Acconto beträgt netto € 241,25 pro Monat. Die Fläche wird ohne Möbel vermietet.

Eckdaten

Objektnr: IVG-O-AM-12698/3-4
Art: Büro / Praxis - Bürofläche
Land: Österreich
Gesamtmiete: 6.572,75
Kaltmiete (netto): 4.900,00 €
Kaltmiete: 5.880,00 €
Miete / m²: 17,70 €
Provision: 3 BMM zzgl. 20 % USt
Betriebskosten: 577,29 €
Nutzfläche: 276,85 m²
Bürofläche: 276,85 m²
Zimmer: 5
Heizwärmebedarf:  C  86,80 kWh/m²a
fGEE:  C  1,44
Immobilie merken Exposé

Ausstattung

Personenaufzug


Internet und TV

Information zur Internet und TV Versorgung hier


Immobilie anfragen


Ihre persönliche Beratung

OTTO Immobilien GmbH

Magdalena Lemut, BSc (WU)

OTTO Immobilien GmbH

E m.lemut@otto.at

T 00436764803674

H 00436764803674

F 004315137778


 - Immobilen Makler

OTTO Immobilien GmbH, Standort Hauptbahnhof, QBC3, Gertrude-Fröhlich-Sandner-Str 3, 1100 Wien, AUSTRIA

https://www.otto.at