@Top Lage!! Nähe U6 JÄGERSTRASSE!! 20. Bezirk!!! 360° Grad Besichtigung!!@

Wohnung , 1200 Wien

Beschreibung der Immobilie

Lassen Sie Sich von unserer 360°- 3D Besichtigung überzeugen - Von der Parkbank, vom Sofa oder auch vom Bett, gemütlich über Handy, Tablett, Computer oder Ihrem Internetfähigen Fernseher.

360°- 3D Grad Besichtigung Link: https://my.matterport.com/show/?m=643YkaamNaf 

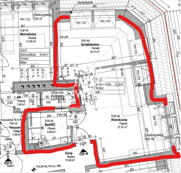
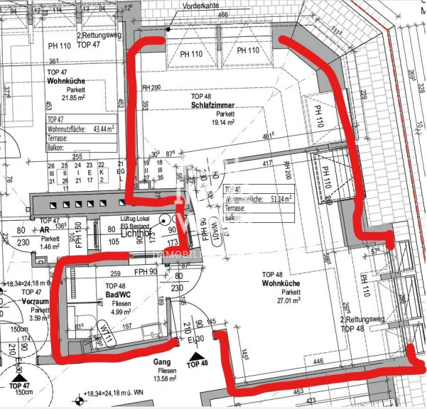
Zur Vermietung gelangt eine sonnendurchflutete Wohnung in einer ruhig gelegene Lage im 20. Bezirk.

Die Wohnung verfügt über eine hochmoderne Küche, Parkett Böden und geflieste Bäder. 

Wohnung besteht aus:

2 Zimmer, Einbauküche, zentraler Vorraum, Bad, WC, Telekabelanschluss, Klimaanlage, Gegensprechanlage, Waschmaschinenanschluss.

Exkl. Strom, Heizkosten und Wasser Akonto Incl. MWST. 178,99€ werden nach Bedarf abgerechnet.

Die U-Bahn-Station U6 Jägerstrasse ist schnell erreichbar, sowie weiter öffentliche Verkehrsmittel. Viele verschiedene Einkaufsmöglichkeiten sind nahe liegend.

Die Wohnungen können jederzeit, nach Vereinbarung, besichtigt werden.

KEINE ABLÖSE
KAUTION:  4 BMM €
PROVISION: KEINE
BEZIEHBAR SOFORT

Interessiert? Kontaktieren Sie uns für eine unverbindliche Besichtigung!

Der Immobilienmakler erklärt, dass er – entgegen dem in der Immobilienwirtschaft üblichen Geschäftsgebrauch des Doppelmaklers – einseitig nur für den Vermieter tätig ist.

Infrastruktur / Entfernungen

Gesundheit
Arzt <500m
Apotheke <500m
Klinik <500m
Krankenhaus <1.000m

Kinder & Schulen
Schule <500m
Kindergarten <500m
Universität <1.000m
Höhere Schule <1.000m

Nahversorgung
Supermarkt <500m
Bäckerei <500m
Einkaufszentrum <1.000m

Sonstige
Geldautomat <1.000m
Bank <1.000m
Post <1.000m
Polizei <500m

Verkehr
Bus <500m
U-Bahn <500m
Straßenbahn <500m
Bahnhof <500m
Autobahnanschluss <1.000m

Angaben Entfernung Luftlinie / Quelle: OpenStreetMap

Eckdaten

Objektnr: 55297
Art: Wohnung
Land: Österreich
Alter: Neubau
Gesamtmiete: 1.255,98
Kaltmiete (netto): 1.141,80 €
Kaltmiete: 1.141,80 €
Provision: Gemäß Erstauftraggeberprinzip bezahlt der Abgeber die Provision.
MwSt Gesamt: 114,18 €
Wohnfläche: 51,14 m²
Zimmer: 2
Bäder: 1
WC: 1
Heizwärmebedarf:  B  36,90 kWh/m²a
fGEE:  C  1,19
Immobilie merken Exposé

Ausstattung

Fliesen, Parkett, Fußbodenheizung, Zentralheizung, Einbauküche, Personenaufzug, Dusche


Internet und TV

Information zur Internet und TV Versorgung hier


Immobilie anfragen


Ihre persönliche Beratung

Real Immo Wien Immobilientreuhand - Inh. Gerald Frank

Philipp Stummer

Real Immo Wien Immobilientreuhand - Inh. Gerald Frank

E stummer@realimmo.wien

T +4315120488

H +4366499651213