Erstbezug - Provisionsfreie und freifinanzierte Anlegerwohnung! Schöne 3 Zimmerwohnung mit Garten
Wohnung
,
1100
Wien
,
Uhligstraße
Lage der Immobilie
Dieses schöne Neubauprojekt befindet sich in der Uhligstraße, einer sehr ruhigen und begrünten Straße zwischen Oberlaaer Straße und der Ampferergasse. Der Kurpark Oberlaa ist in ca. 15 Minuten fußläufig zu erreichen. Öffentliche Anbindung: - U-Bahn U1 Neulaa (5 Minuten zu Fuß) - Autobus 17A und N17 (5 Minuten zu Fuß), 16A, 67A, 67B Infrastruktur: - zahlreiche Kindergärten, Bildungseinrichtungen - Geschäfte des täglichen Bedarfs befinden sich ebenfalls in unmittelbarer NäheBeschreibung der Immobilie
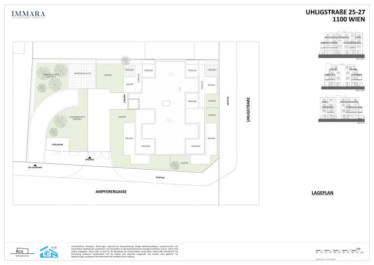
Zum Verkauf gelangen 8 hochwertige Neubauwohnungen in Grünruhelage im 10. Bezirk mit hervorragender Infrastruktur. Alle Wohnungen besitzen großzügige Freiflächen und fantastische Grundrisse. Die Liegenschaft besticht durch das schöne Design, der hochwertigen Ausstattung, den 2 Gemeinschaftsgärten, Kinderspielplatz und einer Garage.
Bei der gegenständlichen Wohnung handelt es sich um eine perfekt geschnittene Dreizimmerwohnung mit Garten und Terrasse im Erdgeschoss eines sehr geschmackvollen Neubauhauses (Fertigstellung März 2026) in Grün-Ruhelage. Diese hochwertig ausgestattete Wohnung verfügt über eine ca. 18 m2 große Terrasse (zzgl. 8m2 großem Garten), welche von allen drei Zimmern zugänglich ist.
Raumaufteilung:
- Vorraum
- Abstellraum
- Schlafzimmer mit Zugang zum Garten
- Wohnküche mit hochwertig ausgestatteter Küche und Zugang zur Terrasse und zum Garten
- Toilette mit Handwaschbecken
- Badezimmer mit Dusche, Doppelhandwaschbecken und Waschmaschinenanschluss
- Schlafzimmer mit Zugang zum Garten
Ausstattung Wohnung:
- Luftwärmepumpe
- Fußbodenheizung
- hochwertiger Eichenparkettboden
- Feinsteinzeugfliesen
- Fenster: 3-Scheiben-Isolierverglasung
- Terrassentüren: elektrisch bedienbaren RAFF-Stores
- Kellerabteil
Ausstattung Liegenschaft:
- Fahradabstellraum
- 2 Gemeinschaftsgärten
- Kinderspielplatz
- Garage (nicht im KP enthalten)
Lage:
Dieses schöne Neubauprojekt befindet sich in der Uhligstraße, einer sehr ruhigen und begrünten Straße zwischen Oberlaaer Straße und der Ampferergasse. Der Kurpark Oberlaa ist in ca. 15 Minuten fußläufig zu erreichen.
Öffentliche Anbindung:
- U-Bahn U1 Neulaa (5 Minuten zu Fuß)
- Autobus 17A und N17 (5 Minuten zu Fuß), 16A, 67A, 67B
Infrastruktur:
- zahlreiche Kindergärten, Bildungseinrichtungen
- Geschäfte des täglichen Bedarfs befinden sich ebenfalls in unmittelbarer Nähe
Beim angegebenen Kaufpreis handelt es sich um einen Nettopreis für Anleger, für Selbstnutzer kommen 11 % Umsatzsteuer hinzu.
Eckdaten
| Kaufpreis: | 449.000,00 € |
| Fläche: | 61,00 m² |
| Zimmer: | 3 |
Basisdaten zur Immobilie
| Objektnr: | 4222 |
| Art: | Wohnung |
| Land: | Österreich |
| Baujahr: | 2025 |
| Alter: | Neubau |
| Kaufpreis: | 449.000,00 € |
| Kaufpreis / m²: | auf Anfrage |
| Wohnfläche: | 61,00 m² |
| Zimmer: | 3 |
| Bäder: | 1 |
| WC: | 1 |
| Terrassen: | 1 |
| Garten: | 8,11 m² |
| Heizwärmebedarf: | B 25,50 kWh/m²a |
Ausstattung
Parkett, Fliesen, Fußbodenheizung, Einbauküche, Personenaufzug, Westbalkon, Tiefgarage
Internet und TV
Information zur Internet und TV Versorgung hier
Ihre persönliche Beratung
Rana Wintersteiner
J. u. E. Wild Immobilientreuhänder GmbH
rw@immobilienwild.at
+43 1 616 32 77 275
+43 660 762 27 16
F +43 1 616 32 77 216
